+ Lisa oma töö      

Eramu ehitus

ID 1004

4155 vaatamist

Prindi

  • check Pakkumiste tegemine
    kuni 17.05.2006
  • check Võitja valik kuni
    24.05.2006
  • 3 Töö teostamine
    ja hinnang
Hanke lõpp: K, 17. mai, 2006
Maakond: Tartumaa
Muu asula: Luunja
Tööde algus: L, 15. juuli, 2006 (Soovituslik)
Tööde lõpp: R, 15. detsember, 2006 (Soovituslik)
Ehitusmaterjalid: Töö tegija poolt

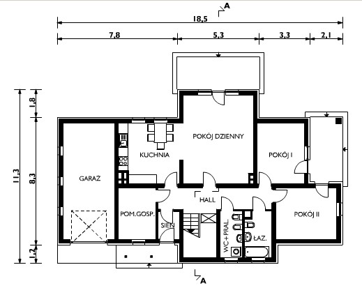
Töö sisu

ehitustööd - kinnine majakarp, krohvimine, pahteldus

Pildid, video ja failid

Hanke korraldaja: eraisik ID1860

Pakkumised

Pakkumisi kokku: 8

Ettevõte Summa Käibemaks Lisatud Vestlus
Kasutaja ikoon ID481
Pakkuja profiil Väike nool paremale
110 290,4€ Ei sisalda Ei sisalda 03.05.2006 Vestlus (0)
Kasutaja ikoon ID1116
Pakkuja profiil Väike nool paremale
103 536,9€ Ei sisalda Ei sisalda 06.05.2006 Vestlus (0)
Kasutaja ikoon ID634
Pakkuja profiil Väike nool paremale
95 867,5€ Ei sisalda Ei sisalda 08.05.2006 Vestlus (0)
Kasutaja ikoon ID1671
Pakkuja profiil Väike nool paremale
99 063,1€ Ei sisalda Ei sisalda 09.05.2006 Vestlus (0)
Kasutaja ikoon ID1047
Pakkuja profiil Väike nool paremale
106 885,8€ Sisaldab KM Sisaldab KM 11.05.2006 Vestlus (0)
Kasutaja ikoon ID851
Pakkuja profiil Väike nool paremale
119 514,8€ Ei sisalda Ei sisalda 13.05.2006 Vestlus (0)
Kasutaja ikoon ID859
Pakkuja profiil Väike nool paremale
9 458,9€ Sisaldab KM Sisaldab KM 14.05.2006 Vestlus (0)
Kasutaja ikoon ID542
Pakkuja profiil Väike nool paremale
102 258,6€ Ei sisalda Ei sisalda 14.05.2006 Vestlus (0)

Küsimused hanke korraldajale

Küsimus: private ID1047   03.05.2006 10:49
tere, kas tuleb ka soojustus ja välis fasaad teha?

Teavita reeglite rikkumisest

Korraldaja vastus: 12.05.2026 22:04

Jah , vundamendi soojustus, soojustus, kivi fassaad, kivikatus, rõdud

Teavita reeglite rikkumisest

Küsimus: private ID542   11.05.2006 11:44
Tere. Kas on olemas ka täpsemat infot (nt. põhiprojekt ja seletuskiri) maja/ehituse kohta?

Teavita reeglite rikkumisest

Korraldaja vastus: 12.05.2026 22:04

jah ,kõik dok. on olemas

Teavita reeglite rikkumisest

Lisa küsimus

Lisa küsimus

Minu pakkumine

Reeglid

Pakkumise kirjelduse väli on mõeldud pakkumise detailsemaks lahti kirjutamiseks. Pikema teksti mugavaks sisestamiseks klikkige kasti paremal ülaservas oleval ikoonil.
Pakkumist tehes on keelatud postitada enda kontaktandmeid (nimi, telefon, aadress jne). Me jälgime ja analüüsime pakkumisi, et vältida pettuseid ja reeglite rikkumisi.
Rikkumise puhul kasutajakonto blokeeritakse.

 

Vanemad teated:

Vaata kõiki

Sellel veebilehel kasutatakse küpsiseid. Kasutamist jätkates nõustute küpsiste kasutamisega.

Sulge
 
Minu pakkumine

Reeglid

Pakkumise kirjelduse väli on mõeldud pakkumise detailsemaks lahti kirjutamiseks. Pikema teksti mugavaks sisestamiseks klikkige kasti paremal ülaservas oleval ikoonil.
Pakkumist tehes on keelatud postitada enda kontaktandmeid (nimi, telefon, aadress jne). Me jälgime ja analüüsime pakkumisi, et vältida pettuseid ja reeglite rikkumisi.
Rikkumise puhul kasutajakonto blokeeritakse.