+ Lisa oma töö      

Otsid ehitajat "Rõdutööd" valdkonnast?

Parima pakkumise ja teostaja leidmiseks lisa oma töö.

Rõdupiirded

ID 10161

4600 vaatamist

Prindi

  • check Pakkumiste tegemine
    kuni 13.08.2008
  • check Võitja valik kuni
    20.08.2008
  • 3 Töö teostamine
    ja hinnang
Hanke lõpp: K, 13. august, 2008
Maakond: Harjumaa
Tööde algus: R, 15. august, 2008 (Soovituslik)
Tööde lõpp: L, 30. august, 2008 (Soovituslik)
Ehitusmaterjalid: Töö tegija poolt

Töö sisu

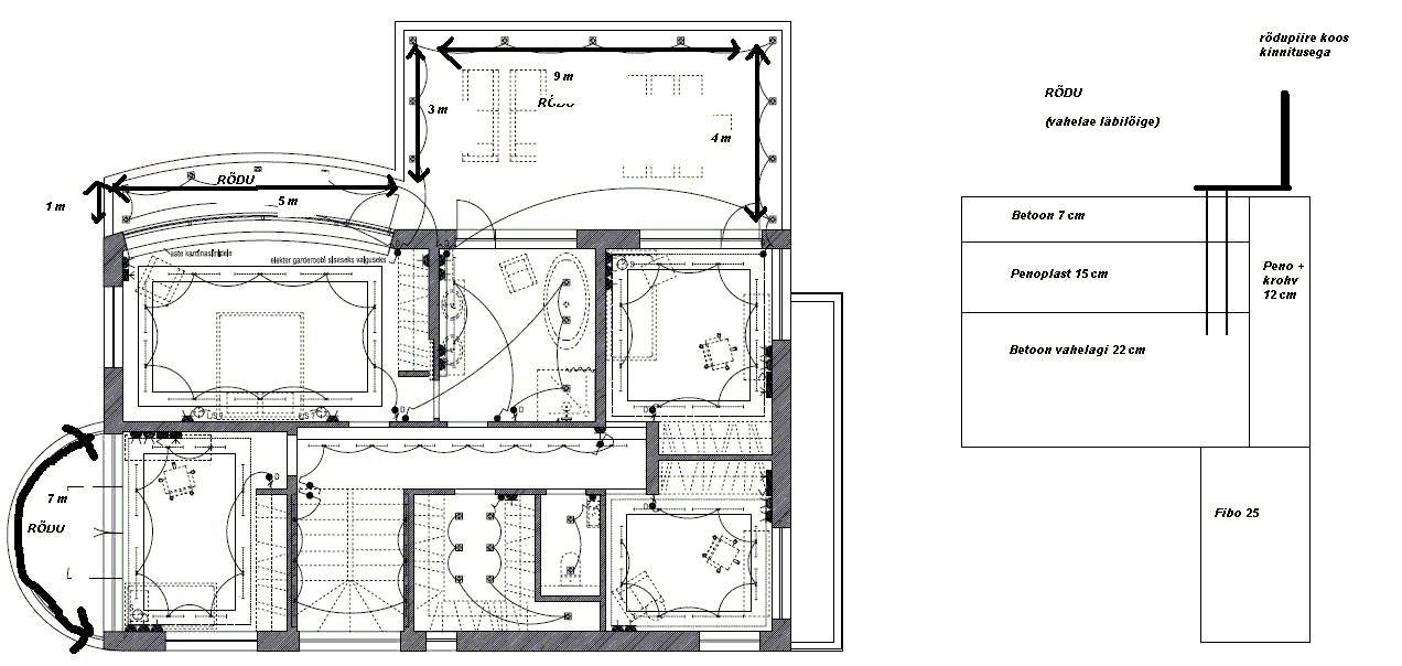
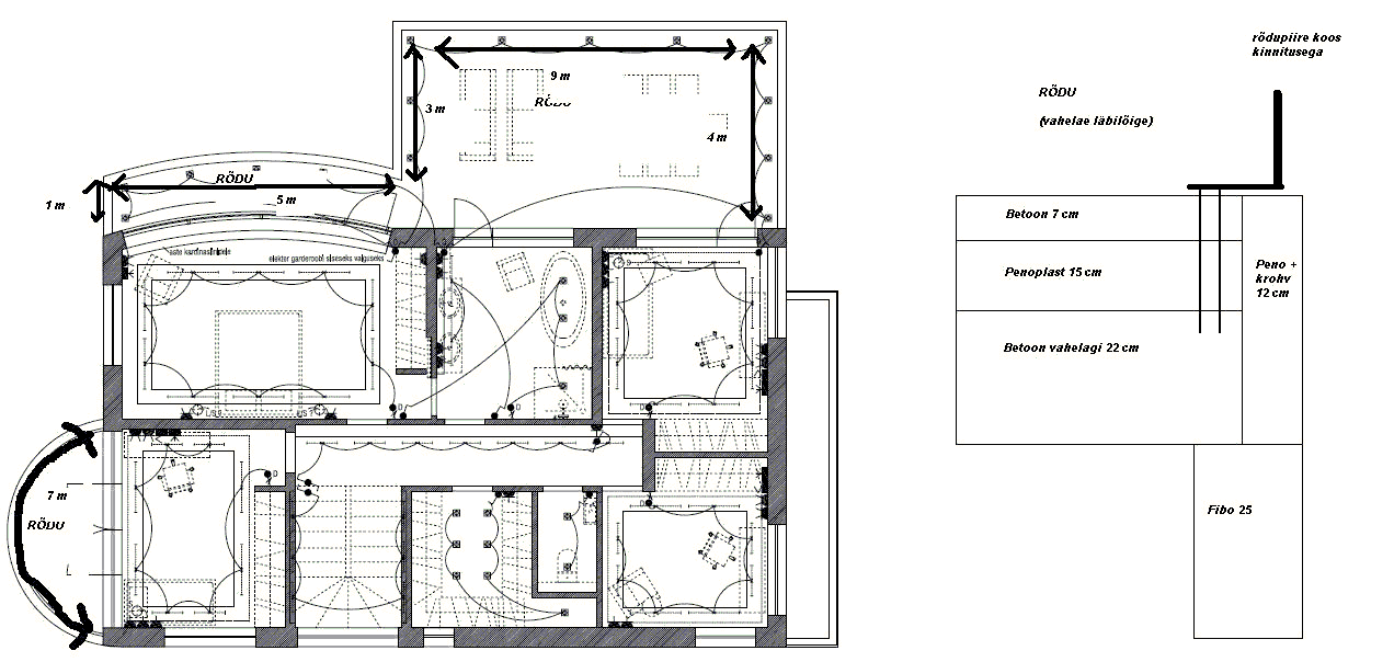
Rõdupiirded, pakkumine koostada nii roostevaba kui värvitud metalliga. Metallpostide vahel pronksi toonis klaas.

Pildid, video ja failid

Hanke korraldaja: eraisik ID6172

Pakkumised

Pakkumisi kokku: 2

Ettevõte Summa Käibemaks Lisatud Vestlus
Kasutaja ikoon ID11485
Pakkuja profiil Väike nool paremale
6 889,7€ Ei sisalda Ei sisalda 13.08.2008 Vestlus (0)

Pakkumise kirjeldus:

kõik hinnas

Kasutaja ikoon ID14941
Pakkuja profiil Väike nool paremale
5 752,1€ Ei sisalda Ei sisalda 13.08.2008 Vestlus (0)

Pakkumise kirjeldus:

Lõplik hind selgub pärast kliendikontakti

Küsimused hanke korraldajale

Küsimus: private ID10396   05.08.2008 13:22
Mis oleks rõdu kõrgus?

Teavita reeglite rikkumisest

Korraldaja vastus: 19.05.2026 18:19

1,2 m

Teavita reeglite rikkumisest

Lisa küsimus

Lisa küsimus

Minu pakkumine

Reeglid

Pakkumise kirjelduse väli on mõeldud pakkumise detailsemaks lahti kirjutamiseks. Pikema teksti mugavaks sisestamiseks klikkige kasti paremal ülaservas oleval ikoonil.
Pakkumist tehes on keelatud postitada enda kontaktandmeid (nimi, telefon, aadress jne). Me jälgime ja analüüsime pakkumisi, et vältida pettuseid ja reeglite rikkumisi.
Rikkumise puhul kasutajakonto blokeeritakse.

 

Teisi töid samas valdkonnas

Valdkonnas "Rõdutööd" on 2 aktiivset tööd

Rõdu renoveerimine

Asukoht: Harjumaa, Tallinn
Aega jäänud: 1p 5h
Tehtud pakkumisi: 1

no-img Pilt puudub

Lodžade ja varikatuste rekonstrueerimine

Asukoht: Läänemaa, Kirbla
Aega jäänud: 28p 5h
Tehtud pakkumisi: 1

Vanemad teated:

Vaata kõiki

Sellel veebilehel kasutatakse küpsiseid. Kasutamist jätkates nõustute küpsiste kasutamisega.

Sulge
 
Minu pakkumine

Reeglid

Pakkumise kirjelduse väli on mõeldud pakkumise detailsemaks lahti kirjutamiseks. Pikema teksti mugavaks sisestamiseks klikkige kasti paremal ülaservas oleval ikoonil.
Pakkumist tehes on keelatud postitada enda kontaktandmeid (nimi, telefon, aadress jne). Me jälgime ja analüüsime pakkumisi, et vältida pettuseid ja reeglite rikkumisi.
Rikkumise puhul kasutajakonto blokeeritakse.