+ Lisa oma töö      

Otsid ehitajat "Eramu ehitus" valdkonnast?

Parima pakkumise ja teostaja leidmiseks lisa oma töö.

Hange on lõppenud!

Võitjaks osutus kasutaja ID 17036

Suvila ümberehitus elamuks.

ID 13813

7354 vaatamist

Prindi

  • check Pakkumiste tegemine
    kuni 03.10.2008
  • check Võitja valik kuni
    10.10.2008
  • 3 Töö teostamine
    ja hinnang
Hanke lõpp: R, 3. oktoober, 2008
Maakond: Harjumaa
Muu asula: Saku vald
Tööde algus: N, 15. oktoober, 2009 (Soovituslik)
Tööde lõpp: N, 14. mai, 2026 (Soovituslik)
Ehitusmaterjalid: Töö tegija poolt

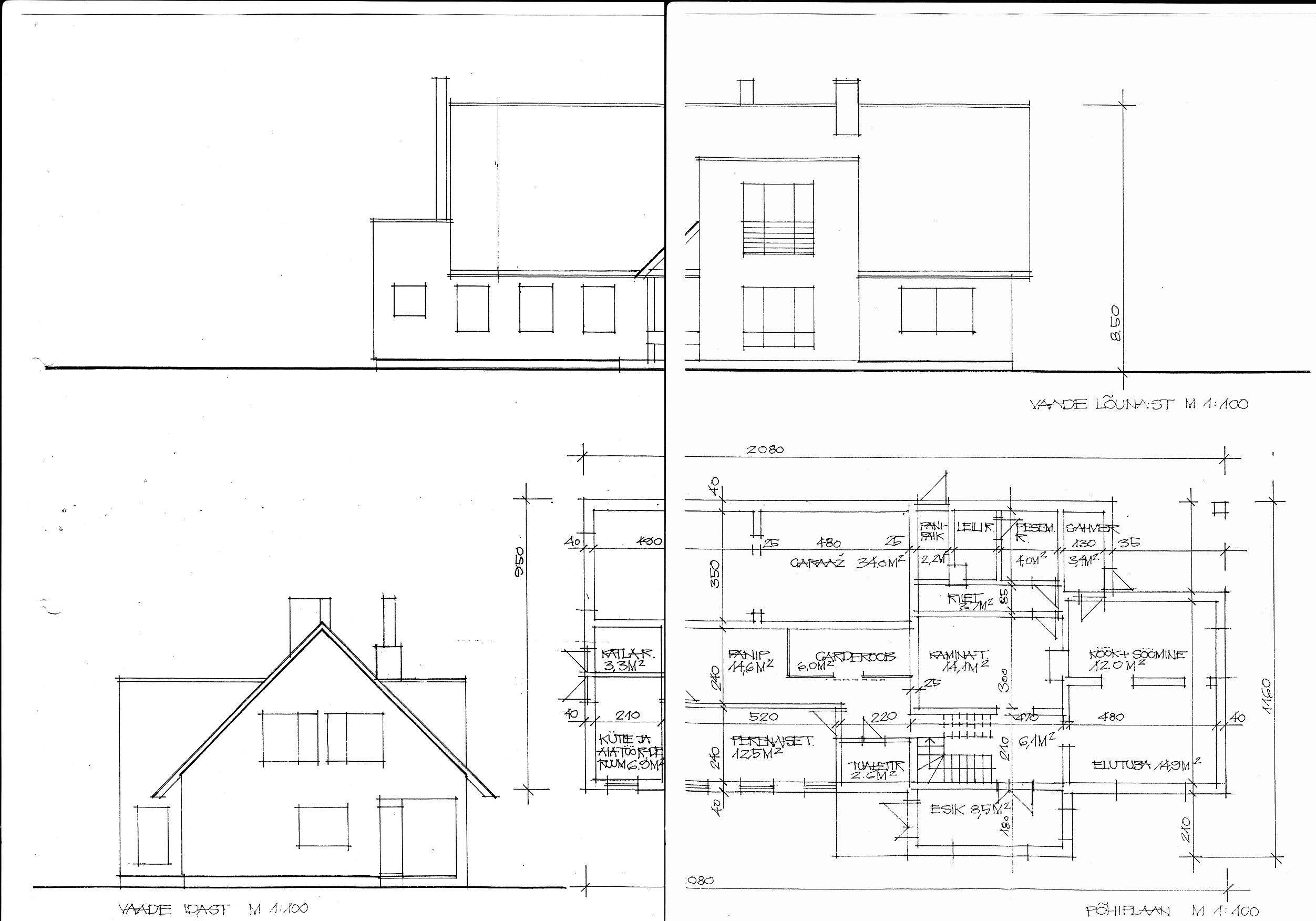
Töö sisu

Lamekatusega suvila ehitada ümber viilkatusega 1,5 korruseliseks elamuks. Ehitusalune pind 208 m2. Vundament on betoonist, (vaja ka juurde teha). Seinad puitsõrestik ja mullbetoon, need vaja soojustada ja kindlustada. Viimistluseks silikaatkivi ja puit voodrilaud. Soojustuseks mineraalvill. Katus Rannila plekist ~ 260 m2. Garaaziosa peal lamekatus-terrass ~ 36 m2. Hoone kõrgus katuseharjani on 8 m.

Pildid, video ja failid

Hanke korraldaja: eraisik ID16896

Pakkumised

Pakkumisi kokku: 16

Ettevõte Summa Käibemaks Lisatud Vestlus
Kasutaja ikoon ID6870
Pakkuja profiil Väike nool paremale
479,3€ Ei sisalda Ei sisalda 04.09.2008 Vestlus (0)

Pakkumise kirjeldus:

materjal+töö,m2hind

Kasutaja ikoon ID8103
Pakkuja profiil Väike nool paremale
43 459,9€ Sisaldab KM Sisaldab KM 04.09.2008 Vestlus (0)
Kasutaja ikoon ID4459
Pakkuja profiil Väike nool paremale
13 069,9€ Ei sisalda Ei sisalda 14.09.2008 Vestlus (0)
Kasutaja ikoon ID6835
Pakkuja profiil Väike nool paremale
15 914€ Ei sisalda Ei sisalda 15.09.2008 Vestlus (0)
Kasutaja ikoon ID11144
Pakkuja profiil Väike nool paremale
104 048,2€ Sisaldab KM Sisaldab KM 23.09.2008 Vestlus (0)

Pakkumise kirjeldus:

Töö ja materjalidega. Tutvutud olukorraga ja projektiga

Kasutaja ikoon ID10125
Pakkuja profiil Väike nool paremale
35 790,5€ Ei sisalda Ei sisalda 29.09.2008 Vestlus (0)
Kasutaja ikoon ID7379
Pakkuja profiil Väike nool paremale
94 972,7€ Ei sisalda Ei sisalda 30.09.2008 Vestlus (0)
Kasutaja ikoon ID17200
Pakkuja profiil Väike nool paremale
41 414,8€ Ei sisalda Ei sisalda 01.10.2008 Vestlus (0)
Kasutaja ikoon ID11485
Pakkuja profiil Väike nool paremale
626,3€ Ei sisalda Ei sisalda 02.10.2008 Vestlus (0)

Pakkumise kirjeldus:

m2 ja garantii 3 aastat

Kasutaja ikoon ID8730
Pakkuja profiil Väike nool paremale
36 237,9€ Ei sisalda Ei sisalda 02.10.2008 Vestlus (0)

Pakkumise kirjeldus:

Ilma siseviimistluseta

Kasutaja ikoon ID17036
Pakkuja profiil Väike nool paremale
30 038,5€ Sisaldab KM Sisaldab KM 02.10.2008 Vestlus (0)
Kasutaja ikoon ID10532
Pakkuja profiil Väike nool paremale
31 955,8€ Ei sisalda Ei sisalda 03.10.2008 Vestlus (0)
Kasutaja ikoon ID3342
Pakkuja profiil Väike nool paremale
36 723,6€ Ei sisalda Ei sisalda 03.10.2008 Vestlus (0)
Kasutaja ikoon ID17199
Pakkuja profiil Väike nool paremale
22 369,1€ Ei sisalda Ei sisalda 03.10.2008 Vestlus (0)
Kasutaja ikoon ID4892
Pakkuja profiil Väike nool paremale
30 421,9€ Ei sisalda Ei sisalda 03.10.2008 Vestlus (0)

Pakkumise kirjeldus:

Hind võib muutuda, kuna pilte pole näha ja majast on liialt kauge ettekujutus. Kindlasti on veel palju töid (nt. viimistlus) jne.. Meil on pikaajalised kogemused ja kvaliteetsed lahendused. Omame litsentse. Vaata ka tehtud töid, saate mingi ettekujutuse meist.

Kasutaja ikoon ID2173
Pakkuja profiil Väike nool paremale
89 476,3€ Sisaldab KM Sisaldab KM 03.10.2008 Vestlus (0)

Pakkumise kirjeldus:

Orienteeruv hind võtmed kätte. Kahapäel teme konkreetse hinnapakkumise.

Küsimused hanke korraldajale

Hanke korraldajale ei ole veel küsimusi esitatud.

Lisa küsimus

Lisa küsimus

Minu pakkumine

Reeglid

Pakkumise kirjelduse väli on mõeldud pakkumise detailsemaks lahti kirjutamiseks. Pikema teksti mugavaks sisestamiseks klikkige kasti paremal ülaservas oleval ikoonil.
Pakkumist tehes on keelatud postitada enda kontaktandmeid (nimi, telefon, aadress jne). Me jälgime ja analüüsime pakkumisi, et vältida pettuseid ja reeglite rikkumisi.
Rikkumise puhul kasutajakonto blokeeritakse.

 

Teisi töid samas valdkonnas

Valdkonnas "Eramu ehitus" on 2 aktiivset tööd

Eramu ehitus

Asukoht: Viljandimaa, Viljandi
Aega jäänud: 5p 12h
Tehtud pakkumisi: 1

no-img Pilt puudub

Eramu ehitus. Karp kinni.

Asukoht: Lääne-Virumaa
Aega jäänud: 3p 12h
Tehtud pakkumisi: 0

Vanemad teated:

Vaata kõiki

Sellel veebilehel kasutatakse küpsiseid. Kasutamist jätkates nõustute küpsiste kasutamisega.

Sulge
 
Minu pakkumine

Reeglid

Pakkumise kirjelduse väli on mõeldud pakkumise detailsemaks lahti kirjutamiseks. Pikema teksti mugavaks sisestamiseks klikkige kasti paremal ülaservas oleval ikoonil.
Pakkumist tehes on keelatud postitada enda kontaktandmeid (nimi, telefon, aadress jne). Me jälgime ja analüüsime pakkumisi, et vältida pettuseid ja reeglite rikkumisi.
Rikkumise puhul kasutajakonto blokeeritakse.