+ Lisa oma töö      

Otsid ehitajat "Siseviimistlustööd" valdkonnast?

Parima pakkumise ja teostaja leidmiseks lisa oma töö.

Sisetööd

ID 1434

5325 vaatamist

Prindi

  • check Pakkumiste tegemine
    kuni 13.08.2006
  • check Võitja valik kuni
    20.08.2006
  • 3 Töö teostamine
    ja hinnang
Hanke lõpp: P, 13. august, 2006
Maakond: Harjumaa
Muu asula: Rae küla, Rae vald
Tööde algus: R, 01. september, 2006 (Soovituslik)
Tööde lõpp: L, 30. september, 2006
Ehitusmaterjalid: Töö tegija poolt

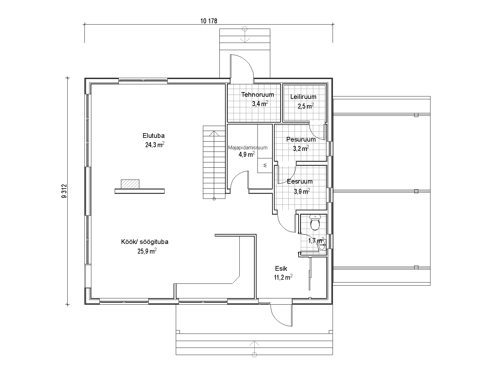
Töö sisu

Eramu 147m2.
Seinte üldpind 330 m2, lagede üldpind 170 m2- pahteldada ja värvida.
Põrandaid plaatida 46 m2, seinu plaatida koos pindade ettevalmistusega 54 m2(niisked ruumid).
Parketi paigaldus 101 m2. Siseuste paigaldus 8tk.

Pildid, video ja failid

Hanke korraldaja: eraisik ID2356

Pakkumised

Pakkumisi kokku: 7

Ettevõte Summa Käibemaks Lisatud Vestlus
Kasutaja ikoon ID1757
Pakkuja profiil Väike nool paremale
13 421,5€ Sisaldab KM Sisaldab KM 14.06.2006 Vestlus (0)
Kasutaja ikoon ID2141
Pakkuja profiil Väike nool paremale
12 462,8€ Ei sisalda Ei sisalda 02.07.2006 Vestlus (0)
Kasutaja ikoon ID1322
Pakkuja profiil Väike nool paremale
15 977,9€ Sisaldab KM Sisaldab KM 05.07.2006 Vestlus (0)
Kasutaja ikoon ID2492
Pakkuja profiil Väike nool paremale
1 013,6€ Sisaldab KM Sisaldab KM 06.07.2006 Vestlus (0)

Pakkumise kirjeldus:

Täisvalamis tehnologia, 150-200 mm - soodsaim variant, lisa info www.penoplast.ee

Kasutaja ikoon ID2286
Pakkuja profiil Väike nool paremale
8 883,7€ Ei sisalda Ei sisalda 22.07.2006 Vestlus (0)
Kasutaja ikoon ID2775
Pakkuja profiil Väike nool paremale
7 989,0€ Ei sisalda Ei sisalda 25.07.2006 Vestlus (0)

Pakkumise kirjeldus:

ilma parketi panekuta

Kasutaja ikoon ID2840
Pakkuja profiil Väike nool paremale
9 586,8€ Ei sisalda Ei sisalda 02.08.2006 Vestlus (0)

Küsimused hanke korraldajale

Küsimus: private ID1757   13.06.2006 23:38
sooviks objekti näha siis oskaks teha pakkumist.

Teavita reeglite rikkumisest

Korraldaja vastus: 10.05.2026 17:34

Objekt saab sisetöödeks valmis 23. august, esialgu saaksin ainult plaanid saata mailile.

Teavita reeglite rikkumisest

Küsimus: private ID2213   17.06.2006 19:16
Kas olete huvitatud leiliruumi ehituse pakkumisest?

Teavita reeglite rikkumisest

Korraldaja vastus: 10.05.2026 17:34

Olen huvitatud küll, soov oleks teha ergonoomiline lava.

Teavita reeglite rikkumisest

Küsimus: private ID2731   12.08.2006 19:38
Mis materjali seintega on tegu?

Teavita reeglite rikkumisest

Korraldaja vastus: 10.05.2026 17:34

Puitkarkass ja kaetud kipsiga

Teavita reeglite rikkumisest

Lisa küsimus

Lisa küsimus

Minu pakkumine

Reeglid

Pakkumise kirjelduse väli on mõeldud pakkumise detailsemaks lahti kirjutamiseks. Pikema teksti mugavaks sisestamiseks klikkige kasti paremal ülaservas oleval ikoonil.
Pakkumist tehes on keelatud postitada enda kontaktandmeid (nimi, telefon, aadress jne). Me jälgime ja analüüsime pakkumisi, et vältida pettuseid ja reeglite rikkumisi.
Rikkumise puhul kasutajakonto blokeeritakse.

 

Teisi töid samas valdkonnas

Valdkonnas "Siseviimistlustööd" on 25 aktiivset tööd

Korteri remont

Asukoht: Harjumaa, Muraste
Aega jäänud: 2p 6h
Tehtud pakkumisi: 15

no-img Pilt puudub

Laminaatparketi paigaldus

Asukoht: Harjumaa, Tallinn
Aega jäänud: 4p 6h
Tehtud pakkumisi: 8

Vanemad teated:

Vaata kõiki

Sellel veebilehel kasutatakse küpsiseid. Kasutamist jätkates nõustute küpsiste kasutamisega.

Sulge
 
Minu pakkumine

Reeglid

Pakkumise kirjelduse väli on mõeldud pakkumise detailsemaks lahti kirjutamiseks. Pikema teksti mugavaks sisestamiseks klikkige kasti paremal ülaservas oleval ikoonil.
Pakkumist tehes on keelatud postitada enda kontaktandmeid (nimi, telefon, aadress jne). Me jälgime ja analüüsime pakkumisi, et vältida pettuseid ja reeglite rikkumisi.
Rikkumise puhul kasutajakonto blokeeritakse.