+ Lisa oma töö      

Otsid ehitajat "Palkmajad" valdkonnast?

Parima pakkumise ja teostaja leidmiseks lisa oma töö.

Hange on lõppenud!

Võitjaks osutus kasutaja ID 17203

Palkmaja ehitus ja viimistlus

ID 14397

6962 vaatamist

Prindi

  • check Pakkumiste tegemine
    kuni 10.11.2008
  • check Võitja valik kuni
    17.11.2008
  • 3 Töö teostamine
    ja hinnang
Hanke lõpp: E, 10. november, 2008
Maakond: Valgamaa
Muu asula: Vidrike
Tööde algus: L, 15. november, 2008 (Soovituslik)
Tööde lõpp: P, 24. mai, 2026 (Soovituslik)
Ehitusmaterjalid: Töö tegija poolt

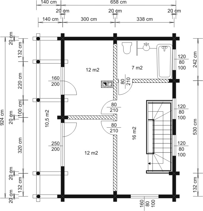
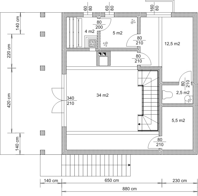
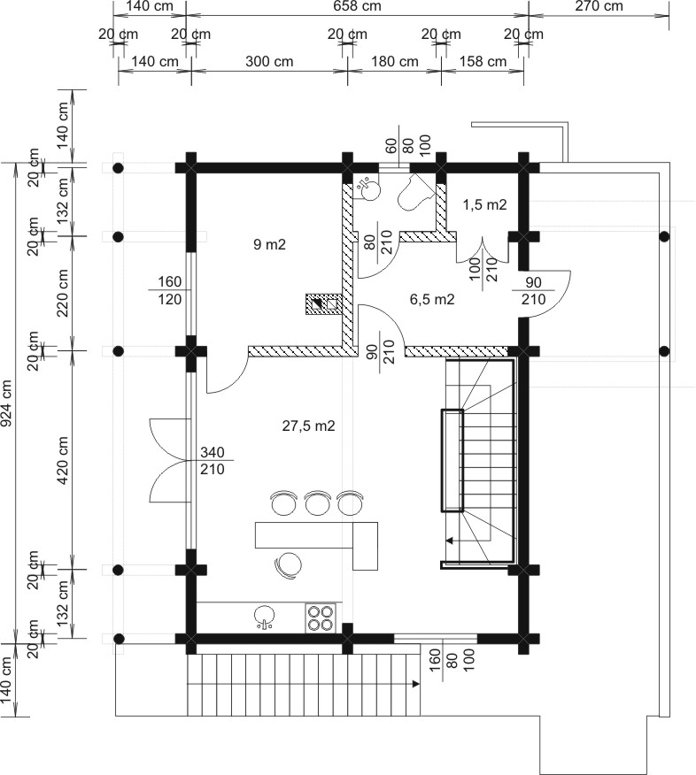
Töö sisu

ümar-, frees või kandilinepalkmaja "võtmed kätte".
Võib teha ka loomulikult eraldi pakkumisi majale, vundamendile jne.

Pildid, video ja failid

Hanke korraldaja: eraisik ID17576

Pakkumised

Pakkumisi kokku: 17

Ettevõte Summa Käibemaks Lisatud Vestlus
Kasutaja ikoon ID17203
Pakkuja profiil Väike nool paremale
59 742,2€ Sisaldab KM Sisaldab KM 03.11.2008 Vestlus (1)

Pakkumise kirjeldus:

Ma loodan, et ei hirmuta hinnaga üle, kuid see hind on nullist võtmeteni.

Kasutaja ikoon ID2163
Pakkuja profiil Väike nool paremale
60 716,1€ Sisaldab KM Sisaldab KM 04.11.2008 Vestlus (0)
Kasutaja ikoon ID8730
Pakkuja profiil Väike nool paremale
6 135,5€ Ei sisalda Ei sisalda 04.11.2008 Vestlus (0)

Pakkumise kirjeldus:

Vundament koos tgasitäitega.Põrandaplaadi valamine ja lihvimine eraldi

Kasutaja ikoon ID3978
Pakkuja profiil Väike nool paremale
189 434,1€ Ei sisalda Ei sisalda 04.11.2008 Vestlus (0)

Pakkumise kirjeldus:

"võtmed kätte"

Kasutaja ikoon ID11510
Pakkuja profiil Väike nool paremale
157 734,0€ Ei sisalda Ei sisalda 04.11.2008 Vestlus (0)

Pakkumise kirjeldus:

Võtmed kätte!

Kasutaja ikoon ID10424
Pakkuja profiil Väike nool paremale
24 478,2€ Sisaldab KM Sisaldab KM 04.11.2008 Vestlus (2)

Pakkumise kirjeldus:

Pakun ümarpalgist käsitööna valmistatud palkmaja karpi. Hinnapakkumine sisaldab palkosa, salatapi pulkasid, tendrilatte ja puitosa immutamist Sinesto-B ga. Paigaldus kliendi fundamendile kokkuleppel. Võin pakkuda kogu puitosa ( katus , aknad-uksed, trepp,karkass-seinad, lagi ja põrand) paigaldust.

Kasutaja ikoon ID4476
Pakkuja profiil Väike nool paremale
156 583,5€ Ei sisalda Ei sisalda 05.11.2008 Vestlus (0)

Pakkumise kirjeldus:

Hind "Võtmed kätte" (sisaldab ka kommunikatsioonid, projektid.) Detailne pakumine anname otse kätte. Referentsid saame näidata!

Kasutaja ikoon ID4892
Pakkuja profiil Väike nool paremale
166 068,0€ Sisaldab KM Sisaldab KM 05.11.2008 Vestlus (0)

Pakkumise kirjeldus:

Kahjuks läbi selle keskkonna detailsemat pakkumist esitada ei saa. Antud hind on "võtmed kätte" hind. Sees nii vundament, palkmaja,kivikatus, viimistlus. Ventilatsioon, veevärk, kanalistasioon. Välja ehitatud nii saun ,kui ka vannituba/WC koos san tehnikaga. Maja m2 hinnaks teeb see umbes 12800kr! Kuna oleme Lõuna-Eesti firma (Otepää on firma kodulin ... Rohkem

Kasutaja ikoon ID4459
Pakkuja profiil Väike nool paremale
27 897,4€ Sisaldab KM Sisaldab KM 05.11.2008 Vestlus (0)

Pakkumise kirjeldus:

vundament koos 0 korrusega

Kasutaja ikoon ID7882
Pakkuja profiil Väike nool paremale
81 642,9€ Ei sisalda Ei sisalda 06.11.2008 Vestlus (0)

Pakkumise kirjeldus:

"karp kinni" pakkumine. eritööde (viimistlus, küte, vesi,elekter) pakkumise koostamiseks peaks mõningad detailid läbi rääkima.

Kasutaja ikoon ID11735
Pakkuja profiil Väike nool paremale
110 400,6€ Ei sisalda Ei sisalda 07.11.2008 Vestlus (0)
Kasutaja ikoon ID6760
Pakkuja profiil Väike nool paremale
76 694,0€ Ei sisalda Ei sisalda 07.11.2008 Vestlus (0)
Kasutaja ikoon ID11485
Pakkuja profiil Väike nool paremale
118 274,9€ Ei sisalda Ei sisalda 08.11.2008 Vestlus (0)

Pakkumise kirjeldus:

garantii 4 aastat

Kasutaja ikoon ID17036
Pakkuja profiil Väike nool paremale
92 671,9€ Sisaldab KM Sisaldab KM 08.11.2008 Vestlus (0)
Kasutaja ikoon ID8103
Pakkuja profiil Väike nool paremale
99 063,1€ Sisaldab KM Sisaldab KM 09.11.2008 Vestlus (0)
Kasutaja ikoon ID9013
Pakkuja profiil Väike nool paremale
83 445,1€ Sisaldab KM Sisaldab KM 10.11.2008 Vestlus (0)

Pakkumise kirjeldus:

Palkseinad,katusekonstruktsioon koos kiviga,komplekteeritav puitmaterjal, aknad, auksed ,trepp koos lisapiirde ja rõdupiirdega.Paigaldus pakutavale materjalile.Võtmed kätte pakkumise saab teha kui on rohkem lähteandmeid.Eritööde hind sõltub Tellija erisoovidest.

Kasutaja ikoon ID8806
Pakkuja profiil Väike nool paremale
115 041,0€ Ei sisalda Ei sisalda 10.11.2008 Vestlus (0)

Pakkumise kirjeldus:

Teeme koostood proffesionaalsete palkmaja ehitajatega ja sealhulgas on iga töö jaoks omad meeskonnad. Tänu tööde puudumisele võime teha Teile üllatavalt hea hinna!

Küsimused hanke korraldajale

Küsimus: private ID10424   03.11.2008 15:44
Kas soovite freespalgist maja, või võib ka käsitöö palkmaja pakkuda

Teavita reeglite rikkumisest

Korraldaja vastus: 24.05.2026 20:52

võib olla ka käsitöö palk

Teavita reeglite rikkumisest

Lisa küsimus

Lisa küsimus

Minu pakkumine

Reeglid

Pakkumise kirjelduse väli on mõeldud pakkumise detailsemaks lahti kirjutamiseks. Pikema teksti mugavaks sisestamiseks klikkige kasti paremal ülaservas oleval ikoonil.
Pakkumist tehes on keelatud postitada enda kontaktandmeid (nimi, telefon, aadress jne). Me jälgime ja analüüsime pakkumisi, et vältida pettuseid ja reeglite rikkumisi.
Rikkumise puhul kasutajakonto blokeeritakse.

 

Vanemad teated:

Vaata kõiki

Sellel veebilehel kasutatakse küpsiseid. Kasutamist jätkates nõustute küpsiste kasutamisega.

Sulge
 
Minu pakkumine

Reeglid

Pakkumise kirjelduse väli on mõeldud pakkumise detailsemaks lahti kirjutamiseks. Pikema teksti mugavaks sisestamiseks klikkige kasti paremal ülaservas oleval ikoonil.
Pakkumist tehes on keelatud postitada enda kontaktandmeid (nimi, telefon, aadress jne). Me jälgime ja analüüsime pakkumisi, et vältida pettuseid ja reeglite rikkumisi.
Rikkumise puhul kasutajakonto blokeeritakse.