+ Lisa oma töö      

Otsid ehitajat "Ventilatsioonitööd" valdkonnast?

Parima pakkumise ja teostaja leidmiseks lisa oma töö.

Ventilatsiooni paigaldus

ID 15110

6133 vaatamist

Prindi

  • check Pakkumiste tegemine
    kuni 21.02.2009
  • check Võitja valik kuni
    28.02.2009
  • 3 Töö teostamine
    ja hinnang
Hanke lõpp: L, 21. veebruar, 2009
Maakond: Tartumaa
Linn: Kallaste
Tööde algus: K, 18. veebruar, 2009 (Soovituslik)
Tööde lõpp: T, 12. mai, 2026 (Soovituslik)
Ehitusmaterjalid: Töö tegija poolt

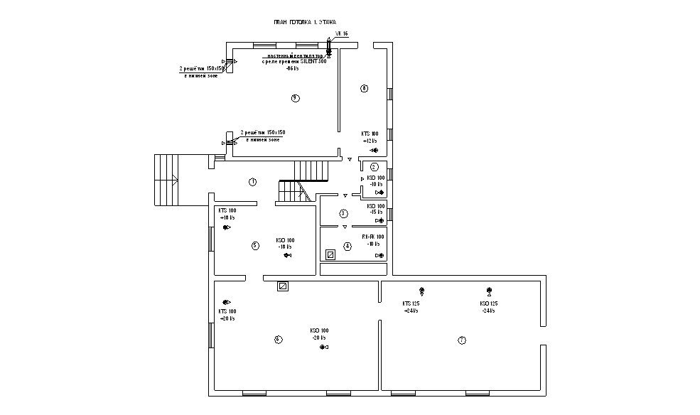
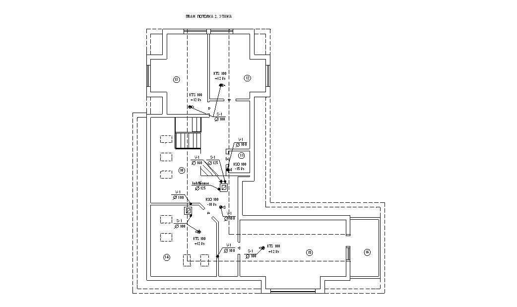
Töö sisu

Vaja teha hinnapakkumine eramu ventilatsioonile. Pakkumises eraldi välja tuua materjal ja töömaksumus.

Pildid, video ja failid

Hanke korraldaja: eraisik ID11031

Pakkumised

Pakkumisi kokku: 4

Ettevõte Summa Käibemaks Lisatud Vestlus
Kasutaja ikoon ID2189
Pakkuja profiil Väike nool paremale
8 883,7€ Ei sisalda Ei sisalda 12.02.2009 Vestlus (0)

Pakkumise kirjeldus:

Seade49000, Materjal62000.-, Töö ja puurimised 28000.-

Kasutaja ikoon ID18582
Pakkuja profiil Väike nool paremale
7 307,7€ Ei sisalda Ei sisalda 16.02.2009 Vestlus (0)

Pakkumise kirjeldus:

Materjal 70340.-, paigaldus 26000.-, abimat.transp.mõõdistam. 18000.-

Kasutaja ikoon ID16961
Pakkuja profiil Väike nool paremale
1 553,1€ Ei sisalda Ei sisalda 21.02.2009 Vestlus (0)

Pakkumise kirjeldus:

tööraha, materjali hinda saab hiljem kokku leppida

Kasutaja ikoon ID1058
Pakkuja profiil Väike nool paremale
4 985,1€ Ei sisalda Ei sisalda 21.02.2009 Vestlus (0)

Küsimused hanke korraldajale

Küsimus: private ID9697   11.02.2009 18:32
Kas tavaline sundventilatsioon või sisse -väljapuhkega? Kas pakkumine peab sisaldama ka mingit agregaati?

Teavita reeglite rikkumisest

Korraldaja vastus: 12.05.2026 22:06

Vaadake projekti tingimusi.

Teavita reeglite rikkumisest

Küsimus: private ID2799   13.02.2009 15:28
Tere! Kas olete huvitatud surutis aja pakkumisest, kus kõigist ettenähtud tubades on vent ilma mehaanikata ja niisketes ruumides on sundventilatsioon?

Teavita reeglite rikkumisest

Korraldaja vastus:
Hanke korraldaja ei ole küsimusele veel vastanud

Küsimus: private ID15091   15.02.2009 21:22
Tere!

Teavita reeglite rikkumisest

Korraldaja vastus:
Hanke korraldaja ei ole küsimusele veel vastanud

Küsimus: private ID15091   15.02.2009 21:24
Võin pakkuda mõistliku hinnaga tuletõkestus-tööde teostamist teie eramus! Kui huvi andke teada.

Teavita reeglite rikkumisest

Korraldaja vastus:
Hanke korraldaja ei ole küsimusele veel vastanud

Lisa küsimus

Lisa küsimus

Minu pakkumine

Reeglid

Pakkumise kirjelduse väli on mõeldud pakkumise detailsemaks lahti kirjutamiseks. Pikema teksti mugavaks sisestamiseks klikkige kasti paremal ülaservas oleval ikoonil.
Pakkumist tehes on keelatud postitada enda kontaktandmeid (nimi, telefon, aadress jne). Me jälgime ja analüüsime pakkumisi, et vältida pettuseid ja reeglite rikkumisi.
Rikkumise puhul kasutajakonto blokeeritakse.

 

Teisi töid samas valdkonnas

Valdkonnas "Ventilatsioonitööd" on 3 aktiivset tööd

Eramaja ventilatsioonitööd

Asukoht: Tartumaa, Soinaste
Aega jäänud: 6p 1h
Tehtud pakkumisi: 1

no-img Pilt puudub

Ventilatsiooni paigaldamine

Asukoht: Tartumaa, Tartu
Aega jäänud: 3p 1h
Tehtud pakkumisi: 0

Vanemad teated:

Vaata kõiki

Sellel veebilehel kasutatakse küpsiseid. Kasutamist jätkates nõustute küpsiste kasutamisega.

Sulge
 
Minu pakkumine

Reeglid

Pakkumise kirjelduse väli on mõeldud pakkumise detailsemaks lahti kirjutamiseks. Pikema teksti mugavaks sisestamiseks klikkige kasti paremal ülaservas oleval ikoonil.
Pakkumist tehes on keelatud postitada enda kontaktandmeid (nimi, telefon, aadress jne). Me jälgime ja analüüsime pakkumisi, et vältida pettuseid ja reeglite rikkumisi.
Rikkumise puhul kasutajakonto blokeeritakse.