+ Lisa oma töö      

Otsid ehitajat "Üldehitus" valdkonnast?

Parima pakkumise ja teostaja leidmiseks lisa oma töö.

Maja üldehitus Tallinas.

ID 15868

5467 vaatamist

Prindi

  • check Pakkumiste tegemine
    kuni 16.04.2009
  • check Võitja valik kuni
    23.04.2009
  • 3 Töö teostamine
    ja hinnang
Hanke lõpp: N, 16. aprill, 2009
Maakond: Harjumaa
Linn: Tallinn
Tööde algus: R, 15. mai, 2009 (Soovituslik)
Tööde lõpp: P, 10. mai, 2026 (Soovituslik)
Ehitusmaterjalid: Töö tegija poolt

Töö sisu

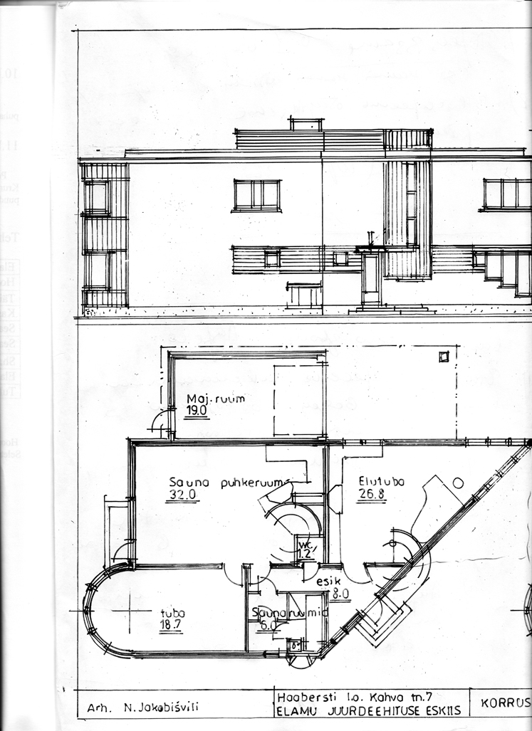
Maja üldehitus Tallinnas. Vt plaanid.

Pildid, video ja failid

Hanke korraldaja: ettevõte ID19641

Pakkumised

Pakkumisi kokku: 20

Ettevõte Summa Käibemaks Lisatud Vestlus
Kasutaja ikoon ID17036
Pakkuja profiil Väike nool paremale
104 715,5€ Sisaldab KM Sisaldab KM 10.04.2009 Vestlus (0)
Kasutaja ikoon ID5258
Pakkuja profiil Väike nool paremale
83 085,1€ Ei sisalda Ei sisalda 10.04.2009 Vestlus (0)
Kasutaja ikoon ID17809
Pakkuja profiil Väike nool paremale
70 302,8€ Ei sisalda Ei sisalda 10.04.2009 Vestlus (0)

Pakkumise kirjeldus:

Seeon meie viimane objekt http://pilt.delfi.ee/ru/album/102427/?view=blog

Kasutaja ikoon ID6870
Pakkuja profiil Väike nool paremale
85 145,5€ Sisaldab KM Sisaldab KM 10.04.2009 Vestlus (0)

Pakkumise kirjeldus:

Hind on koos KM-ga,materjali hind 865043km-ga,töö hind 395930,töö hinnas sees lammutamine,mullatööd,platsi kulud,vesi ja elekter,vestleme

Kasutaja ikoon ID8633
Pakkuja profiil Väike nool paremale
79 289,2€ Ei sisalda Ei sisalda 12.04.2009 Vestlus (0)

Pakkumise kirjeldus:

töö ja materjal mis on mahutabelis,detailsem tuleb kohapeal vaadata.

Kasutaja ikoon ID7379
Pakkuja profiil Väike nool paremale
65 538,8€ Ei sisalda Ei sisalda 13.04.2009 Vestlus (0)
Kasutaja ikoon ID18317
Pakkuja profiil Väike nool paremale
84 286,0€ Sisaldab KM Sisaldab KM 13.04.2009 Vestlus (0)

Pakkumise kirjeldus:

Hind sisaldab kõiki töid ja materjale. Arveldamine aktide alusel. Peale tööde l~ppu anname tellijale ule kogu ehitustokumentatsjooni koos materjalide tootjapoolsete sertifikatidega. On olemas referenrsid.

Kasutaja ikoon ID8943
Pakkuja profiil Väike nool paremale
63 106,4€ Ei sisalda Ei sisalda 14.04.2009 Vestlus (0)

Pakkumise kirjeldus:

Töö kiire ja korralik.

Kasutaja ikoon ID19077
Pakkuja profiil Väike nool paremale
88 680,6€ Sisaldab KM Sisaldab KM 15.04.2009 Vestlus (0)

Pakkumise kirjeldus:

Vastavalt tabelile.

Kasutaja ikoon ID2173
Pakkuja profiil Väike nool paremale
95 406,0€ Sisaldab KM Sisaldab KM 15.04.2009 Vestlus (0)
Kasutaja ikoon ID1472
Pakkuja profiil Väike nool paremale
72 220,2€ Sisaldab KM Sisaldab KM 16.04.2009 Vestlus (0)

Pakkumise kirjeldus:

Garantii 5 aasta

Kasutaja ikoon ID7695
Pakkuja profiil Väike nool paremale
70 302,8€ Ei sisalda Ei sisalda 16.04.2009 Vestlus (0)
Kasutaja ikoon ID923
Pakkuja profiil Väike nool paremale
73 498,4€ Ei sisalda Ei sisalda 16.04.2009 Vestlus (0)
Kasutaja ikoon ID16869
Pakkuja profiil Väike nool paremale
71 613€ Ei sisalda Ei sisalda 16.04.2009 Vestlus (0)
Kasutaja ikoon ID17259
Pakkuja profiil Väike nool paremale
68 115,1€ Ei sisalda Ei sisalda 16.04.2009 Vestlus (0)
Kasutaja ikoon ID19632
Pakkuja profiil Väike nool paremale
55 474,5€ Ei sisalda Ei sisalda 16.04.2009 Vestlus (0)

Pakkumise kirjeldus:

kmpl hind

Kasutaja ikoon ID19574
Pakkuja profiil Väike nool paremale
51 129,3€ Ei sisalda Ei sisalda 16.04.2009 Vestlus (0)

Pakkumise kirjeldus:

Pakkumine sisaldab kõiki loetelus toodud töid ja materjale

Kasutaja ikoon ID4109
Pakkuja profiil Väike nool paremale
75 735,3€ Ei sisalda Ei sisalda 16.04.2009 Vestlus (0)

Pakkumise kirjeldus:

Komplektne hind

Kasutaja ikoon ID12190
Pakkuja profiil Väike nool paremale
57 520,5€ Ei sisalda Ei sisalda 16.04.2009 Vestlus (0)
Kasutaja ikoon ID20112
Pakkuja profiil Väike nool paremale
69 344,1€ Sisaldab KM Sisaldab KM 16.04.2009 Vestlus (0)

Pakkumise kirjeldus:

Võimalus külastada ja tutvuda vundamendist valminud ja üleantud elamuid Tallinnas kesklinnas,Nõmmel,Kadriorus,Meriväljal,Viimsis.

Küsimused hanke korraldajale

Küsimus: private ID19077   10.04.2009 11:28
Lammutustööd kmpl 1. Mida tuleb lammutada, mahud.Oleks hea kui saate lammutus osast pilte lisada.

Teavita reeglite rikkumisest

Korraldaja vastus: 10.05.2026 02:57

Kahjuks ei ole praegu võimalik pilte lisada, aga arvestage kuskil 60000. Krundil on vana suvila.

Teavita reeglite rikkumisest

Küsimus: private ID17036   10.04.2009 12:31
Kui suures mahus tuleb teostada mullatöid ja kas vajate ka muruseemne mahapanekut ning rullimist

Teavita reeglite rikkumisest

Korraldaja vastus: 10.05.2026 02:57

Mullatoid mis on vaja teha koos vundamendiga. Muruseeme ei vaja

Teavita reeglite rikkumisest

Lisa küsimus

Lisa küsimus

Minu pakkumine

Reeglid

Pakkumise kirjelduse väli on mõeldud pakkumise detailsemaks lahti kirjutamiseks. Pikema teksti mugavaks sisestamiseks klikkige kasti paremal ülaservas oleval ikoonil.
Pakkumist tehes on keelatud postitada enda kontaktandmeid (nimi, telefon, aadress jne). Me jälgime ja analüüsime pakkumisi, et vältida pettuseid ja reeglite rikkumisi.
Rikkumise puhul kasutajakonto blokeeritakse.

 

Teisi töid samas valdkonnas

Valdkonnas "Üldehitus" on 27 aktiivset tööd

Terassi õlitamine, 13,7 ruutu

Asukoht: Harjumaa, Saue
Aega jäänud: 5p 21h
Tehtud pakkumisi: 4

Eramaja ehitus

Asukoht: Harjumaa, Suurupi
Aega jäänud: 4p 21h
Tehtud pakkumisi: 4

Vanemad teated:

Vaata kõiki

Sellel veebilehel kasutatakse küpsiseid. Kasutamist jätkates nõustute küpsiste kasutamisega.

Sulge
 
Minu pakkumine

Reeglid

Pakkumise kirjelduse väli on mõeldud pakkumise detailsemaks lahti kirjutamiseks. Pikema teksti mugavaks sisestamiseks klikkige kasti paremal ülaservas oleval ikoonil.
Pakkumist tehes on keelatud postitada enda kontaktandmeid (nimi, telefon, aadress jne). Me jälgime ja analüüsime pakkumisi, et vältida pettuseid ja reeglite rikkumisi.
Rikkumise puhul kasutajakonto blokeeritakse.