+ Lisa oma töö      

Otsid ehitajat "Eramu ehitus" valdkonnast?

Parima pakkumise ja teostaja leidmiseks lisa oma töö.

Saunamaja

ID 16376

5661 vaatamist

Prindi

  • check Pakkumiste tegemine
    kuni 08.06.2009
  • check Võitja valik kuni
    15.06.2009
  • 3 Töö teostamine
    ja hinnang
Hanke lõpp: E, 8. juuni, 2009
Maakond: Harjumaa
Tööde algus: E, 15. juuni, 2009 (Soovituslik)
Tööde lõpp: N, 14. mai, 2026 (Soovituslik)
Ehitusmaterjalid: Töö tellija poolt

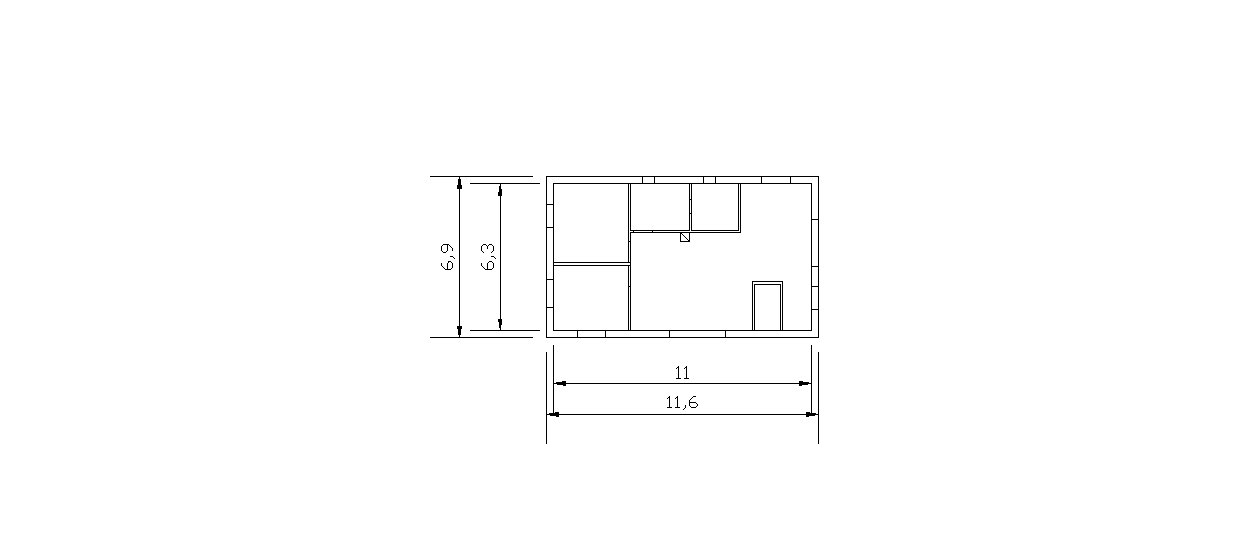
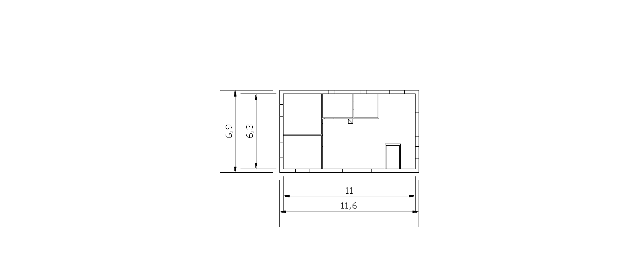
Töö sisu

Hinnapakkumine 69m2 neto pinnaga 1-kordsele viilkatusega saunamajale, seinad on puitkarkass 45x195 höövelpuit, 100+100 vill, tuuletõke ja laudis. (soov saada pakkumine karbi kujul).

Pildid, video ja failid

Hanke korraldaja: eraisik ID20498

Pakkumised

Pakkumisi kokku: 24

Ettevõte Summa Käibemaks Lisatud Vestlus
Kasutaja ikoon ID6870
Pakkuja profiil Väike nool paremale
5 049,0€ Ei sisalda Ei sisalda 09.05.2009 Vestlus (0)

Pakkumise kirjeldus:

Võtke vesrluse rubriigis meiega kontakti

Kasutaja ikoon ID18466
Pakkuja profiil Väike nool paremale
3 898,6€ Sisaldab KM Sisaldab KM 09.05.2009 Vestlus (0)
Kasutaja ikoon ID3040
Pakkuja profiil Väike nool paremale
4 473,8€ Ei sisalda Ei sisalda 09.05.2009 Vestlus (0)
Kasutaja ikoon ID17948
Pakkuja profiil Väike nool paremale
37 068,8€ Sisaldab KM Sisaldab KM 11.05.2009 Vestlus (0)

Pakkumise kirjeldus:

Hinnapakkumine sisaldab Soojustatud majakarpi, seest kaetud OSB plaadiga ja väljast värvitud voodrilauaga. Hind ei sisalda siseseinte ehitust ja korstna ehitust.

Kasutaja ikoon ID19576
Pakkuja profiil Väike nool paremale
40 264,3€ Sisaldab KM Sisaldab KM 11.05.2009 Vestlus (0)

Pakkumise kirjeldus:

Pakkumine sisaldab soojustatud karpi koos katuse ja akendega

Kasutaja ikoon ID8633
Pakkuja profiil Väike nool paremale
8 268,3€ Ei sisalda Ei sisalda 11.05.2009 Vestlus (0)

Pakkumise kirjeldus:

töö vundament,seinad ,katus ,soojustus

Kasutaja ikoon ID20246
Pakkuja profiil Väike nool paremale
15 147,1€ Ei sisalda Ei sisalda 12.05.2009 Vestlus (0)
Kasutaja ikoon ID17665
Pakkuja profiil Väike nool paremale
13 229,7€ Sisaldab KM Sisaldab KM 13.05.2009 Vestlus (0)
Kasutaja ikoon ID2175
Pakkuja profiil Väike nool paremale
13 229,7€ Sisaldab KM Sisaldab KM 15.05.2009 Vestlus (0)

Pakkumise kirjeldus:

Tööraha

Kasutaja ikoon ID2969
Pakkuja profiil Väike nool paremale
7 925,0€ Ei sisalda Ei sisalda 19.05.2009 Vestlus (0)

Pakkumise kirjeldus:

Ei ole arvestatud torustikke, viimistlust ja betoon põrandat. Hinna sisse mahub ära 60cm kõrgune fibo vundament.

Kasutaja ikoon ID19935
Pakkuja profiil Väike nool paremale
12 846,2€ Ei sisalda Ei sisalda 20.05.2009 Vestlus (0)
Kasutaja ikoon ID6552
Pakkuja profiil Väike nool paremale
11 427,4€ Ei sisalda Ei sisalda 07.06.2009 Vestlus (0)

Pakkumise kirjeldus:

Sisaldab kõiki töid vundamendist katuseni - valmis karbini. Parimat!

Kasutaja ikoon ID5026
Pakkuja profiil Väike nool paremale
13 229,7€ Ei sisalda Ei sisalda 07.06.2009 Vestlus (0)

Pakkumise kirjeldus:

karp,ilma avatäideteta

Kasutaja ikoon ID9855
Pakkuja profiil Väike nool paremale
3 834,7€ Ei sisalda Ei sisalda 07.06.2009 Vestlus (0)

Pakkumise kirjeldus:

Liiga vähe andmeid, ligikaudne hind tööle.

Kasutaja ikoon ID9823
Pakkuja profiil Väike nool paremale
12 782,3€ Sisaldab KM Sisaldab KM 07.06.2009 Vestlus (0)
Kasutaja ikoon ID17036
Pakkuja profiil Väike nool paremale
8 608,9€ Ei sisalda Ei sisalda 07.06.2009 Vestlus (0)

Pakkumise kirjeldus:

Tere.Pakkumine tehtud postvundament,põrand laagidel ja soojustus vahel, seinad puitkarkass, soojustatud, väljast tuuletõke, seest laudis. katusefermid, trapetsplekk, lakke soojustus ja aurutõkkepaber, põrandale laudis, aknad uksed ja vaheseinad puitkarkass.Parimatega

Kasutaja ikoon ID7695
Pakkuja profiil Väike nool paremale
8 308,5€ Ei sisalda Ei sisalda 07.06.2009 Vestlus (0)

Pakkumise kirjeldus:

Tööraha. Garantii

Kasutaja ikoon ID17321
Pakkuja profiil Väike nool paremale
14 060,6€ Sisaldab KM Sisaldab KM 07.06.2009 Vestlus (0)
Kasutaja ikoon ID18889
Pakkuja profiil Väike nool paremale
4 026,4€ Ei sisalda Ei sisalda 08.06.2009 Vestlus (0)
Kasutaja ikoon ID1472
Pakkuja profiil Väike nool paremale
8 308,5€ Sisaldab KM Sisaldab KM 08.06.2009 Vestlus (0)

Pakkumise kirjeldus:

Garantii 5 aasta

Kasutaja ikoon ID14321
Pakkuja profiil Väike nool paremale
11 823,7€ Sisaldab KM Sisaldab KM 08.06.2009 Vestlus (0)
Kasutaja ikoon ID18444
Pakkuja profiil Väike nool paremale
14 188,4€ Sisaldab KM Sisaldab KM 08.06.2009 Vestlus (0)
Kasutaja ikoon ID16869
Pakkuja profiil Väike nool paremale
10 225,9€ Ei sisalda Ei sisalda 08.06.2009 Vestlus (0)
Kasutaja ikoon ID17259
Pakkuja profiil Väike nool paremale
10 865,0€ Ei sisalda Ei sisalda 08.06.2009 Vestlus (0)

Küsimused hanke korraldajale

Küsimus: private ID8633   09.05.2009 00:41
Mis sees tuleb,ja mis katuse materjal,või lihtsalt kile?

Teavita reeglite rikkumisest

Korraldaja vastus:
Hanke korraldaja ei ole küsimusele veel vastanud

Küsimus: private ID20454   09.05.2009 09:17
Liiga vähe infot. Selle põhjal on üsna raske teha adekvaatset pakkumist. Kas on näidata projekt või midago särnast sellega?

Teavita reeglite rikkumisest

Korraldaja vastus:
Hanke korraldaja ei ole küsimusele veel vastanud

Küsimus: private ID17964   11.05.2009 09:44
Tere! Kus kandis Harjumaal objekt asub?

Teavita reeglite rikkumisest

Korraldaja vastus:
Hanke korraldaja ei ole küsimusele veel vastanud

Lisa küsimus

Lisa küsimus

Minu pakkumine

Reeglid

Pakkumise kirjelduse väli on mõeldud pakkumise detailsemaks lahti kirjutamiseks. Pikema teksti mugavaks sisestamiseks klikkige kasti paremal ülaservas oleval ikoonil.
Pakkumist tehes on keelatud postitada enda kontaktandmeid (nimi, telefon, aadress jne). Me jälgime ja analüüsime pakkumisi, et vältida pettuseid ja reeglite rikkumisi.
Rikkumise puhul kasutajakonto blokeeritakse.

 

Teisi töid samas valdkonnas

Valdkonnas "Eramu ehitus" on 2 aktiivset tööd

Eramu ehitus

Asukoht: Viljandimaa, Viljandi
Aega jäänud: 5p 12h
Tehtud pakkumisi: 1

no-img Pilt puudub

Eramu ehitus. Karp kinni.

Asukoht: Lääne-Virumaa
Aega jäänud: 3p 12h
Tehtud pakkumisi: 0

Vanemad teated:

Vaata kõiki

Sellel veebilehel kasutatakse küpsiseid. Kasutamist jätkates nõustute küpsiste kasutamisega.

Sulge
 
Minu pakkumine

Reeglid

Pakkumise kirjelduse väli on mõeldud pakkumise detailsemaks lahti kirjutamiseks. Pikema teksti mugavaks sisestamiseks klikkige kasti paremal ülaservas oleval ikoonil.
Pakkumist tehes on keelatud postitada enda kontaktandmeid (nimi, telefon, aadress jne). Me jälgime ja analüüsime pakkumisi, et vältida pettuseid ja reeglite rikkumisi.
Rikkumise puhul kasutajakonto blokeeritakse.