+ Lisa oma töö      

Otsid ehitajat "Ehituse peatöövõtt" valdkonnast?

Parima pakkumise ja teostaja leidmiseks lisa oma töö.

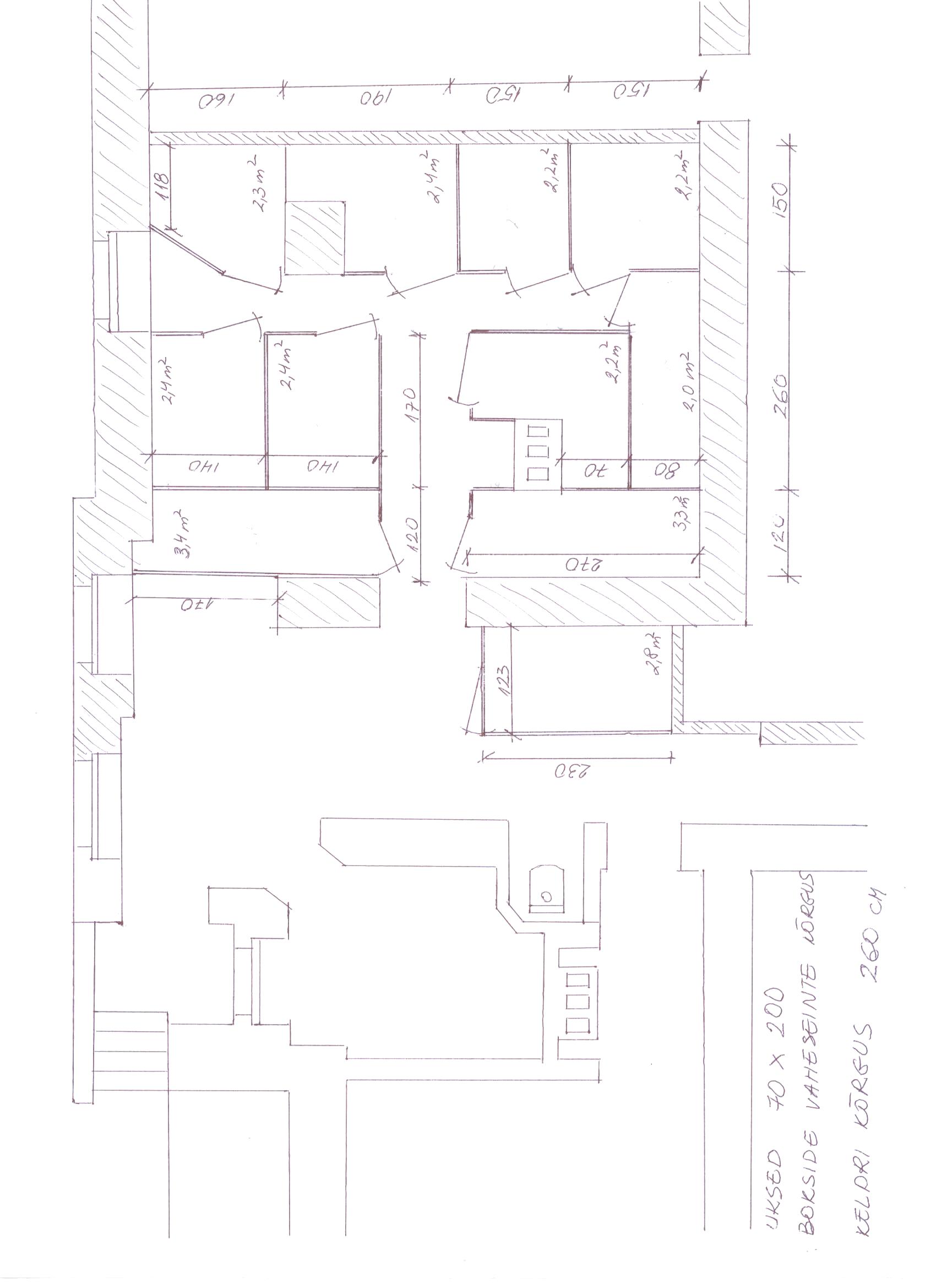
Keldribokside ehitus

ID 16435

6993 vaatamist

Prindi

  • check Pakkumiste tegemine
    kuni 22.05.2009
  • check Võitja valik kuni
    29.05.2009
  • 3 Töö teostamine
    ja hinnang
Hanke lõpp: R, 22. mai, 2009
Maakond: Harjumaa
Linn: Tallinn
Tööde algus: K, 20. mai, 2009 (Soovituslik)
Tööde lõpp: K, 20. mai, 2026 (Soovituslik)
Ehitusmaterjalid: Töö tegija poolt

Töö sisu

Soovime ehitada 11 keldriboksi vastavalt lisatud joonisele. Boksid ka puidust või metallist (kumb tuleb odavam). Kui puidust, siis puit võiks olla värvitud

Pildid, video ja failid

Hanke korraldaja: ettevõte ID11077

Pakkumised

Pakkumisi kokku: 16

Ettevõte Summa Käibemaks Lisatud Vestlus
Kasutaja ikoon ID8983
Pakkuja profiil Väike nool paremale
6 391,2€ Ei sisalda Ei sisalda 12.05.2009 Vestlus (0)
Kasutaja ikoon ID17852
Pakkuja profiil Väike nool paremale
3 834,7€ Ei sisalda Ei sisalda 12.05.2009 Vestlus (0)
Kasutaja ikoon ID16241
Pakkuja profiil Väike nool paremale
4 793,4€ Sisaldab KM Sisaldab KM 12.05.2009 Vestlus (0)
Kasutaja ikoon ID20103
Pakkuja profiil Väike nool paremale
3 981,7€ Sisaldab KM Sisaldab KM 12.05.2009 Vestlus (0)

Pakkumise kirjeldus:

Puit seinad,laudis, värv

Kasutaja ikoon ID2969
Pakkuja profiil Väike nool paremale
3 451,2€ Sisaldab KM Sisaldab KM 19.05.2009 Vestlus (0)

Pakkumise kirjeldus:

Hind on arvestatud puitkarkassil, kaetud laudisega, uksed metallist ja võrguga. Ukse lukustamine tabalukuga.

Kasutaja ikoon ID19935
Pakkuja profiil Väike nool paremale
4 473,8€ Ei sisalda Ei sisalda 20.05.2009 Vestlus (0)
Kasutaja ikoon ID20246
Pakkuja profiil Väike nool paremale
5 353,2€ Ei sisalda Ei sisalda 21.05.2009 Vestlus (0)
Kasutaja ikoon ID18317
Pakkuja profiil Väike nool paremale
4 052€ Sisaldab KM Sisaldab KM 21.05.2009 Vestlus (0)

Pakkumise kirjeldus:

Ainult tööraha.

Kasutaja ikoon ID17036
Pakkuja profiil Väike nool paremale
3 086,9€ Ei sisalda Ei sisalda 21.05.2009 Vestlus (0)

Pakkumise kirjeldus:

pakkumine tehtud puidust seintele ja ustele, katteks näiteks osb plaat

Kasutaja ikoon ID18444
Pakkuja profiil Väike nool paremale
3 643,0€ Ei sisalda Ei sisalda 21.05.2009 Vestlus (0)

Pakkumise kirjeldus:

Puidust. Kaetud OSB plaatidega.Meeldivat koostööd soovides

Kasutaja ikoon ID20761
Pakkuja profiil Väike nool paremale
4 026,4€ Ei sisalda Ei sisalda 21.05.2009 Vestlus (0)

Pakkumise kirjeldus:

Värvitud hööveldamata lauast, uste ja tabadega.

Kasutaja ikoon ID7695
Pakkuja profiil Väike nool paremale
3 515,1€ Ei sisalda Ei sisalda 22.05.2009 Vestlus (0)
Kasutaja ikoon ID1472
Pakkuja profiil Väike nool paremale
3 553,5€ Sisaldab KM Sisaldab KM 22.05.2009 Vestlus (0)

Pakkumise kirjeldus:

Garantii 5 aasta

Kasutaja ikoon ID16869
Pakkuja profiil Väike nool paremale
2 214,5€ Ei sisalda Ei sisalda 22.05.2009 Vestlus (0)
Kasutaja ikoon ID7833
Pakkuja profiil Väike nool paremale
5 405,0€ Ei sisalda Ei sisalda 22.05.2009 Vestlus (0)
Kasutaja ikoon ID19636
Pakkuja profiil Väike nool paremale
2 109,1€ Ei sisalda Ei sisalda 22.05.2009 Vestlus (0)

Küsimused hanke korraldajale

Küsimus: private ID17259   12.05.2009 11:35
kuhu kadus joonis?

Teavita reeglite rikkumisest

Korraldaja vastus:
Hanke korraldaja ei ole küsimusele veel vastanud

Küsimus: private ID17259   12.05.2009 11:37
Vabandust joonis ilmus välja.

Teavita reeglite rikkumisest

Korraldaja vastus:
Hanke korraldaja ei ole küsimusele veel vastanud

Küsimus: private ID17036   12.05.2009 19:10
Kahjuks ei ole jooniseid, mille pealt saaksin pakkumist teha

Teavita reeglite rikkumisest

Korraldaja vastus: 20.05.2026 02:02

Joonis on hankele lisatud

Teavita reeglite rikkumisest

Küsimus: private ID17665   12.05.2009 19:58
tere kas hooveldamata puit voib olla

Teavita reeglite rikkumisest

Korraldaja vastus: 20.05.2026 02:02

Võib küll

Teavita reeglite rikkumisest

Küsimus: private ID7695   21.05.2009 19:32
kas uksed ja ukselukud ka hinna sisse?

Teavita reeglite rikkumisest

Korraldaja vastus: 20.05.2026 02:02

on küll

Teavita reeglite rikkumisest

Lisa küsimus

Lisa küsimus

Minu pakkumine

Reeglid

Pakkumise kirjelduse väli on mõeldud pakkumise detailsemaks lahti kirjutamiseks. Pikema teksti mugavaks sisestamiseks klikkige kasti paremal ülaservas oleval ikoonil.
Pakkumist tehes on keelatud postitada enda kontaktandmeid (nimi, telefon, aadress jne). Me jälgime ja analüüsime pakkumisi, et vältida pettuseid ja reeglite rikkumisi.
Rikkumise puhul kasutajakonto blokeeritakse.

 

Vanemad teated:

Vaata kõiki

Sellel veebilehel kasutatakse küpsiseid. Kasutamist jätkates nõustute küpsiste kasutamisega.

Sulge
 
Minu pakkumine

Reeglid

Pakkumise kirjelduse väli on mõeldud pakkumise detailsemaks lahti kirjutamiseks. Pikema teksti mugavaks sisestamiseks klikkige kasti paremal ülaservas oleval ikoonil.
Pakkumist tehes on keelatud postitada enda kontaktandmeid (nimi, telefon, aadress jne). Me jälgime ja analüüsime pakkumisi, et vältida pettuseid ja reeglite rikkumisi.
Rikkumise puhul kasutajakonto blokeeritakse.