+ Lisa oma töö      

Otsid ehitajat "Vundamenditööd" valdkonnast?

Parima pakkumise ja teostaja leidmiseks lisa oma töö.

Vundamendi ehitus Tartust 10 km

ID 1667

4398 vaatamist

Prindi

  • check Pakkumiste tegemine
    kuni 14.07.2006
  • check Võitja valik kuni
    21.07.2006
  • 3 Töö teostamine
    ja hinnang
Hanke lõpp: R, 14. juuli, 2006
Maakond: Tartumaa
Tööde algus: E, 17. juuli, 2006 (Soovituslik)
Tööde lõpp: P, 10. mai, 2026 (Soovituslik)
Ehitusmaterjalid: Töö tegija poolt

Töö sisu

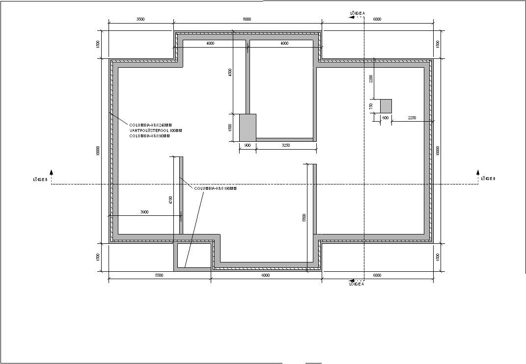
Hoone vundament rajatakse väikeplokkidest. Vundamendi laius on 430 mm. Vundamendi välimisele perimeetrile paigaldatakse 90 mm Columbia-kivi väikeplokk, siis 100mm vahtpolüsterooli ning 240mm Columbia-kivi väikeplokk. Plokkide alla valatakse monoliit- raudbetoonist vöö 750x200mm Kaevikust eemaldatud mineraalne pinnas kasutatakse hoone aluse täiteks. Vundamendi peale hüdroisolatsiooniks paigaldatakse bituumenrullmaterjali kuummenetlusel.

Pildid, video ja failid

Hanke korraldaja: eraisik ID1706

Pakkumised

Pakkumisi kokku: 1

Ettevõte Summa Käibemaks Lisatud Vestlus
Kasutaja ikoon ID2352
Pakkuja profiil Väike nool paremale
19 301,3€ Sisaldab KM Sisaldab KM 14.07.2006 Vestlus (0)

Küsimused hanke korraldajale

Hanke korraldajale ei ole veel küsimusi esitatud.

Lisa küsimus

Lisa küsimus

Minu pakkumine

Reeglid

Pakkumise kirjelduse väli on mõeldud pakkumise detailsemaks lahti kirjutamiseks. Pikema teksti mugavaks sisestamiseks klikkige kasti paremal ülaservas oleval ikoonil.
Pakkumist tehes on keelatud postitada enda kontaktandmeid (nimi, telefon, aadress jne). Me jälgime ja analüüsime pakkumisi, et vältida pettuseid ja reeglite rikkumisi.
Rikkumise puhul kasutajakonto blokeeritakse.

 

Vanemad teated:

Vaata kõiki

Sellel veebilehel kasutatakse küpsiseid. Kasutamist jätkates nõustute küpsiste kasutamisega.

Sulge
 
Minu pakkumine

Reeglid

Pakkumise kirjelduse väli on mõeldud pakkumise detailsemaks lahti kirjutamiseks. Pikema teksti mugavaks sisestamiseks klikkige kasti paremal ülaservas oleval ikoonil.
Pakkumist tehes on keelatud postitada enda kontaktandmeid (nimi, telefon, aadress jne). Me jälgime ja analüüsime pakkumisi, et vältida pettuseid ja reeglite rikkumisi.
Rikkumise puhul kasutajakonto blokeeritakse.