+ Lisa oma töö      

Otsid ehitajat "Müüritööd" valdkonnast?

Parima pakkumise ja teostaja leidmiseks lisa oma töö.

Hange on lõppenud!

Võitjaks osutus kasutaja ID 7379

Eramu Aeroc element siseseinad

ID 16800

5124 vaatamist

Prindi

  • check Pakkumiste tegemine
    kuni 06.06.2009
  • check Võitja valik kuni
    13.06.2009
  • 3 Töö teostamine
    ja hinnang
Hanke lõpp: L, 6. juuni, 2009
Maakond: Harjumaa
Tööde algus: E, 08. juuni, 2009 (Soovituslik)
Tööde lõpp: E, 15. juuni, 2009 (Soovituslik)
Ehitusmaterjalid: Töö tellija poolt

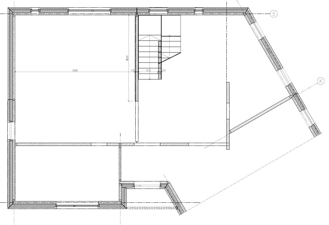
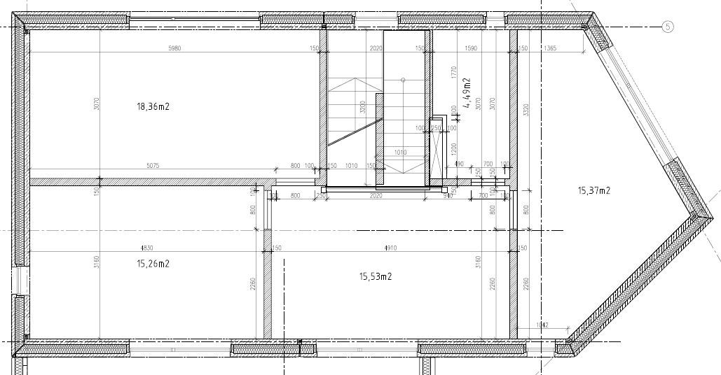
Töö sisu

150mm Aeroc Element plokkidest siseseinte ladumine. Teise korruse seinad on ülalt kaldu. Osaliselt vaja seinad laduda ka betoonist trepile. Vähesel määral ka 100mm seinu. Kokku ~83m2 (345 plokki).
Külgnemine ja ankurdamine betoonseintega.

Pildid, video ja failid

Hanke korraldaja: eraisik ID20921

Pakkumised

Pakkumisi kokku: 12

Ettevõte Summa Käibemaks Lisatud Vestlus
Kasutaja ikoon ID3623
Pakkuja profiil Väike nool paremale
383,5€ Ei sisalda Ei sisalda 03.06.2009 Vestlus (2)
Kasutaja ikoon ID923
Pakkuja profiil Väike nool paremale
1,1€ Ei sisalda Ei sisalda 03.06.2009 Vestlus (1)
Kasutaja ikoon ID20907
Pakkuja profiil Väike nool paremale
134,2€ Ei sisalda Ei sisalda 03.06.2009 Vestlus (0)
Kasutaja ikoon ID19935
Pakkuja profiil Väike nool paremale
383,5€ Ei sisalda Ei sisalda 03.06.2009 Vestlus (1)
Kasutaja ikoon ID8633
Pakkuja profiil Väike nool paremale
396,9€ Ei sisalda Ei sisalda 03.06.2009 Vestlus (2)
Kasutaja ikoon ID7379
Pakkuja profiil Väike nool paremale
383,5€ Ei sisalda Ei sisalda 04.06.2009 Vestlus (0)
Kasutaja ikoon ID12190
Pakkuja profiil Väike nool paremale
541,1€ Ei sisalda Ei sisalda 04.06.2009 Vestlus (0)

Pakkumise kirjeldus:

Kogu tööle. Plokkide arv 83 m2 juures on veidi ebatäpne.

Kasutaja ikoon ID19632
Pakkuja profiil Väike nool paremale
287,6€ Ei sisalda Ei sisalda 05.06.2009 Vestlus (0)

Pakkumise kirjeldus:

kmpl hind

Kasutaja ikoon ID17036
Pakkuja profiil Väike nool paremale
1,0€ Ei sisalda Ei sisalda 05.06.2009 Vestlus (0)

Pakkumise kirjeldus:

Tere. Ploki ladumise hind

Kasutaja ikoon ID8772
Pakkuja profiil Väike nool paremale
619,9€ Ei sisalda Ei sisalda 05.06.2009 Vestlus (0)

Pakkumise kirjeldus:

Töö kiire ja korralik!

Kasutaja ikoon ID1472
Pakkuja profiil Väike nool paremale
268,4€ Sisaldab KM Sisaldab KM 06.06.2009 Vestlus (0)

Pakkumise kirjeldus:

Garantii 5 aasta

Kasutaja ikoon ID17809
Pakkuja profiil Väike nool paremale
575,2€ Ei sisalda Ei sisalda 06.06.2009 Vestlus (0)

Küsimused hanke korraldajale

Küsimus: private ID20907   03.06.2009 15:46
Kus asub objekt?

Teavita reeglite rikkumisest

Korraldaja vastus: 18.05.2026 19:53

Harku vald, Tiskre küla; Tabasalu ja Harkujärve vahel

Teavita reeglite rikkumisest

Lisa küsimus

Lisa küsimus

Minu pakkumine

Reeglid

Pakkumise kirjelduse väli on mõeldud pakkumise detailsemaks lahti kirjutamiseks. Pikema teksti mugavaks sisestamiseks klikkige kasti paremal ülaservas oleval ikoonil.
Pakkumist tehes on keelatud postitada enda kontaktandmeid (nimi, telefon, aadress jne). Me jälgime ja analüüsime pakkumisi, et vältida pettuseid ja reeglite rikkumisi.
Rikkumise puhul kasutajakonto blokeeritakse.

 

Teisi töid samas valdkonnas

Valdkonnas "Müüritööd" on 2 aktiivset tööd

Telliskivi seina taastamine, ehitus

Asukoht: Harjumaa, Kiisa
Aega jäänud: 2p 4h
Tehtud pakkumisi: 1

no-img Pilt puudub

Kivimaster

Asukoht: Harjumaa, Tallinn
Aega jäänud: 1p 4h
Tehtud pakkumisi: 0

Vanemad teated:

Vaata kõiki

Sellel veebilehel kasutatakse küpsiseid. Kasutamist jätkates nõustute küpsiste kasutamisega.

Sulge
 
Minu pakkumine

Reeglid

Pakkumise kirjelduse väli on mõeldud pakkumise detailsemaks lahti kirjutamiseks. Pikema teksti mugavaks sisestamiseks klikkige kasti paremal ülaservas oleval ikoonil.
Pakkumist tehes on keelatud postitada enda kontaktandmeid (nimi, telefon, aadress jne). Me jälgime ja analüüsime pakkumisi, et vältida pettuseid ja reeglite rikkumisi.
Rikkumise puhul kasutajakonto blokeeritakse.