+ Lisa oma töö      

Otsid ehitajat "Üldehitus" valdkonnast?

Parima pakkumise ja teostaja leidmiseks lisa oma töö.

Hange on lõppenud!

Võitjaks osutus kasutaja ID 17036

Hoone rekonstrueerimine

ID 16829

4808 vaatamist

Prindi

  • check Pakkumiste tegemine
    kuni 05.07.2009
  • check Võitja valik kuni
    12.07.2009
  • 3 Töö teostamine
    ja hinnang
Hanke lõpp: P, 5. juuli, 2009
Maakond: Harjumaa
Muu asula: Tabasalu
Tööde algus: K, 01. juuli, 2009 (Soovituslik)
Tööde lõpp: K, 15. juuli, 2009 (Soovituslik)
Ehitusmaterjalid: Töö tegija poolt

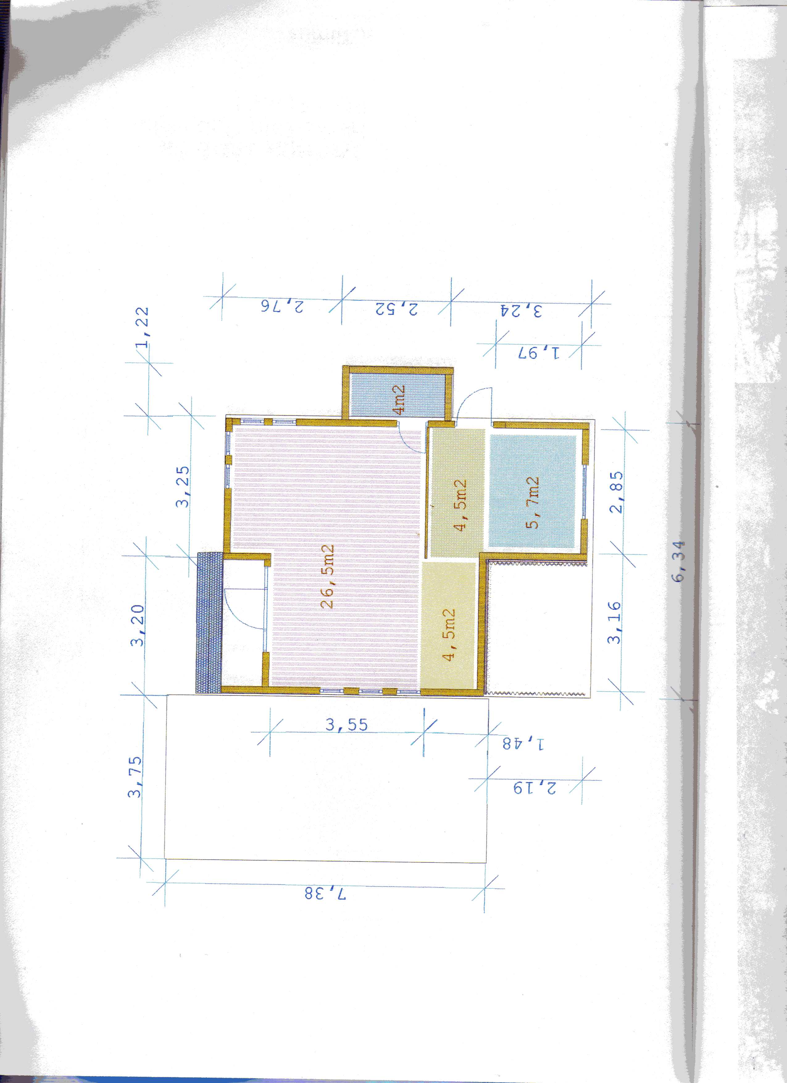
Töö sisu

välitööd
*ol.oleva fassaadi parandustööd
*plekist katusealuse ümberehitus soojustatud laoruumiks, uksega siseruumi (olemas betoonpõrnad)
*ühel küljel ühe akna kinni ladumine ja uue suurema akna + väikse luugiga akna paigaldamine
*samale küljele kergkatusealuse rajamine (ca 2x2m)
*uued avatäited

sisetööd
*osaline uus kaabeldus koos pistikutega
*viimistlustööd
*ukse rajamine ehitatavasse laoruumi
*wc remont koos ukse paigaldamisega


Pildid, video ja failid

Hanke korraldaja: ettevõte ID20694

Pakkumised

Pakkumisi kokku: 2

Ettevõte Summa Käibemaks Lisatud Vestlus
Kasutaja ikoon ID2175
Pakkuja profiil Väike nool paremale
1 917,4€ Ei sisalda Ei sisalda 01.07.2009 Vestlus (0)

Pakkumise kirjeldus:

Pakkumine umbkaudne,kuna informatsiooni on vähe

Kasutaja ikoon ID17036
Pakkuja profiil Väike nool paremale
1 597,8€ Ei sisalda Ei sisalda 03.07.2009 Vestlus (0)

Pakkumise kirjeldus:

Tere.Pakkumine esialgne kuna täpse saab teha tutvudes ruumidega lähemalt,abiks nõu ja jõuga,parimatega

Küsimused hanke korraldajale

Hanke korraldajale ei ole veel küsimusi esitatud.

Lisa küsimus

Lisa küsimus

Minu pakkumine

Reeglid

Pakkumise kirjelduse väli on mõeldud pakkumise detailsemaks lahti kirjutamiseks. Pikema teksti mugavaks sisestamiseks klikkige kasti paremal ülaservas oleval ikoonil.
Pakkumist tehes on keelatud postitada enda kontaktandmeid (nimi, telefon, aadress jne). Me jälgime ja analüüsime pakkumisi, et vältida pettuseid ja reeglite rikkumisi.
Rikkumise puhul kasutajakonto blokeeritakse.

 

Teisi töid samas valdkonnas

Valdkonnas "Üldehitus" on 30 aktiivset tööd

Kuuri lammutus

Asukoht: Pärnumaa
Aega jäänud: 2p 21h
Tehtud pakkumisi: 6

Põrandakütte torustiku ja kollektori paigaldus.

Asukoht: Harjumaa, Kurkse
Aega jäänud: 15p 21h
Tehtud pakkumisi: 4

Vanemad teated:

Vaata kõiki

Sellel veebilehel kasutatakse küpsiseid. Kasutamist jätkates nõustute küpsiste kasutamisega.

Sulge
 
Minu pakkumine

Reeglid

Pakkumise kirjelduse väli on mõeldud pakkumise detailsemaks lahti kirjutamiseks. Pikema teksti mugavaks sisestamiseks klikkige kasti paremal ülaservas oleval ikoonil.
Pakkumist tehes on keelatud postitada enda kontaktandmeid (nimi, telefon, aadress jne). Me jälgime ja analüüsime pakkumisi, et vältida pettuseid ja reeglite rikkumisi.
Rikkumise puhul kasutajakonto blokeeritakse.