+ Lisa oma töö      

Otsid ehitajat "Betoonitööd" valdkonnast?

Parima pakkumise ja teostaja leidmiseks lisa oma töö.

Vahelagi

ID 17668

5335 vaatamist

Prindi

  • check Pakkumiste tegemine
    kuni 07.09.2009
  • check Võitja valik kuni
    14.09.2009
  • 3 Töö teostamine
    ja hinnang
Hanke lõpp: E, 7. september, 2009
Maakond: Harjumaa
Muu asula: Harku vald
Tööde algus: T, 15. september, 2009 (Soovituslik)
Tööde lõpp: N, 15. oktoober, 2009 (Soovituslik)
Ehitusmaterjalid: Töö tegija poolt

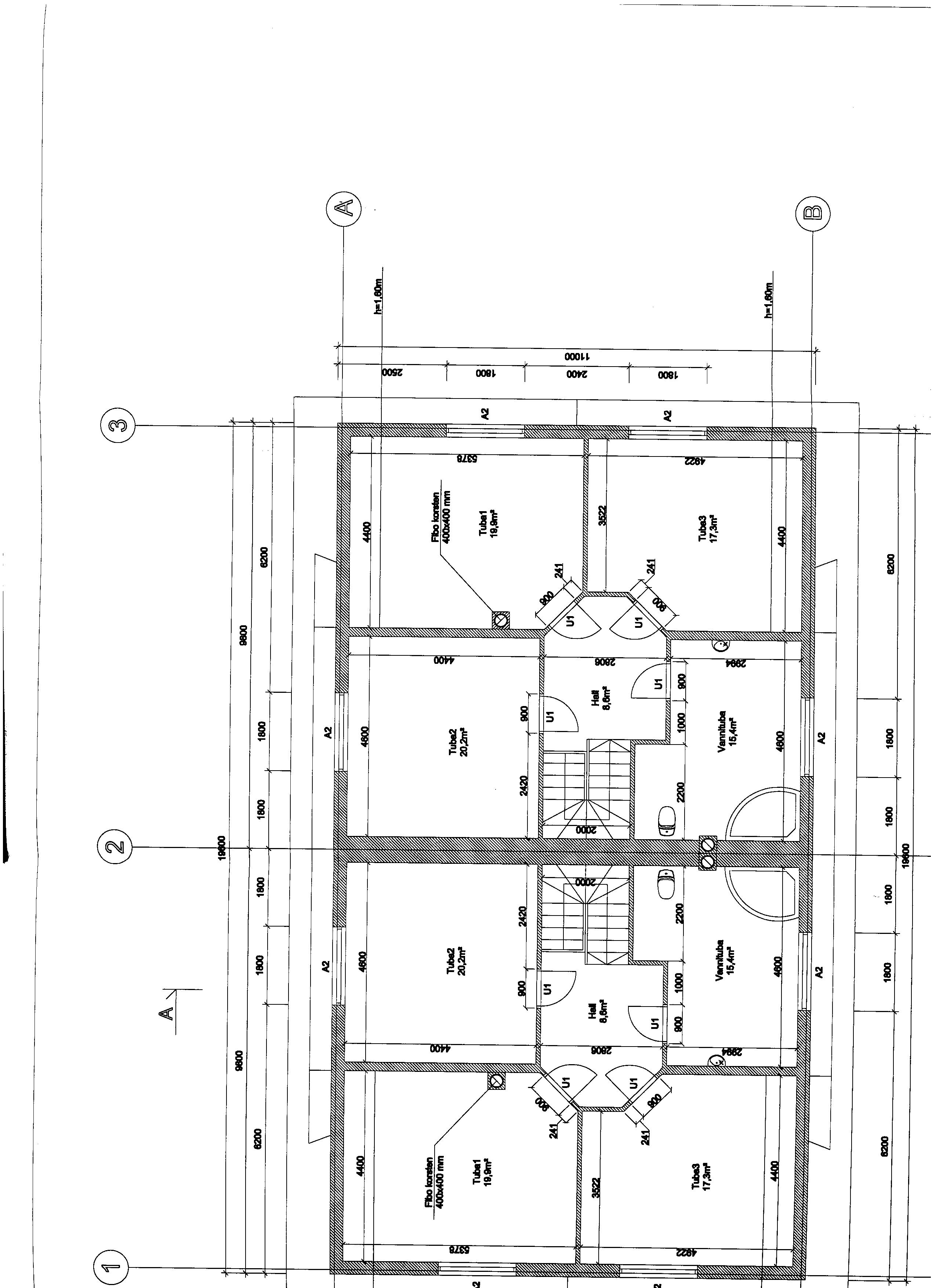
Töö sisu

Soovin saada hinnapakkumist kaheksale sillusele, 10sm/h - ca 100 j.m. vöö ja betoon monoliit vahelae( h-200) tegemiseks.

Pildid, video ja failid

Hanke korraldaja: ettevõte ID6724

Pakkumised

Pakkumisi kokku: 4

Ettevõte Summa Käibemaks Lisatud Vestlus
Kasutaja ikoon ID4232
Pakkuja profiil Väike nool paremale
9 267,2€ Ei sisalda Ei sisalda 03.09.2009 Vestlus (0)
Kasutaja ikoon ID8633
Pakkuja profiil Väike nool paremale
8 915,7€ Ei sisalda Ei sisalda 06.09.2009 Vestlus (0)
Kasutaja ikoon ID21245
Pakkuja profiil Väike nool paremale
7 030,3€ Sisaldab KM Sisaldab KM 07.09.2009 Vestlus (0)
Kasutaja ikoon ID17036
Pakkuja profiil Väike nool paremale
8 180,7€ Ei sisalda Ei sisalda 07.09.2009 Vestlus (0)

Pakkumise kirjeldus:

Tere,pakkumises sillused,vahelae ehitus ja betoonivalu 220mm,töödele garantii,abiks nõu ja jõuga,parimatega

Küsimused hanke korraldajale

Küsimus: private ID8633   01.09.2009 07:22
tere,kus on lõige mis armaatur laheb?

Teavita reeglite rikkumisest

Korraldaja vastus: 10.05.2026 05:44

Tere, projekti ei ole.

Teavita reeglite rikkumisest

Lisa küsimus

Lisa küsimus

Minu pakkumine

Reeglid

Pakkumise kirjelduse väli on mõeldud pakkumise detailsemaks lahti kirjutamiseks. Pikema teksti mugavaks sisestamiseks klikkige kasti paremal ülaservas oleval ikoonil.
Pakkumist tehes on keelatud postitada enda kontaktandmeid (nimi, telefon, aadress jne). Me jälgime ja analüüsime pakkumisi, et vältida pettuseid ja reeglite rikkumisi.
Rikkumise puhul kasutajakonto blokeeritakse.

 

Teisi töid samas valdkonnas

Valdkonnas "Betoonitööd" on 5 aktiivset tööd

Betoonist platsi valamine väljas.

Asukoht: Harjumaa, Luige
Aega jäänud: 18h 15 min
Tehtud pakkumisi: 4

Betoonpõranda valu

Asukoht: Harjumaa, Jõelähtme
Aega jäänud: 2p 18h
Tehtud pakkumisi: 3

Vanemad teated:

Vaata kõiki

Sellel veebilehel kasutatakse küpsiseid. Kasutamist jätkates nõustute küpsiste kasutamisega.

Sulge
 
Minu pakkumine

Reeglid

Pakkumise kirjelduse väli on mõeldud pakkumise detailsemaks lahti kirjutamiseks. Pikema teksti mugavaks sisestamiseks klikkige kasti paremal ülaservas oleval ikoonil.
Pakkumist tehes on keelatud postitada enda kontaktandmeid (nimi, telefon, aadress jne). Me jälgime ja analüüsime pakkumisi, et vältida pettuseid ja reeglite rikkumisi.
Rikkumise puhul kasutajakonto blokeeritakse.