+ Lisa oma töö      

Otsid ehitajat "Projekteerimine" valdkonnast?

Parima pakkumise ja teostaja leidmiseks lisa oma töö.

Elektriprojekti koostamine

ID 18119

18774 vaatamist

Prindi

  • check Pakkumiste tegemine
    kuni 26.10.2009
  • check Võitja valik kuni
    02.11.2009
  • 3 Töö teostamine
    ja hinnang
Hanke lõpp: E, 26. oktoober, 2009
Maakond: Tartumaa
Muu asula: Haaslava vald
Tööde algus: E, 26. oktoober, 2009 (Soovituslik)
Tööde lõpp: R, 20. november, 2009 (Soovituslik)
Ehitusmaterjalid: Töö tegija poolt

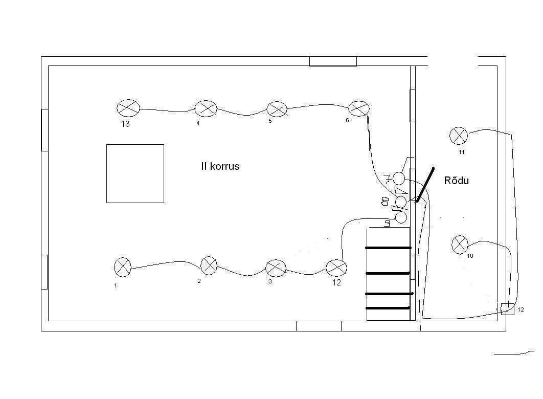
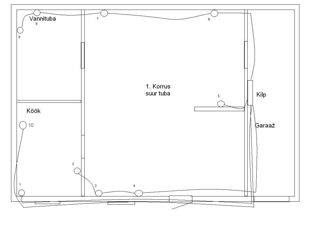
Töö sisu

Elamu ja sauna elektriprojekti koostamine, mõõtmised ja dokumentide võrmistamine kasutusloa saamiseks

Pildid, video ja failid

Hanke korraldaja: ettevõte ID8517

Pakkumised

Pakkumisi kokku: 3

Ettevõte Summa Käibemaks Lisatud Vestlus
Kasutaja ikoon ID9367
Pakkuja profiil Väike nool paremale
511,3€ Sisaldab KM Sisaldab KM 13.10.2009 Vestlus (0)

Pakkumise kirjeldus:

Elektritööde projekt, mõõtmised, nõuetekohasuse tunnistus

Kasutaja ikoon ID21219
Pakkuja profiil Väike nool paremale
460,2€ Sisaldab KM Sisaldab KM 13.10.2009 Vestlus (0)

Pakkumise kirjeldus:

Elektripaigaldise projekteerimiseks on vajalikud digitaalsed arhitektuursed plaanid, kui pole arhitektuurne projekt tehtud küsige ta meie käest

Kasutaja ikoon ID9783
Pakkuja profiil Väike nool paremale
466,6€ Ei sisalda Ei sisalda 15.10.2009 Vestlus (0)

Pakkumise kirjeldus:

Pakkumine on tehtud arvestusega, et on olemad digitaalne põhi. Pakkumine sisaldab projekti ja kontrollmõõtmisi objektil

Küsimused hanke korraldajale

Küsimus: private ID5558   13.10.2009 09:21
Tere, kas hoonetest on olemas ka digitaalsed joonised? Kas olemas olev elektripaigaldis on ehitaja poolt ka dokumenteeritud või tuleks pakkujal töö enda nimele deklareerida?

Teavita reeglite rikkumisest

Korraldaja vastus: 10.05.2026 18:38

Tere! Digitaalsed joonised hoonetest ja krundist on loomulikult olemas. Pakkujal tuleb töö oma nimel deklareerida.

Teavita reeglite rikkumisest

Lisa küsimus

Lisa küsimus

Minu pakkumine

Reeglid

Pakkumise kirjelduse väli on mõeldud pakkumise detailsemaks lahti kirjutamiseks. Pikema teksti mugavaks sisestamiseks klikkige kasti paremal ülaservas oleval ikoonil.
Pakkumist tehes on keelatud postitada enda kontaktandmeid (nimi, telefon, aadress jne). Me jälgime ja analüüsime pakkumisi, et vältida pettuseid ja reeglite rikkumisi.
Rikkumise puhul kasutajakonto blokeeritakse.

 

Teisi töid samas valdkonnas

Valdkonnas "Projekteerimine" on 7 aktiivset tööd

no-img Pilt puudub

1-kordse 120 m2 elumaja põhiprojekt

Asukoht: Harjumaa, Metsanurme
Aega jäänud: 8p 5h
Tehtud pakkumisi: 4

no-img Pilt puudub

Saunamaja eelprojekt ehitusteatiseks

Asukoht: Lääne-Virumaa
Aega jäänud: 1p 5h
Tehtud pakkumisi: 3

Vanemad teated:

Vaata kõiki

Sellel veebilehel kasutatakse küpsiseid. Kasutamist jätkates nõustute küpsiste kasutamisega.

Sulge
 
Minu pakkumine

Reeglid

Pakkumise kirjelduse väli on mõeldud pakkumise detailsemaks lahti kirjutamiseks. Pikema teksti mugavaks sisestamiseks klikkige kasti paremal ülaservas oleval ikoonil.
Pakkumist tehes on keelatud postitada enda kontaktandmeid (nimi, telefon, aadress jne). Me jälgime ja analüüsime pakkumisi, et vältida pettuseid ja reeglite rikkumisi.
Rikkumise puhul kasutajakonto blokeeritakse.