+ Lisa oma töö      

Otsid ehitajat "Korterite remont" valdkonnast?

Parima pakkumise ja teostaja leidmiseks lisa oma töö.

Hange on lõppenud!

Võitjaks osutus kasutaja ID 17248

Korraldaja hinnang tehtud tööle

1.0
17.08.2016
Töökiirus: 12345
Kvaliteet: 12345
Hind: 12345

Hullemat on raske leida - Roman V.

Korteri remont

ID 18189

8004 vaatamist

Prindi

  • check Pakkumiste tegemine
    kuni 30.10.2009
  • check Võitja valik kuni
    06.11.2009
  • 3 Töö teostamine
    ja hinnang
Hanke lõpp: R, 30. oktoober, 2009
Maakond: Harjumaa
Linn: Tallinn
Tööde algus: P, 01. november, 2009 (Soovituslik)
Tööde lõpp: E, 30. november, 2009 (Soovituslik)
Ehitusmaterjalid: Töö tellija poolt

Töö sisu

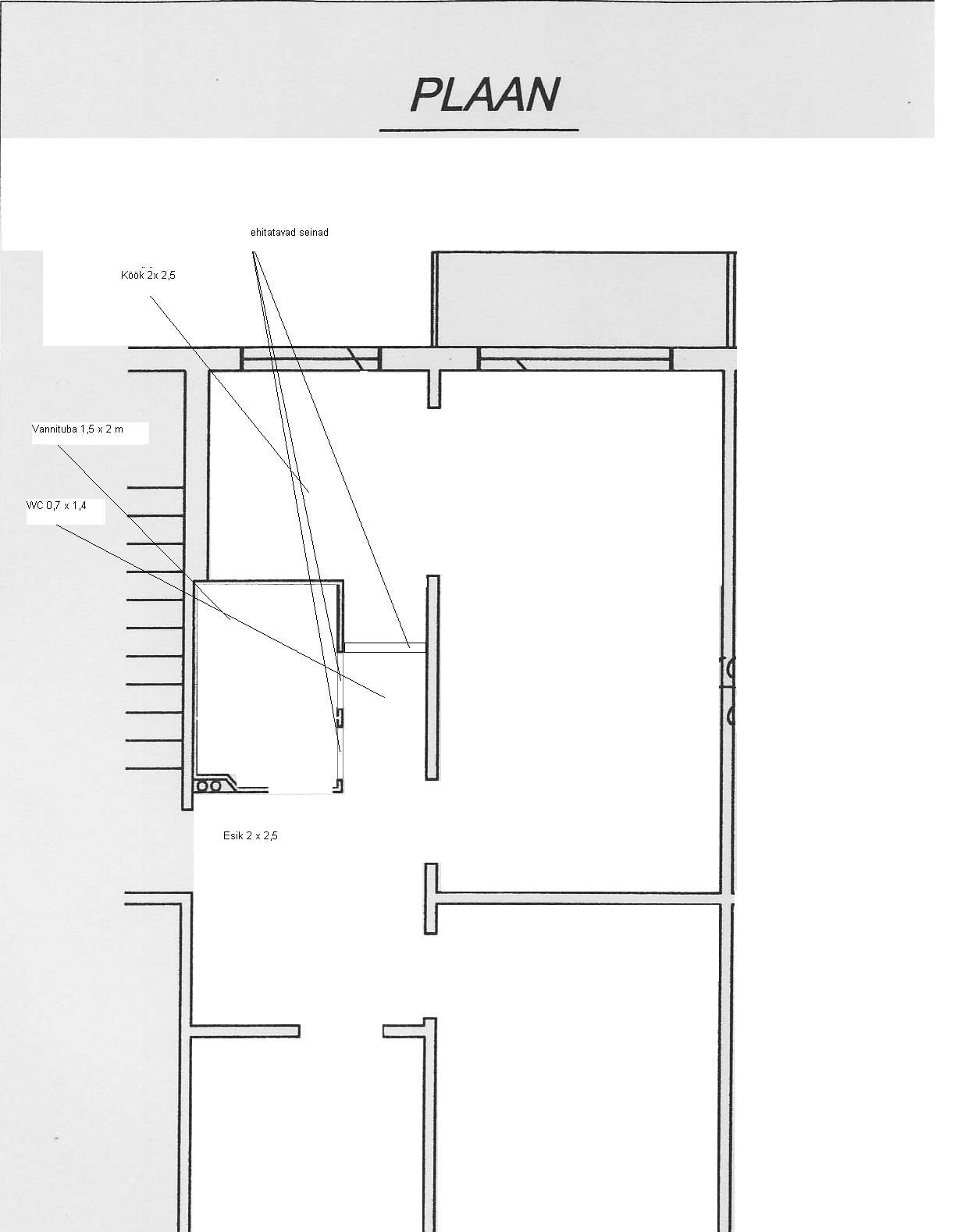
Tallinnas, Mustamäel asuv 3 toaline korter. Remonti vajavad köök, elutuba, vannituba, wc ja esik . Korteris sees ei elata.
Vajalikud tööd:

1. Köök.
Seinte ja lae pahteldamine ja värvimine.
Köögi ja WC vahelise seina ehitus + viimistlus

2. Vannituba.
osade seinte katmine küprokiga ning teiste seinte pahteldamine ning plaatimine. Põranda plaatimine.
Küprok ripplae ehitamine . WC ventilatsioonitoru ja vannitoa ventilatsiooni + valgustite paigaldamine
Vannitoa ja WC vaheliste seinte ehitamine

3. WC.
Põranda ja seinte pahteldamine ja plaatimine

4. Esik.
Seinte ja lae pahteldamine ja värvimine.

5. Elutuba
Seinte ja lae pahteldamine ja värvimine

Samuti on vaja paigaldada 5 siseust.

Mõõdud on lisatud plaanil. Kortri lae kõrgus on 2,55

Pakkumises palun mitte arvestada materjalide maksumust.

Pildid, video ja failid

Hanke korraldaja: eraisik ID21817

Pakkumised

Pakkumisi kokku: 33

Ettevõte Summa Käibemaks Lisatud Vestlus
Kasutaja ikoon ID8413
Pakkuja profiil Väike nool paremale
958,7€ Ei sisalda Ei sisalda 23.10.2009 Vestlus (0)
Kasutaja ikoon ID17248
Pakkuja profiil Väike nool paremale
728,6€ Ei sisalda Ei sisalda 23.10.2009 Vestlus (0)

Pakkumise kirjeldus:

oleme teile abiks igati nii nõu kui jõuga

Kasutaja ikoon ID21349
Pakkuja profiil Väike nool paremale
990,6€ Ei sisalda Ei sisalda 23.10.2009 Vestlus (0)
Kasutaja ikoon ID2714
Pakkuja profiil Väike nool paremale
4 825,3€ Sisaldab KM Sisaldab KM 23.10.2009 Vestlus (0)
Kasutaja ikoon ID22226
Pakkuja profiil Väike nool paremale
1 725,6€ Sisaldab KM Sisaldab KM 23.10.2009 Vestlus (0)

Pakkumise kirjeldus:

Usun ,et töö oleks tehtud umbes kuuga.Kui materjali transpordiga on probleeme siis saan ka seal abiks olla.Tervitades Almar Roos

Kasutaja ikoon ID3287
Pakkuja profiil Väike nool paremale
894,8€ Sisaldab KM Sisaldab KM 24.10.2009 Vestlus (0)

Pakkumise kirjeldus:

Pakutud tööraha küsitud töödele. Suur kogemus korterite renoveerimisel!

Kasutaja ikoon ID1280
Pakkuja profiil Väike nool paremale
2 556,5€ Ei sisalda Ei sisalda 24.10.2009 Vestlus (0)

Pakkumise kirjeldus:

Ainult tööraha koos riigimaksudega, kõik materjalid eraldi tasu eest - kaetud tööde materjalid töövõtjalt, ülejäänu tellijalt. Tööde võimalik algus alates 07.12, kestus 18 tööpäeva

Kasutaja ikoon ID21102
Pakkuja profiil Väike nool paremale
1 757,6€ Ei sisalda Ei sisalda 24.10.2009 Vestlus (0)
Kasutaja ikoon ID11067
Pakkuja profiil Väike nool paremale
3 643,0€ Ei sisalda Ei sisalda 24.10.2009 Vestlus (0)

Pakkumise kirjeldus:

töö kiire ja korralik,tehtud tööle garantii

Kasutaja ikoon ID19256
Pakkuja profiil Väike nool paremale
1 815,1€ Sisaldab KM Sisaldab KM 24.10.2009 Vestlus (0)
Kasutaja ikoon ID8043
Pakkuja profiil Väike nool paremale
1 578,6€ Ei sisalda Ei sisalda 25.10.2009 Vestlus (0)

Pakkumise kirjeldus:

töö kiiire ja korrralik

Kasutaja ikoon ID9713
Pakkuja profiil Väike nool paremale
1 693,7€ Sisaldab KM Sisaldab KM 25.10.2009 Vestlus (0)

Pakkumise kirjeldus:

Töö kiire ja kvaliteetne.Töödel 24 kuune garantii aeg

Kasutaja ikoon ID22210
Pakkuja profiil Väike nool paremale
1 470,0€ Ei sisalda Ei sisalda 25.10.2009 Vestlus (0)

Pakkumise kirjeldus:

Edasisele meeldivale koostööle lootes

Kasutaja ikoon ID22182
Pakkuja profiil Väike nool paremale
2 505,3€ Ei sisalda Ei sisalda 25.10.2009 Vestlus (0)

Pakkumise kirjeldus:

Korralik töö,garantii 2aastat,aitame muretseda materjale poe hindadest soodsamalt.

Kasutaja ikoon ID19174
Pakkuja profiil Väike nool paremale
2 236,9€ Ei sisalda Ei sisalda 25.10.2009 Vestlus (0)

Pakkumise kirjeldus:

TÖÖ

Kasutaja ikoon ID22204
Pakkuja profiil Väike nool paremale
1 434,8€ Ei sisalda Ei sisalda 25.10.2009 Vestlus (0)

Pakkumise kirjeldus:

kogemust on 4a. ja ette on nõidata palju töid!!

Kasutaja ikoon ID8690
Pakkuja profiil Väike nool paremale
1 853,4€ Ei sisalda Ei sisalda 25.10.2009 Vestlus (0)

Pakkumise kirjeldus:

töö puhas ja kvaliteetne,soovi korral saadan tehtud töödest pilte.

Kasutaja ikoon ID19190
Pakkuja profiil Väike nool paremale
1 853,4€ Ei sisalda Ei sisalda 26.10.2009 Vestlus (0)
Kasutaja ikoon ID22121
Pakkuja profiil Väike nool paremale
766,9€ Ei sisalda Ei sisalda 26.10.2009 Vestlus (0)

Pakkumise kirjeldus:

kindlasti oleks vaja näha objekti

Kasutaja ikoon ID9148
Pakkuja profiil Väike nool paremale
1 847,1€ Sisaldab KM Sisaldab KM 26.10.2009 Vestlus (0)
Kasutaja ikoon ID19743
Pakkuja profiil Väike nool paremale
1 981,3€ Ei sisalda Ei sisalda 26.10.2009 Vestlus (0)
Kasutaja ikoon ID21007
Pakkuja profiil Väike nool paremale
1 470,0€ Sisaldab KM Sisaldab KM 27.10.2009 Vestlus (0)
Kasutaja ikoon ID6552
Pakkuja profiil Väike nool paremale
2 275,3€ Ei sisalda Ei sisalda 27.10.2009 Vestlus (0)

Pakkumise kirjeldus:

Hind sisaldab ka vannitoa, wc elektri ja torutöid, kui vaja... Parimat!

Kasutaja ikoon ID19695
Pakkuja profiil Väike nool paremale
1 303,8€ Ei sisalda Ei sisalda 28.10.2009 Vestlus (0)

Pakkumise kirjeldus:

kõigi tööd hind

Kasutaja ikoon ID7695
Pakkuja profiil Väike nool paremale
1 214,3€ Ei sisalda Ei sisalda 28.10.2009 Vestlus (0)

Pakkumise kirjeldus:

Garantii töödele 2 aastat

Kasutaja ikoon ID5871
Pakkuja profiil Väike nool paremale
1 297,4€ Ei sisalda Ei sisalda 28.10.2009 Vestlus (0)
Kasutaja ikoon ID11295
Pakkuja profiil Väike nool paremale
1 917,4€ Ei sisalda Ei sisalda 28.10.2009 Vestlus (0)

Pakkumise kirjeldus:

muid makse ei lisandu.

Kasutaja ikoon ID7848
Pakkuja profiil Väike nool paremale
1 214,3€ Ei sisalda Ei sisalda 29.10.2009 Vestlus (0)

Pakkumise kirjeldus:

Tööraha koos varustamisega (vajadusel)

Kasutaja ikoon ID21954
Pakkuja profiil Väike nool paremale
1 105,7€ Sisaldab KM Sisaldab KM 29.10.2009 Vestlus (0)

Pakkumise kirjeldus:

Töö kiire ja kvaliteetne! Läbi meie ka materjalid soodsamalt.

Kasutaja ikoon ID8633
Pakkuja profiil Väike nool paremale
2 684,3€ Ei sisalda Ei sisalda 29.10.2009 Vestlus (0)
Kasutaja ikoon ID16869
Pakkuja profiil Väike nool paremale
1 246,3€ Ei sisalda Ei sisalda 30.10.2009 Vestlus (0)
Kasutaja ikoon ID18607
Pakkuja profiil Väike nool paremale
1 182,4€ Ei sisalda Ei sisalda 30.10.2009 Vestlus (0)
Kasutaja ikoon ID22228
Pakkuja profiil Väike nool paremale
1 597,8€ Ei sisalda Ei sisalda 30.10.2009 Vestlus (0)

Küsimused hanke korraldajale

Küsimus: private ID9482   23.10.2009 12:28
mis mõõtkavale joonis vastab

Teavita reeglite rikkumisest

Korraldaja vastus: 14.02.2026 22:35

Tõepoolest unustasin elutoa mõõdud. Kuna tegemist plaaniga siis mõõtkava ei oska öelda. Küll võin öelda,et mõõdu aluseks võib võtta köögi ja elutoa vahelise ava laiuse, mis on täpselt 1800

Teavita reeglite rikkumisest

Küsimus: private ID16883   23.10.2009 14:37
Kas kanalisatsioonitoru WC potile juba paigaldatud???

Teavita reeglite rikkumisest

Korraldaja vastus: 14.02.2026 22:35

torud on paigaldatud kuid tööde käigus vahetatakse ka kanalisatsioon. Veetorustik on kaasaegne ning seda ei vahetata. küll tuleb ka ehitada väike karp torude ümber

Teavita reeglite rikkumisest

Küsimus: private ID17248   23.10.2009 16:02
saaks ehk mingeid täpsemaid mõõte ruumide laius ja kõrgusi

Teavita reeglite rikkumisest

Korraldaja vastus: 14.02.2026 22:35

Köök: 2,2x2,5; Vannituba 2x1,5; WC 0,7x1,5; Esik 2,2 x 2,5; Esutuba 6x3. Lae kõrgus 2,55 . Plaani peal peaksid mõõdud näha olema

Teavita reeglite rikkumisest

Küsimus: private ID8111   23.10.2009 16:26
kas uued uksed on tellitud ava järgi või on standardmõõtudes-siis tuleks avasid ülalt lõigata!Kas lõiked teeb tellija?

Teavita reeglite rikkumisest

Korraldaja vastus: 14.02.2026 22:35

Uksed on tellimata , kuid tellin vastavalt avale.

Teavita reeglite rikkumisest

Küsimus: private ID22210   25.10.2009 12:33
Kas vannitoas, kuhu kips seina ei lähe on vaja mingit vanat plaati ka ära võtta ja kas vanad uksed on ees? Või on lammutusosa eelnevalt tehtud?

Teavita reeglite rikkumisest

Korraldaja vastus: 14.02.2026 22:35

Vana plaat on küll seinas kuid see tuleb väga kergelt ära ning selle osa teen vast ise.Vanad uksed on ees kuid need võtan samuti eest ära.

Teavita reeglite rikkumisest

Küsimus: private ID22210   25.10.2009 13:44
Kas vannitoa seina on vaja uus ukseava sisse lõigata? Põrandasse elektrikyte tuleb või ei? Kas uuel WC asukohal, põrandal on vaja kasutada ka uut plaadi aluskatte materjali nagu (põrandakips), vana alus peaks olema kas laud või puitlaastplaat?

Teavita reeglite rikkumisest

Korraldaja vastus: 14.02.2026 22:35

Uus ava vannituppa on juba sisse lõigatud. Põrandakütte osas on veel lahtine, konsulteerin sel teemal eelnevalt hanke võitjaga, kuid hetkel hinnapakkumisse seda ei ole vaja arvestada. Hetkel on WC aluspinnaks laudpõrand, seega ilmselt sinna tuleb aluskatte plaat lõigata.

Teavita reeglite rikkumisest

Küsimus: private ID10922   26.10.2009 10:51
Kas elektripaigaldist siis pole vaja renoveerida?

Teavita reeglite rikkumisest

Korraldaja vastus: 14.02.2026 22:35

Ei ole vaja. Vaja lisada mõned kaablid vannitoa ja WC valgustitele ja tuua üks kaabel vannituppa pesumasina toite jaoks. Elektritööd mõistan ise teha.

Teavita reeglite rikkumisest

Lisa küsimus

Lisa küsimus

Minu pakkumine

Reeglid

Pakkumise kirjelduse väli on mõeldud pakkumise detailsemaks lahti kirjutamiseks. Pikema teksti mugavaks sisestamiseks klikkige kasti paremal ülaservas oleval ikoonil.
Pakkumist tehes on keelatud postitada enda kontaktandmeid (nimi, telefon, aadress jne). Me jälgime ja analüüsime pakkumisi, et vältida pettuseid ja reeglite rikkumisi.
Rikkumise puhul kasutajakonto blokeeritakse.

 

Vanemad teated:

Vaata kõiki

Sellel veebilehel kasutatakse küpsiseid. Kasutamist jätkates nõustute küpsiste kasutamisega.

Sulge
 
Minu pakkumine

Reeglid

Pakkumise kirjelduse väli on mõeldud pakkumise detailsemaks lahti kirjutamiseks. Pikema teksti mugavaks sisestamiseks klikkige kasti paremal ülaservas oleval ikoonil.
Pakkumist tehes on keelatud postitada enda kontaktandmeid (nimi, telefon, aadress jne). Me jälgime ja analüüsime pakkumisi, et vältida pettuseid ja reeglite rikkumisi.
Rikkumise puhul kasutajakonto blokeeritakse.