+ Lisa oma töö      

Otsid ehitajat "Puusepatööd" valdkonnast?

Parima pakkumise ja teostaja leidmiseks lisa oma töö.

Hange on lõppenud!

Võitjaks osutus kasutaja ID 483

12 puidust postkasti

ID 18402

9109 vaatamist

Prindi

  • check Pakkumiste tegemine
    kuni 03.12.2009
  • check Võitja valik kuni
    10.12.2009
  • 3 Töö teostamine
    ja hinnang
Hanke lõpp: N, 3. detsember, 2009
Maakond: Harjumaa
Linn: Tallinn
Tööde algus: K, 02. detsember, 2009 (Soovituslik)
Tööde lõpp: T, 22. detsember, 2009 (Soovituslik)
Ehitusmaterjalid: Töö tegija poolt

Töö sisu

Soovime tellida korterelamu trepikotta 12 puidust postkasti. Lisan ühe pildi, mis võiks olla eeskujuks.

Pildid, video ja failid

Hanke korraldaja: eraisik ID16855

Pakkumised

Pakkumisi kokku: 8

Ettevõte Summa Käibemaks Lisatud Vestlus
Kasutaja ikoon ID5258
Pakkuja profiil Väike nool paremale
383,5€ Ei sisalda Ei sisalda 26.11.2009 Vestlus (0)
Kasutaja ikoon ID18642
Pakkuja profiil Väike nool paremale
351,5€ Ei sisalda Ei sisalda 27.11.2009 Vestlus (0)

Pakkumise kirjeldus:

huvikorral võtta ühendust siim.rikas@gmail.com

Kasutaja ikoon ID8690
Pakkuja profiil Väike nool paremale
294,0€ Ei sisalda Ei sisalda 27.11.2009 Vestlus (0)

Pakkumise kirjeldus:

töö korralik ja kvaliteetne,tehtule garantii

Kasutaja ikoon ID9761
Pakkuja profiil Väike nool paremale
242,9€ Sisaldab KM Sisaldab KM 28.11.2009 Vestlus (0)
Kasutaja ikoon ID21477
Pakkuja profiil Väike nool paremale
303,6€ Ei sisalda Ei sisalda 29.11.2009 Vestlus (0)

Pakkumise kirjeldus:

Ehitan eritellimusel puidust postkaste (Pildid) Puit:Mänd ja katan niiskuskaitsega. Kohaletoomine tasuta

Kasutaja ikoon ID22172
Pakkuja profiil Väike nool paremale
287,6€ Ei sisalda Ei sisalda 01.12.2009 Vestlus (0)

Pakkumise kirjeldus:

Käibemaksu ei siisalda kuna ei ole käibemaksu kohuslane

Kasutaja ikoon ID483
Pakkuja profiil Väike nool paremale
281,2€ Sisaldab KM Sisaldab KM 02.12.2009 Vestlus (0)

Pakkumise kirjeldus:

Hind sisaldab: lakitud mänd, lukud, transport, paigaldus ja garantii

Kasutaja ikoon ID3886
Pakkuja profiil Väike nool paremale
191,7€ Ei sisalda Ei sisalda 03.12.2009 Vestlus (0)

Küsimused hanke korraldajale

Küsimus: private ID17877   26.11.2009 21:18
Kortermajas ei tohi euronõuete järgi olla puit postkaste.

Teavita reeglite rikkumisest

Korraldaja vastus: 27.04.2026 23:03

Eks see meie vastutusel...

Teavita reeglite rikkumisest

Küsimus: private ID22172   27.11.2009 08:15
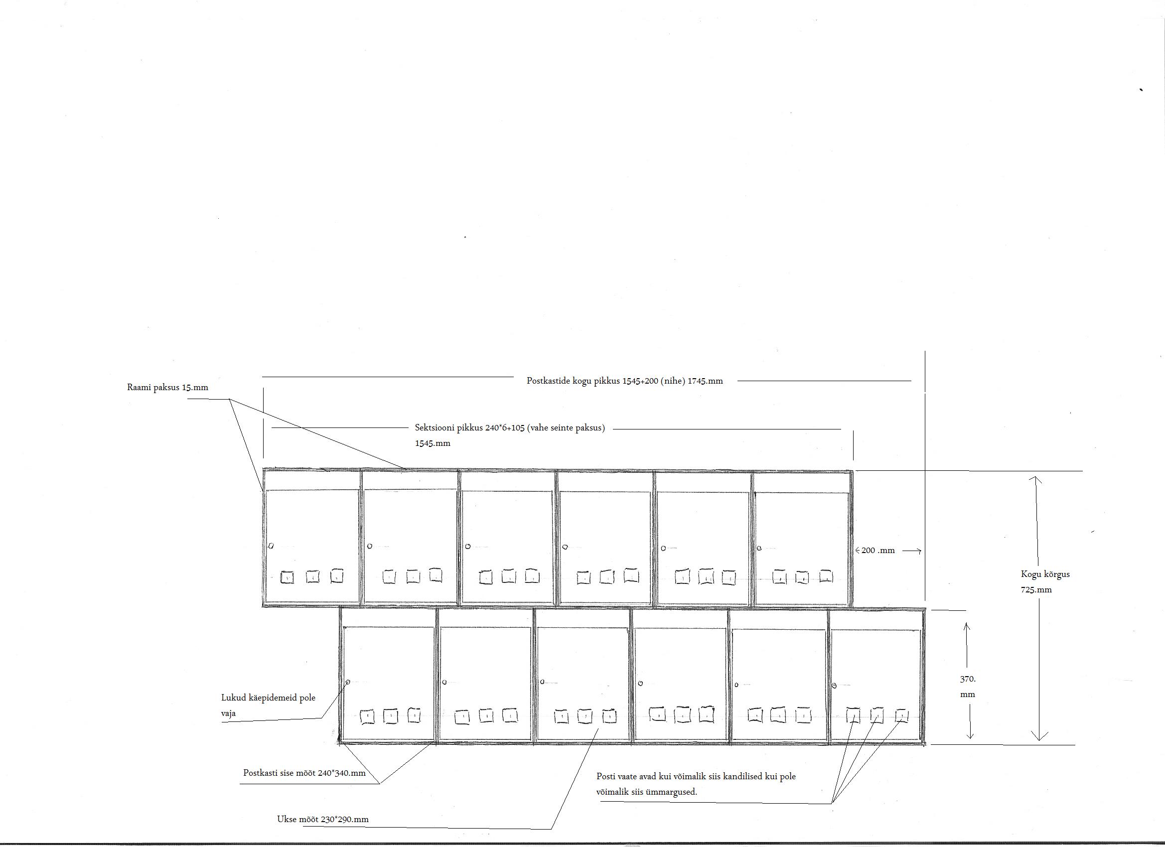
Tere! Kas mõõte saaks? Tänan.

Teavita reeglite rikkumisest

Korraldaja vastus: 27.04.2026 23:03

Tere! Lisatud pilt, kus peal mõõdud. See võiks olla aluseks, kuid oleme valmis tegema muudatusi, kui need on põhjendatud.

Teavita reeglite rikkumisest

Küsimus: private ID22172   28.11.2009 19:55
Tere! Aga mis on sügavus? Tänan.

Teavita reeglite rikkumisest

Korraldaja vastus: 27.04.2026 23:03

Võiks olla ca 80-90.

Teavita reeglite rikkumisest

Lisa küsimus

Lisa küsimus

Minu pakkumine

Reeglid

Pakkumise kirjelduse väli on mõeldud pakkumise detailsemaks lahti kirjutamiseks. Pikema teksti mugavaks sisestamiseks klikkige kasti paremal ülaservas oleval ikoonil.
Pakkumist tehes on keelatud postitada enda kontaktandmeid (nimi, telefon, aadress jne). Me jälgime ja analüüsime pakkumisi, et vältida pettuseid ja reeglite rikkumisi.
Rikkumise puhul kasutajakonto blokeeritakse.

 

Vanemad teated:

Vaata kõiki

Sellel veebilehel kasutatakse küpsiseid. Kasutamist jätkates nõustute küpsiste kasutamisega.

Sulge
 
Minu pakkumine

Reeglid

Pakkumise kirjelduse väli on mõeldud pakkumise detailsemaks lahti kirjutamiseks. Pikema teksti mugavaks sisestamiseks klikkige kasti paremal ülaservas oleval ikoonil.
Pakkumist tehes on keelatud postitada enda kontaktandmeid (nimi, telefon, aadress jne). Me jälgime ja analüüsime pakkumisi, et vältida pettuseid ja reeglite rikkumisi.
Rikkumise puhul kasutajakonto blokeeritakse.