+ Lisa oma töö      

Otsid ehitajat "Puitehitised" valdkonnast?

Parima pakkumise ja teostaja leidmiseks lisa oma töö.

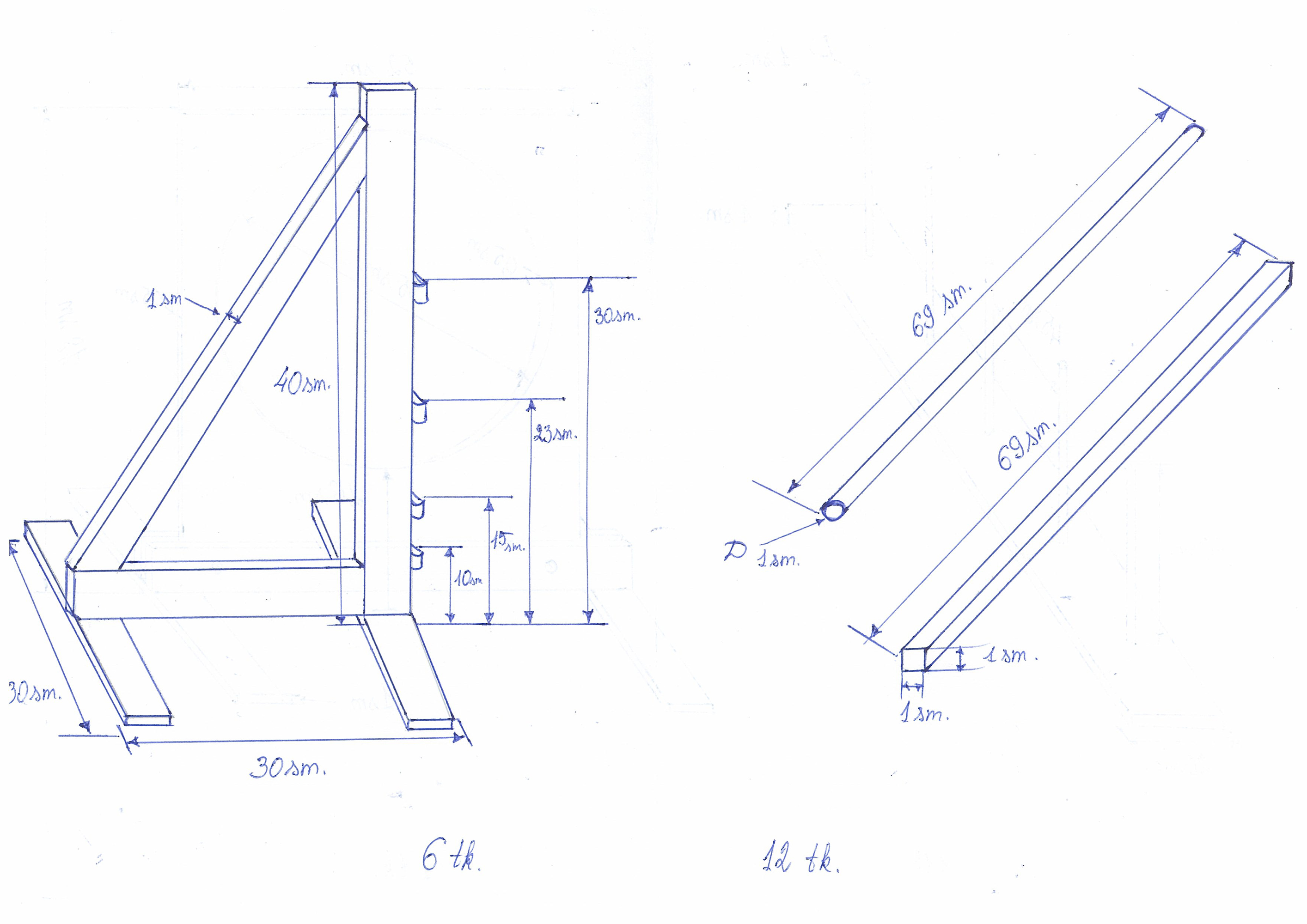
Takistused (kasside agility)

ID 18453

5695 vaatamist

Prindi

  • check Pakkumiste tegemine
    kuni 11.12.2009
  • check Võitja valik kuni
    18.12.2009
  • 3 Töö teostamine
    ja hinnang
Hanke lõpp: R, 11. detsember, 2009
Maakond: Harjumaa
Muu asula: Pirita
Tööde algus: T, 01. detsember, 2009 (Soovituslik)
Tööde lõpp: T, 12. jaanuar, 2010
Ehitusmaterjalid: Töö tegija poolt

Töö sisu

On vaja teha puu takistused - kasside agility jaoks.
1 slaalom, 1 ring, 6 barjääriposti ja 12 põikpuu (ümar või rist)
Kõik mõõtmed on pildil.

Pildid, video ja failid

Hanke korraldaja: eraisik ID11942

Pakkumised

Pakkumisi kokku: 1

Ettevõte Summa Käibemaks Lisatud Vestlus
Kasutaja ikoon ID4459
Pakkuja profiil Väike nool paremale
357,9€ Sisaldab KM Sisaldab KM 10.12.2009 Vestlus (0)

Küsimused hanke korraldajale

Küsimus: private ID4459   07.12.2009 06:33
Tere! Kas on oluline mis puidust, kas naturaalne või tuleb ka viimistleda? Tänan

Teavita reeglite rikkumisest

Korraldaja vastus: 23.05.2026 14:13

tere, pole oluline mis puidust, värvimata

Teavita reeglite rikkumisest

Küsimus: private ID4487   07.12.2009 12:14
Tere, kas kõnealla tuleks ka vineeri, puitkiud või puitlaast plaadi kasutamine. Tänud

Teavita reeglite rikkumisest

Korraldaja vastus: 23.05.2026 14:13

ringi jaoks muidugi saab kasutada vineeri või teise materjali

Teavita reeglite rikkumisest

Küsimus: private ID22638   08.12.2009 19:49
Tere. Mis materjalist (vineer näiteks, kas niiskuskindel või tavaline) peaks need takistused olema ja kas lakitud, värvitud, peitsitud või õlitatud?

Teavita reeglite rikkumisest

Korraldaja vastus: 23.05.2026 14:13

tavaline sobib ka, õlin ja värvin ise

Teavita reeglite rikkumisest

Küsimus: private ID13421   11.12.2009 00:35
Tere! Kõik detailid on 1cm läbimõõduga aga ring on 0,5cm läbimõõduga, kas see 0,5cm on vajalik või võib olla ka 1cm paksune? Teine küsimus- esimese detaili joonis on teil tehtud küljelt aga detaili otsas oleks nagu ronimispulgad või miskit sellist, kui pikad peavad pulgad olema seal küljes olevad pulgad? Aitäh

Teavita reeglite rikkumisest

Korraldaja vastus:
Hanke korraldaja ei ole küsimusele veel vastanud

Lisa küsimus

Lisa küsimus

Minu pakkumine

Reeglid

Pakkumise kirjelduse väli on mõeldud pakkumise detailsemaks lahti kirjutamiseks. Pikema teksti mugavaks sisestamiseks klikkige kasti paremal ülaservas oleval ikoonil.
Pakkumist tehes on keelatud postitada enda kontaktandmeid (nimi, telefon, aadress jne). Me jälgime ja analüüsime pakkumisi, et vältida pettuseid ja reeglite rikkumisi.
Rikkumise puhul kasutajakonto blokeeritakse.

 

Teisi töid samas valdkonnas

Valdkonnas "Puitehitised" on 2 aktiivset tööd

Terrass + Puidust Pergola

Asukoht: Harjumaa, Lähtse
Aega jäänud: 3p 9h
Tehtud pakkumisi: 1

Kuur, auto varjualune

Asukoht: Pärnumaa, Kabli
Aega jäänud: 12p 9h
Tehtud pakkumisi: 1

Vanemad teated:

Vaata kõiki

Sellel veebilehel kasutatakse küpsiseid. Kasutamist jätkates nõustute küpsiste kasutamisega.

Sulge
 
Minu pakkumine

Reeglid

Pakkumise kirjelduse väli on mõeldud pakkumise detailsemaks lahti kirjutamiseks. Pikema teksti mugavaks sisestamiseks klikkige kasti paremal ülaservas oleval ikoonil.
Pakkumist tehes on keelatud postitada enda kontaktandmeid (nimi, telefon, aadress jne). Me jälgime ja analüüsime pakkumisi, et vältida pettuseid ja reeglite rikkumisi.
Rikkumise puhul kasutajakonto blokeeritakse.