+ Lisa oma töö      

Otsid ehitajat "Üldehitus" valdkonnast?

Parima pakkumise ja teostaja leidmiseks lisa oma töö.

Apteegi remont Maardus

ID 18981

6196 vaatamist

Prindi

  • check Pakkumiste tegemine
    kuni 26.03.2010
  • check Võitja valik kuni
    09.04.2010
  • 3 Töö teostamine
    ja hinnang
Hanke lõpp: R, 26. märts, 2010
Maakond: Harjumaa
Linn: Maardu
Tööde algus: E, 03. mai, 2010 (Soovituslik)
Tööde lõpp: K, 26. mai, 2010 (Soovituslik)
Ehitusmaterjalid: Töö tegija poolt

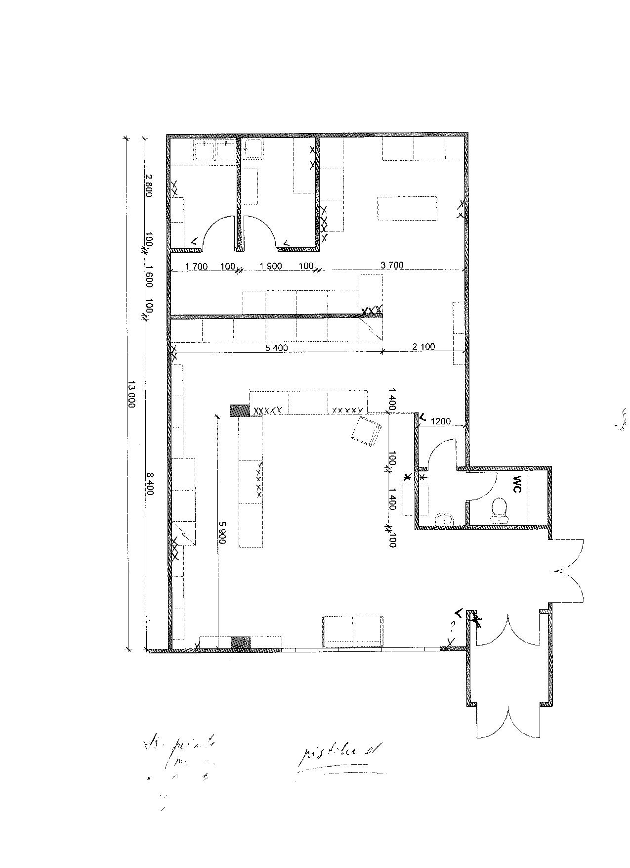
Töö sisu

Vajalikud tööd:
1) Põranda plaatimine, keraamiline plaat 30x30
2) Kipsseinte ehitus (kõik väliskabariitide seinad on olemas)
3) Seinte värvimine, välisseintel vajalik pahteldusparandused ja värvimine, kipsseintel pahteldus+värk
4) Ruumid 2, 3, 6, 7 - seinad plaaditud kuni 2 m kõrguseni. Plaat 30x30
5) Kerguked 4 tk, paigaldu
6) Välisuksed alumiiniumprofiilist 3 tk. Kaks ust vastavalt joonisele ning kolmas mõõtudega 1000x2100 ning sama välimusega.
7) Ripplagi
8) Elektritööd (ripplae valgustid 28 tk,4x18w, süvistatavad ripplaes, kuni 20 pistikut, kuni kuni 6 lülitit, valgusreklaami toide). Välisseintel vajalik freesimine.
9) Santehnika (4 valamut, 1 wc-pott) Kanalisatsioon olemas ruumis nr6 ja 7. Vajalik vedada mööda põrandat ruumi nr 2 ja 3.

Pildid, video ja failid

Hanke korraldaja: ettevõte ID23381

Pakkumised

Pakkumisi kokku: 12

Ettevõte Summa Käibemaks Lisatud Vestlus
Kasutaja ikoon ID22722
Pakkuja profiil Väike nool paremale
8 628,1€ Sisaldab KM Sisaldab KM 20.03.2010 Vestlus (0)
Kasutaja ikoon ID3999
Pakkuja profiil Väike nool paremale
8 180,7€ Sisaldab KM Sisaldab KM 20.03.2010 Vestlus (0)
Kasutaja ikoon ID8690
Pakkuja profiil Väike nool paremale
7 925,0€ Ei sisalda Ei sisalda 20.03.2010 Vestlus (0)

Pakkumise kirjeldus:

töö puhas ja kvaliteetne

Kasutaja ikoon ID10532
Pakkuja profiil Väike nool paremale
8 883,7€ Ei sisalda Ei sisalda 21.03.2010 Vestlus (0)
Kasutaja ikoon ID22464
Pakkuja profiil Väike nool paremale
7 669,4€ Ei sisalda Ei sisalda 21.03.2010 Vestlus (0)

Pakkumise kirjeldus:

Omame pikaajalist sise - ja välisviimistluskogemust. Tehtud tööle garantii. Töö kiire ja korralik.

Kasutaja ikoon ID9381
Pakkuja profiil Väike nool paremale
7 030,3€ Sisaldab KM Sisaldab KM 21.03.2010 Vestlus (0)
Kasutaja ikoon ID23416
Pakkuja profiil Väike nool paremale
6 327,3€ Ei sisalda Ei sisalda 23.03.2010 Vestlus (0)

Pakkumise kirjeldus:

sisaldab kõike vajalikku

Kasutaja ikoon ID23413
Pakkuja profiil Väike nool paremale
8 883,7€ Sisaldab KM Sisaldab KM 23.03.2010 Vestlus (0)

Pakkumise kirjeldus:

Tööle asumine peale lepingu sõlmimist.
Hind võib muutuda peale tööga tutvumist.
Lisandub hange.ee tasu

Kasutaja ikoon ID2175
Pakkuja profiil Väike nool paremale
5 752,1€ Sisaldab KM Sisaldab KM 24.03.2010 Vestlus (0)

Pakkumise kirjeldus:

Hind ei sisalda alumiiniumuste maksumust.

Kasutaja ikoon ID17642
Pakkuja profiil Väike nool paremale
8 628,1€ Sisaldab KM Sisaldab KM 25.03.2010 Vestlus (0)

Pakkumise kirjeldus:

Hind ei sisalda alumiiniumprofiilist uksi. Seinad värvitakse värviga Akzent.

Kasutaja ikoon ID23177
Pakkuja profiil Väike nool paremale
9 203,3€ Ei sisalda Ei sisalda 25.03.2010 Vestlus (0)

Pakkumise kirjeldus:

Hind küll hetkel kõige kallim, kuid tööga jääte väga rahule. Ačiū!

Kasutaja ikoon ID8633
Pakkuja profiil Väike nool paremale
7 797,2€ Ei sisalda Ei sisalda 25.03.2010 Vestlus (0)

Küsimused hanke korraldajale

Küsimus: private ID17079   22.03.2010 12:10
Tere,

Palun võimalusel lisada plaan pdf failina.
Hetkel teil ukse joonis mõlema faili all.

Tänan

Teavita reeglite rikkumisest

Korraldaja vastus:
Hanke korraldaja ei ole küsimusele veel vastanud

Lisa küsimus

Lisa küsimus

Minu pakkumine

Reeglid

Pakkumise kirjelduse väli on mõeldud pakkumise detailsemaks lahti kirjutamiseks. Pikema teksti mugavaks sisestamiseks klikkige kasti paremal ülaservas oleval ikoonil.
Pakkumist tehes on keelatud postitada enda kontaktandmeid (nimi, telefon, aadress jne). Me jälgime ja analüüsime pakkumisi, et vältida pettuseid ja reeglite rikkumisi.
Rikkumise puhul kasutajakonto blokeeritakse.

 

Teisi töid samas valdkonnas

Valdkonnas "Üldehitus" on 27 aktiivset tööd

Terassi õlitamine, 13,7 ruutu

Asukoht: Harjumaa, Saue
Aega jäänud: 5p 16h
Tehtud pakkumisi: 4

Eramaja ehitus

Asukoht: Harjumaa, Suurupi
Aega jäänud: 4p 16h
Tehtud pakkumisi: 4

Vanemad teated:

Vaata kõiki

Sellel veebilehel kasutatakse küpsiseid. Kasutamist jätkates nõustute küpsiste kasutamisega.

Sulge
 
Minu pakkumine

Reeglid

Pakkumise kirjelduse väli on mõeldud pakkumise detailsemaks lahti kirjutamiseks. Pikema teksti mugavaks sisestamiseks klikkige kasti paremal ülaservas oleval ikoonil.
Pakkumist tehes on keelatud postitada enda kontaktandmeid (nimi, telefon, aadress jne). Me jälgime ja analüüsime pakkumisi, et vältida pettuseid ja reeglite rikkumisi.
Rikkumise puhul kasutajakonto blokeeritakse.