+ Lisa oma töö      

Otsid ehitajat "Eramu ehitus" valdkonnast?

Parima pakkumise ja teostaja leidmiseks lisa oma töö.

II korruse väljaehitus Laulasmaal

ID 19143

17740 vaatamist

Prindi

  • check Pakkumiste tegemine
    kuni 20.04.2010
  • check Võitja valik kuni
    04.05.2010
  • 3 Töö teostamine
    ja hinnang
Hanke lõpp: T, 20. aprill, 2010
Maakond: Harjumaa
Muu asula: Laulasmaa küla
Tööde algus: E, 26. aprill, 2010 (Soovituslik)
Tööde lõpp: R, 11. juuni, 2010 (Soovituslik)
Ehitusmaterjalid: Töö tellija poolt

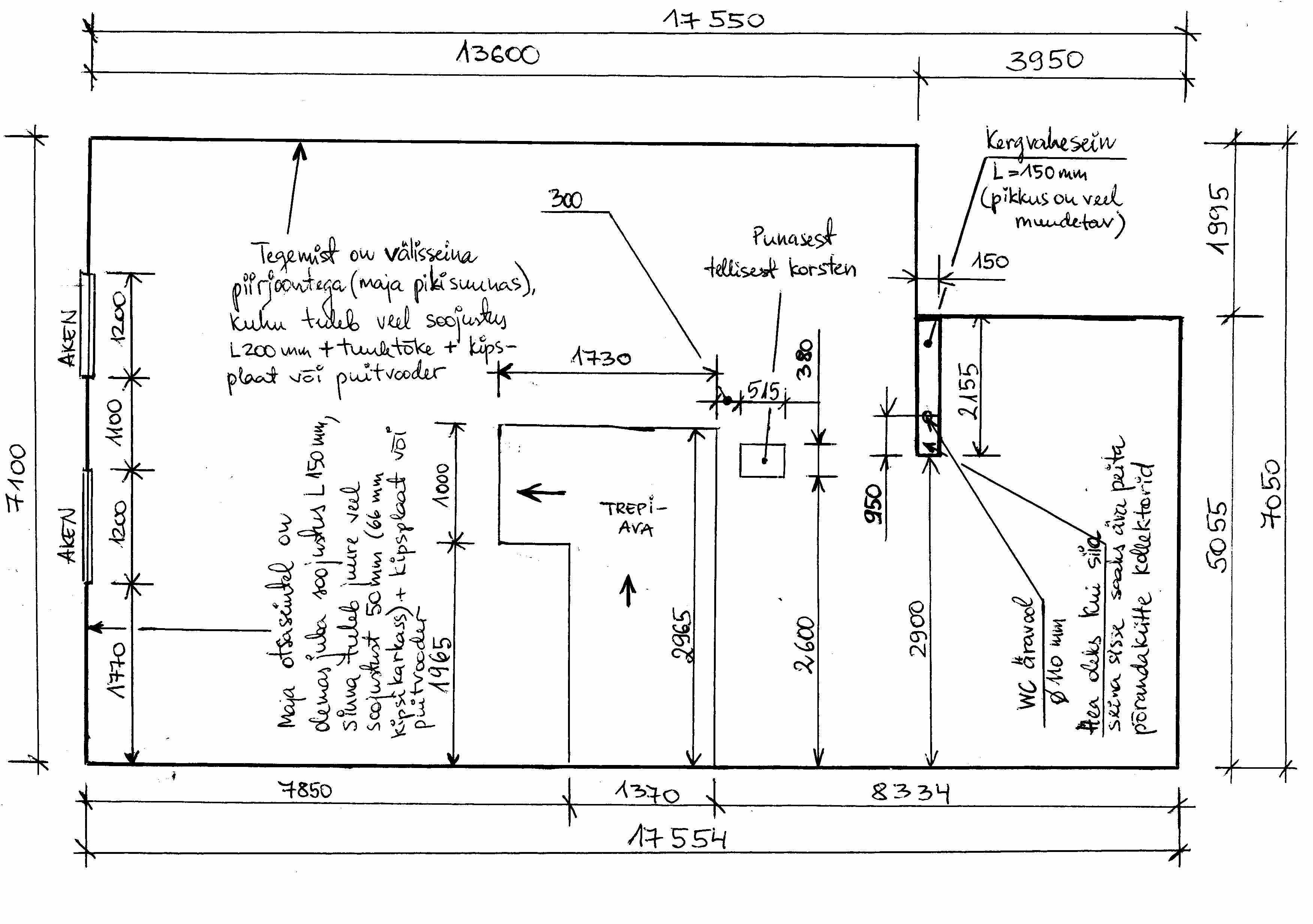
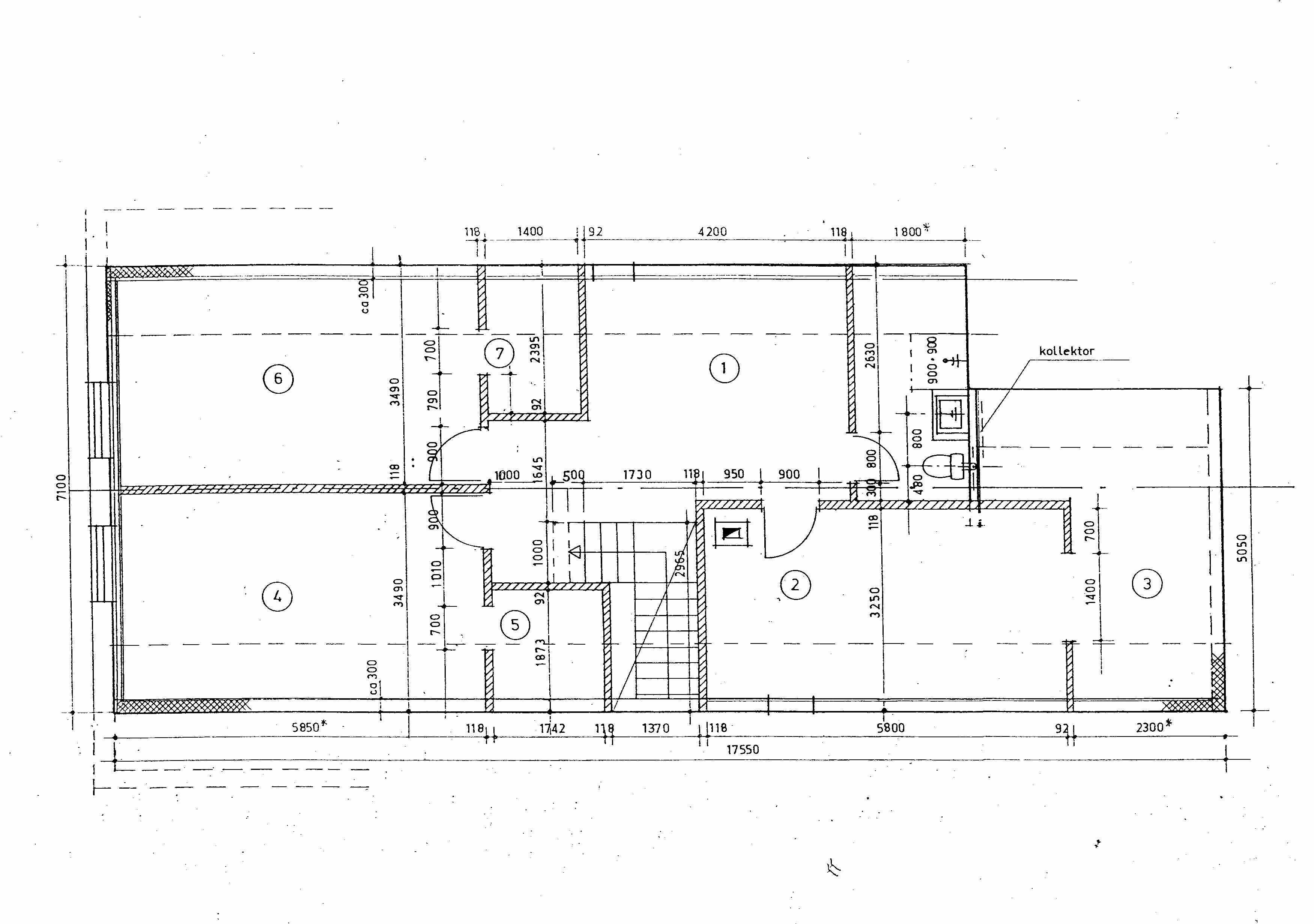
Töö sisu

Eramu II korruse väljaehitus. Hetkel paigaldatud soojustus 75% ulatuses (vt. pilti). Paigaldatud 2x otsaaknad, põrandal Püssi plaat. Väljaehitada tuleb räästa alla vertikalseinad soojustusega, ruumide vaheseinad ehitada 66 mm karkassil, kahel pool 2x kipsplaat. Pigaldada 4 katuseakent, paigaldada luuk pööningule II korruse trepihallist. Sisetiibuste paigaldus, termotöödeldud puitpõranda paigaldus.
Eraldi palume väljatuua seinte ja lagede värvimise m2 hind, tapeetimise m2 hind, plaatimise m2 hind, sanitaartehnika paigaldus (WCpott, valamu, dushinurk). Materjalid on tellija poolt. Pakkumine peab sisaldama ehitusjäätmete koristamist (prügi äravedu tellija poolt). Hinnapakkuja peab omama tööks vajalikke vahendeid.

Pildid, video ja failid

Hanke korraldaja: eraisik ID23565

Pakkumised

Pakkumisi kokku: 6

Ettevõte Summa Käibemaks Lisatud Vestlus
Kasutaja ikoon ID23082
Pakkuja profiil Väike nool paremale
7 989,0€ Ei sisalda Ei sisalda 12.04.2010 Vestlus (2)

Pakkumise kirjeldus:

töö tasu.aitame muretseda materjale ning transpordiga.

Kasutaja ikoon ID12190
Pakkuja profiil Väike nool paremale
5 752,1€ Ei sisalda Ei sisalda 12.04.2010 Vestlus (3)

Pakkumise kirjeldus:

Kõik tööks vajaminev on hinna sees. Abiks nõu ja jõuga materjalide hankimisel.

Kasutaja ikoon ID22724
Pakkuja profiil Väike nool paremale
5 943,8€ Sisaldab KM Sisaldab KM 19.04.2010 Vestlus (4)

Pakkumise kirjeldus:

Tööraha ilma viimistluseta. Värvimine 80kr,tapeet 65kr,plaat 120kr, sanitaartehnika 3000/kompl. Kõik sisaldavad km.

Kasutaja ikoon ID7563
Pakkuja profiil Väike nool paremale
5 752,1€ Ei sisalda Ei sisalda 19.04.2010 Vestlus (4)

Pakkumise kirjeldus:

Värvimine 35 kr m2, tapeetimine 80 kr m2, plaatimine 140 kr m2, valamu, pott 500 kr tk ja dushinurk 1000 kr. Maksmine peale iga nädala lõppu. Hind sisaldab vajaminevaid tööriistu ning ehitusprahi äravedu.

Kasutaja ikoon ID19077
Pakkuja profiil Väike nool paremale
5 104,6€ Sisaldab KM Sisaldab KM 19.04.2010 Vestlus (2)

Pakkumise kirjeldus:

Hind ei sisalda värvimise 15еек m2 , tapeetimise 90 m2 , plaatimise 120 m2 , sanitaartehnika paigaldus - 500еек punkt

Kasutaja ikoon ID8633
Pakkuja profiil Väike nool paremale
5 879,9€ Ei sisalda Ei sisalda 19.04.2010 Vestlus (4)

Küsimused hanke korraldajale

Küsimus: private ID23584   07.04.2010 15:46
Terv. Küsimus selline, kui kõrge on lagi põrandast? Ja nagu pildilt näha, siis trepi auku veel ei ole, või ma eksin?
Täname tähelepanu eest!

Teavita reeglite rikkumisest

Korraldaja vastus: 08.04.2010 00:16

Tere! Hetkel on lagi põrandast 2690mm. Trepiava on olemas, kuid fotol on kaetud OSB plaadiga. Lisasime ka veel II korruse musta joonise arhitektile.

Teavita reeglite rikkumisest

Lisa küsimus

Lisa küsimus

Minu pakkumine

Reeglid

Pakkumise kirjelduse väli on mõeldud pakkumise detailsemaks lahti kirjutamiseks. Pikema teksti mugavaks sisestamiseks klikkige kasti paremal ülaservas oleval ikoonil.
Pakkumist tehes on keelatud postitada enda kontaktandmeid (nimi, telefon, aadress jne). Me jälgime ja analüüsime pakkumisi, et vältida pettuseid ja reeglite rikkumisi.
Rikkumise puhul kasutajakonto blokeeritakse.

 

Teisi töid samas valdkonnas

Valdkonnas "Eramu ehitus" on 2 aktiivset tööd

Eramu ehitus

Asukoht: Viljandimaa, Viljandi
Aega jäänud: 5p 12h
Tehtud pakkumisi: 1

no-img Pilt puudub

Eramu ehitus. Karp kinni.

Asukoht: Lääne-Virumaa
Aega jäänud: 3p 12h
Tehtud pakkumisi: 0

Vanemad teated:

Vaata kõiki

Sellel veebilehel kasutatakse küpsiseid. Kasutamist jätkates nõustute küpsiste kasutamisega.

Sulge
 
Minu pakkumine

Reeglid

Pakkumise kirjelduse väli on mõeldud pakkumise detailsemaks lahti kirjutamiseks. Pikema teksti mugavaks sisestamiseks klikkige kasti paremal ülaservas oleval ikoonil.
Pakkumist tehes on keelatud postitada enda kontaktandmeid (nimi, telefon, aadress jne). Me jälgime ja analüüsime pakkumisi, et vältida pettuseid ja reeglite rikkumisi.
Rikkumise puhul kasutajakonto blokeeritakse.