+ Lisa oma töö      

Otsid ehitajat "Ehituse peatöövõtt" valdkonnast?

Parima pakkumise ja teostaja leidmiseks lisa oma töö.

Hange on lõppenud!

Võitjaks osutus kasutaja ID 8730

Vaheseinte maha võtmine 12 m2

ID 19149

8968 vaatamist

Prindi

  • check Pakkumiste tegemine
    kuni 15.04.2010
  • check Võitja valik kuni
    27.04.2010
  • 3 Töö teostamine
    ja hinnang
Hanke lõpp: N, 15. aprill, 2010
Maakond: Tartumaa
Linn: Tartu
Tööde algus: N, 15. aprill, 2010 (Soovituslik)
Tööde lõpp: K, 21. aprill, 2010 (Soovituslik)
Ehitusmaterjalid: Töö tegija poolt

Töö sisu

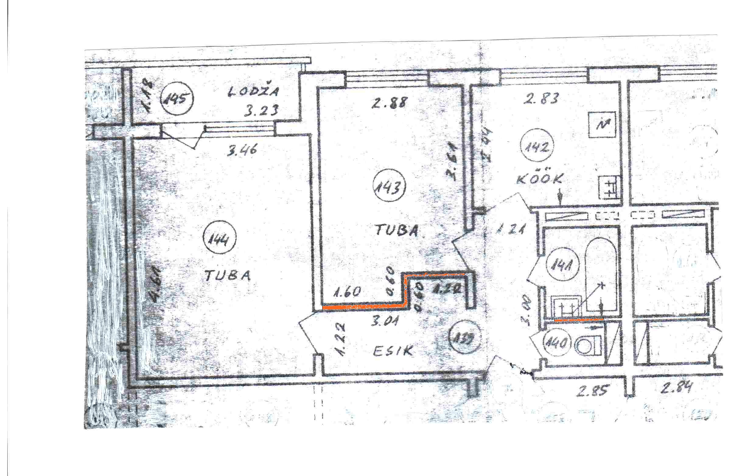
Kahe toalises paneelmaja korteris vaja maha võtta toa ja koridori vaheline sein. Seina kokku 9.3 m2, mille paksus on 7 cm. Lisaks vaja maha võtta vannitoa ja wc vaheline sein 2,3 m2, mille paksus on 8 cm. Tegemist on valatud seinadega. Maha võtmisel oleks soovitav kasutada veega lõikajat. Sein tuleks lõigata umbes 70-80 kg tükkideks. Töö tuleb teha tööpäeva päevasel ajal. Väljaveo ja koristuse teeb tellija. Seinte lammutamisel pole vaja teha lisa toestust. Tööde tegemiseks kirjalik luba olemas. Tellijaks eraisik. Maksmine sulas.

Pildid, video ja failid

Hanke korraldaja: ettevõte ID8318

Pakkumised

Pakkumisi kokku: 4

Ettevõte Summa Käibemaks Lisatud Vestlus
Kasutaja ikoon ID23082
Pakkuja profiil Väike nool paremale
223,7€ Ei sisalda Ei sisalda 12.04.2010 Vestlus (0)

Pakkumise kirjeldus:

kaitse vahendid on meie poolt ,et kuna see on asbesti töö tuleb ka rõhku panna sise kliimale katta toad jne.selleks peame tulema kohale. rõhutan veel see on asbesti töö!

Kasutaja ikoon ID23524
Pakkuja profiil Väike nool paremale
191,7€ Ei sisalda Ei sisalda 13.04.2010 Vestlus (0)
Kasutaja ikoon ID20889
Pakkuja profiil Väike nool paremale
159,8€ Ei sisalda Ei sisalda 13.04.2010 Vestlus (0)
Kasutaja ikoon ID8730
Pakkuja profiil Väike nool paremale
153,4€ Ei sisalda Ei sisalda 13.04.2010 Vestlus (0)

Küsimused hanke korraldajale

Küsimus: private ID17833   07.04.2010 11:53
Ega voolujuthmeid antud seintes sees ei liigu?

Teavita reeglite rikkumisest

Korraldaja vastus: 07.04.2010 17:29

Antud seintes pole juhtmeid.

Teavita reeglite rikkumisest

Lisa küsimus

Lisa küsimus

Minu pakkumine

Reeglid

Pakkumise kirjelduse väli on mõeldud pakkumise detailsemaks lahti kirjutamiseks. Pikema teksti mugavaks sisestamiseks klikkige kasti paremal ülaservas oleval ikoonil.
Pakkumist tehes on keelatud postitada enda kontaktandmeid (nimi, telefon, aadress jne). Me jälgime ja analüüsime pakkumisi, et vältida pettuseid ja reeglite rikkumisi.
Rikkumise puhul kasutajakonto blokeeritakse.

 

Vanemad teated:

Vaata kõiki

Sellel veebilehel kasutatakse küpsiseid. Kasutamist jätkates nõustute küpsiste kasutamisega.

Sulge
 
Minu pakkumine

Reeglid

Pakkumise kirjelduse väli on mõeldud pakkumise detailsemaks lahti kirjutamiseks. Pikema teksti mugavaks sisestamiseks klikkige kasti paremal ülaservas oleval ikoonil.
Pakkumist tehes on keelatud postitada enda kontaktandmeid (nimi, telefon, aadress jne). Me jälgime ja analüüsime pakkumisi, et vältida pettuseid ja reeglite rikkumisi.
Rikkumise puhul kasutajakonto blokeeritakse.