+ Lisa oma töö      

Otsid ehitajat "Üldehitus" valdkonnast?

Parima pakkumise ja teostaja leidmiseks lisa oma töö.

Apteegi remont Lasnamäe Medicumi ruumides

ID 19811

6377 vaatamist

Prindi

  • check Pakkumiste tegemine
    kuni 29.05.2010
  • check Võitja valik kuni
    05.06.2010
  • 3 Töö teostamine
    ja hinnang
Hanke lõpp: L, 29. mai, 2010
Maakond: Harjumaa
Linn: Tallinn
Tööde algus: E, 31. mai, 2010 (Soovituslik)
Tööde lõpp: R, 11. juuni, 2010
Ehitusmaterjalid: Töö tegija poolt

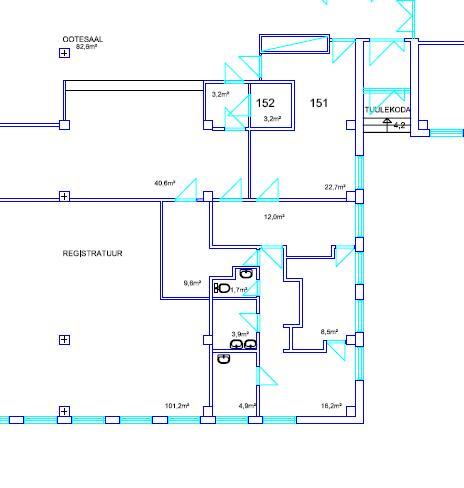
Töö sisu

LAMMUTUS: vt lammatus.jpg
kõik seinad kips
praht utiliseerimisele, siseseinad lahti võtta, et võimalik korduvkasutada ning jäävad tellijale
ava tegemine välisuksele nr2, vt. avataited.jpg
olemasoleva põrandaplaadi eemaldus

ELEKTER-SIDE; vt. plaan vool+side.jpg
pistikud vastavalt plaanile, kaabel mcmk 3x26 + 16/16
seintest eemal olevad pistikud tuleb põrandast freesida
elektrikilp ja sidekapp + arvestada ca 50m kaablit side ja elektri ühenduseks hoone peakilpidega
elektrikilbis arvesti + muu sisu
valgusreklaami toide õues + hämaraanduriga kävitus
ripplae valgustid 4x36w, süvistatavad ripplaes
ühendada ruumide 1,2,3 (vt. viimistlus.jpg) toide uue elektrisüsteemiga ning paigaldada 3 veemõõdikut

AVATÄITED; vt. avataited.jpg
1 klaasist lükanduks, raam must, lukustus, käepide, laius ca 2,5m, kõrgus 2,5m
2 välisuks, metall, värvus must, roostevaba lävepakk, sulgur abloy, lukk abloy, presto käepide, laius 1,2m, kõrgus 2,2, layout vt. uks2 layout.jpg

VIIMISTLUS; vt. viimistlus.jpg
ruumides 1,2,3 jäävad viimistlusest välja
olemasolevatel seintel paranduspahteldus, uutel ja lammutatavates kannadata saanud seintel lauspahteldus
ripplaeplaadid + siinid: valge ripplagi ja valged siinid K:P24490
seinte värvid : Sadolin F5.05.88 bee¸
põrandaplaat 30x30 + vuuk : bee¸i P 21526T (K-Rauta kood), vuuk 1 toon tumedam
põrandaliistud: põrandaplaat 10cm ribad
pistikud-lülitid: valge
ruumid üleanda puhastatult


valve ja ventilatsioon paigaldatakse tellija poolt

Pildid, video ja failid

Hanke korraldaja: ettevõte ID23381

Pakkumised

Pakkumisi kokku: 2

Ettevõte Summa Käibemaks Lisatud Vestlus
Kasutaja ikoon ID24241
Pakkuja profiil Väike nool paremale
16 489,2€ Sisaldab KM Sisaldab KM 28.05.2010 Vestlus (0)

Pakkumise kirjeldus:

Detailse hinnapakkumise saamiseks on vajalik kohal käimine ning täpsemad spetsifikatsioonid.

Kasutaja ikoon ID4532
Pakkuja profiil Väike nool paremale
15 977,9€ Sisaldab KM Sisaldab KM 28.05.2010 Vestlus (0)

Pakkumise kirjeldus:

Hinnapakkumine on tehtud kõigile hankes loetletud töödele.On arvestatud sellega ,et tellija ei ole tööde vahendaja.Kui on siis hinnapakkumine ei kehti!!!Töödele ettemaksu ei soovi aga kallimad materjalid ostetakse koos tellijaga ära.Et teha detailsem hinnapakkumine on vaja kõigega lähemalt tutvuda.

Küsimused hanke korraldajale

Hanke korraldajale ei ole veel küsimusi esitatud.

Lisa küsimus

Lisa küsimus

Minu pakkumine

Reeglid

Pakkumise kirjelduse väli on mõeldud pakkumise detailsemaks lahti kirjutamiseks. Pikema teksti mugavaks sisestamiseks klikkige kasti paremal ülaservas oleval ikoonil.
Pakkumist tehes on keelatud postitada enda kontaktandmeid (nimi, telefon, aadress jne). Me jälgime ja analüüsime pakkumisi, et vältida pettuseid ja reeglite rikkumisi.
Rikkumise puhul kasutajakonto blokeeritakse.

 

Teisi töid samas valdkonnas

Valdkonnas "Üldehitus" on 28 aktiivset tööd

Maja värvimine

Asukoht: Harjumaa, Saue
Aega jäänud: 2p 7h
Tehtud pakkumisi: 5

Terassi õlitamine, 13,7 ruutu

Asukoht: Harjumaa, Saue
Aega jäänud: 5p 7h
Tehtud pakkumisi: 5

Vanemad teated:

Vaata kõiki

Sellel veebilehel kasutatakse küpsiseid. Kasutamist jätkates nõustute küpsiste kasutamisega.

Sulge
 
Minu pakkumine

Reeglid

Pakkumise kirjelduse väli on mõeldud pakkumise detailsemaks lahti kirjutamiseks. Pikema teksti mugavaks sisestamiseks klikkige kasti paremal ülaservas oleval ikoonil.
Pakkumist tehes on keelatud postitada enda kontaktandmeid (nimi, telefon, aadress jne). Me jälgime ja analüüsime pakkumisi, et vältida pettuseid ja reeglite rikkumisi.
Rikkumise puhul kasutajakonto blokeeritakse.