+ Lisa oma töö      

Otsid ehitajat "Üldehitus" valdkonnast?

Parima pakkumise ja teostaja leidmiseks lisa oma töö.

Monoliitbetoonist vahelae ehitus

ID 20137

7819 vaatamist

Prindi

  • check Pakkumiste tegemine
    kuni 05.08.2010
  • check Võitja valik kuni
    12.08.2010
  • 3 Töö teostamine
    ja hinnang
Hanke lõpp: N, 5. august, 2010
Maakond: Viljandimaa
Tööde algus: E, 16. august, 2010 (Soovituslik)
Tööde lõpp: T, 31. august, 2010 (Soovituslik)
Ehitusmaterjalid: Töö tellija poolt

Töö sisu

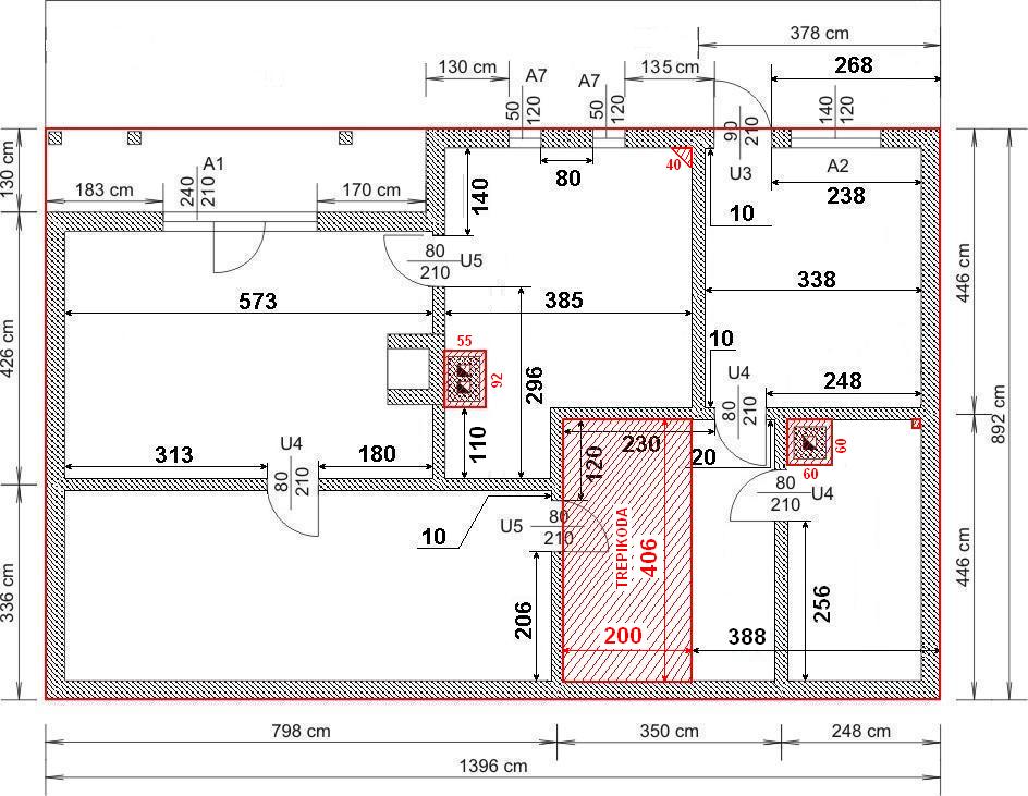
Kelder-vundamendile monoliitbetoonist vahelae ehitus. Peale tuleb palkmaja. Keldri mõõdud 1396 x 892 cm. Välisseinad on laotud Fibo 300 ja siseseinad Fibo 200 plokkidest. Vahelae armeerimise plaan ehitaja poolt. Minu poolt on pumbaauto koos betooniga. Keldri plaan lisas.

Pildid, video ja failid

Hanke korraldaja: eraisik ID24539

Pakkumised

Pakkumisi kokku: 3

Ettevõte Summa Käibemaks Lisatud Vestlus
Kasutaja ikoon ID22130
Pakkuja profiil Väike nool paremale
230,1€ Ei sisalda Ei sisalda 28.07.2010 Vestlus (0)

Pakkumise kirjeldus:

tööraha vahelae ettevalmistus ja töö,parimatega

Kasutaja ikoon ID22976
Pakkuja profiil Väike nool paremale
9 586,8€ Ei sisalda Ei sisalda 04.08.2010 Vestlus (0)
Kasutaja ikoon ID8633
Pakkuja profiil Väike nool paremale
99,1€ Ei sisalda Ei sisalda 05.08.2010 Vestlus (0)

Pakkumise kirjeldus:

töö,1 m2 hind

Küsimused hanke korraldajale

Küsimus: private ID8730   25.07.2010 16:00
kelle poolt on tugipostid ja kandekonstruktsioon? Meeldivat koostööd.

Teavita reeglite rikkumisest

Korraldaja vastus: 27.07.2010 12:41

Tugipostid, kandekonstruktsioon ja armatuur ning muu vajaminev peale betooni peaks sisalduma hinnapakkumises. Ühesõnaga ehitaja poolt.

Teavita reeglite rikkumisest

Küsimus: private ID22130   28.07.2010 22:26
Pakkumises ruutmeetri hind, parimatega

Teavita reeglite rikkumisest

Korraldaja vastus: 01.08.2010 14:16

Kogumaksumus seega ca. 116,5 m2 x 3600 = 419 400 EEK või ma sain pakkumisest valesti aru.

Teavita reeglite rikkumisest

Küsimus: private ID22130   01.08.2010 16:50
Tere, minu aps see hind on betooni kandi pealt ,parimatega

Teavita reeglite rikkumisest

Korraldaja vastus:
Hanke korraldaja ei ole küsimusele veel vastanud

Lisa küsimus

Lisa küsimus

Minu pakkumine

Reeglid

Pakkumise kirjelduse väli on mõeldud pakkumise detailsemaks lahti kirjutamiseks. Pikema teksti mugavaks sisestamiseks klikkige kasti paremal ülaservas oleval ikoonil.
Pakkumist tehes on keelatud postitada enda kontaktandmeid (nimi, telefon, aadress jne). Me jälgime ja analüüsime pakkumisi, et vältida pettuseid ja reeglite rikkumisi.
Rikkumise puhul kasutajakonto blokeeritakse.

 

Teisi töid samas valdkonnas

Valdkonnas "Üldehitus" on 30 aktiivset tööd

Kuuri lammutus

Asukoht: Pärnumaa
Aega jäänud: 2p 20h
Tehtud pakkumisi: 6

Põrandakütte torustiku ja kollektori paigaldus.

Asukoht: Harjumaa, Kurkse
Aega jäänud: 15p 20h
Tehtud pakkumisi: 4

Vanemad teated:

Vaata kõiki

Sellel veebilehel kasutatakse küpsiseid. Kasutamist jätkates nõustute küpsiste kasutamisega.

Sulge
 
Minu pakkumine

Reeglid

Pakkumise kirjelduse väli on mõeldud pakkumise detailsemaks lahti kirjutamiseks. Pikema teksti mugavaks sisestamiseks klikkige kasti paremal ülaservas oleval ikoonil.
Pakkumist tehes on keelatud postitada enda kontaktandmeid (nimi, telefon, aadress jne). Me jälgime ja analüüsime pakkumisi, et vältida pettuseid ja reeglite rikkumisi.
Rikkumise puhul kasutajakonto blokeeritakse.