+ Lisa oma töö      

Otsid ehitajat "Teemantpuurimine ja -saagimine" valdkonnast?

Parima pakkumise ja teostaja leidmiseks lisa oma töö.

Vuukide lõikamine põrandasse.

ID 20145

5702 vaatamist

Prindi

  • check Pakkumiste tegemine
    kuni 09.07.2010
  • check Võitja valik kuni
    16.07.2010
  • 3 Töö teostamine
    ja hinnang
Hanke lõpp: R, 9. juuli, 2010
Maakond: Ida-Virumaa
Muu asula: Väike-Pungerja
Tööde algus: K, 07. juuli, 2010 (Soovituslik)
Tööde lõpp: N, 08. juuli, 2010
Ehitusmaterjalid: Töö tegija poolt

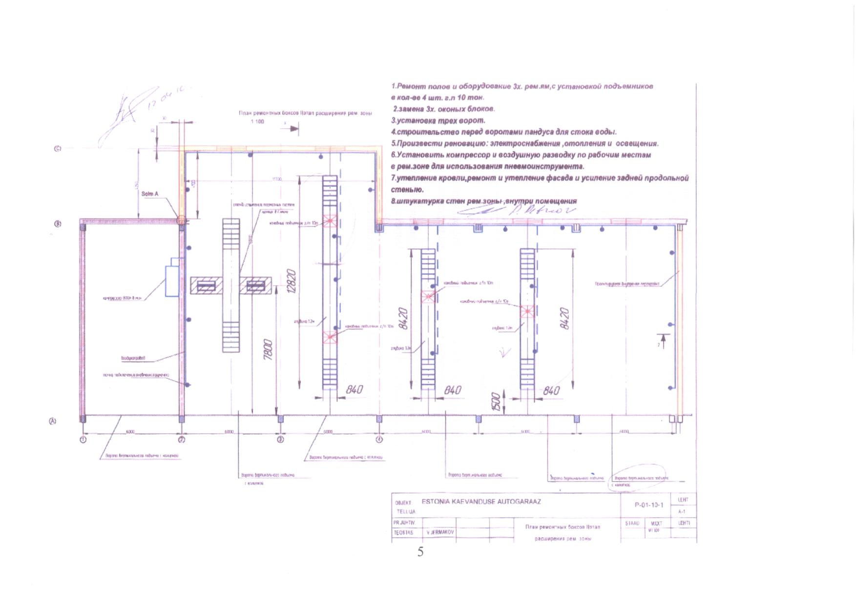
Töö sisu

Betoonpõrandasse mahukahanevate vuukide lõikamine ja täitmine, vastavalt projektile.
Garaa¸is 4 kanalit.

Pildid, video ja failid

Hanke korraldaja: ettevõte ID904

Pakkumised

Pakkumisi kokku: 2

Ettevõte Summa Käibemaks Lisatud Vestlus
Kasutaja ikoon ID8730
Pakkuja profiil Väike nool paremale
4 210,2€ Ei sisalda Ei sisalda 09.07.2010 Vestlus (0)

Pakkumise kirjeldus:

meeldivat koostööd.

Kasutaja ikoon ID22130
Pakkuja profiil Väike nool paremale
3 067,8€ Ei sisalda Ei sisalda 09.07.2010 Vestlus (0)

Pakkumise kirjeldus:

Tere,pakkumises iga 4m soon ca 2cm sügav ja täiteks spetsiaalne silikoon,parimatega

Küsimused hanke korraldajale

Hanke korraldajale ei ole veel küsimusi esitatud.

Lisa küsimus

Lisa küsimus

Minu pakkumine

Reeglid

Pakkumise kirjelduse väli on mõeldud pakkumise detailsemaks lahti kirjutamiseks. Pikema teksti mugavaks sisestamiseks klikkige kasti paremal ülaservas oleval ikoonil.
Pakkumist tehes on keelatud postitada enda kontaktandmeid (nimi, telefon, aadress jne). Me jälgime ja analüüsime pakkumisi, et vältida pettuseid ja reeglite rikkumisi.
Rikkumise puhul kasutajakonto blokeeritakse.

 

Vanemad teated:

Vaata kõiki

Sellel veebilehel kasutatakse küpsiseid. Kasutamist jätkates nõustute küpsiste kasutamisega.

Sulge
 
Minu pakkumine

Reeglid

Pakkumise kirjelduse väli on mõeldud pakkumise detailsemaks lahti kirjutamiseks. Pikema teksti mugavaks sisestamiseks klikkige kasti paremal ülaservas oleval ikoonil.
Pakkumist tehes on keelatud postitada enda kontaktandmeid (nimi, telefon, aadress jne). Me jälgime ja analüüsime pakkumisi, et vältida pettuseid ja reeglite rikkumisi.
Rikkumise puhul kasutajakonto blokeeritakse.