+ Lisa oma töö      

Otsid ehitajat "Elektritööd" valdkonnast?

Parima pakkumise ja teostaja leidmiseks lisa oma töö.

Elektri projekt ja kilp

ID 20696

5844 vaatamist

Prindi

  • check Pakkumiste tegemine
    kuni 14.09.2010
  • check Võitja valik kuni
    21.09.2010
  • 3 Töö teostamine
    ja hinnang
Hanke lõpp: T, 14. september, 2010
Maakond: Harjumaa
Muu asula: Jüri
Tööde algus: K, 15. september, 2010 (Soovituslik)
Tööde lõpp: K, 22. september, 2010 (Soovituslik)
Ehitusmaterjalid: Töö tegija poolt

Töö sisu

Vaja oleks 1kordsele elamule eletri projekti ja kompleteeritud kilpi.16A
Maja ehitusjärgus.

Pildid, video ja failid

Hanke korraldaja: eraisik ID12261

Pakkumised

Pakkumisi kokku: 5

Ettevõte Summa Käibemaks Lisatud Vestlus
Kasutaja ikoon ID19451
Pakkuja profiil Väike nool paremale
511,3€ Sisaldab KM Sisaldab KM 08.09.2010 Vestlus (0)

Pakkumise kirjeldus:

Hind sisaldab projekti ja kilpi.

Kasutaja ikoon ID12791
Pakkuja profiil Väike nool paremale
479,3€ Ei sisalda Ei sisalda 10.09.2010 Vestlus (0)

Pakkumise kirjeldus:

Tere! Hind sisaldab siis eramule elektripaigaldise projekti ja vastavalt kethivatele normidele koostatud elektrikilpi.

Kasutaja ikoon ID6491
Pakkuja profiil Väike nool paremale
447,4€ Sisaldab KM Sisaldab KM 13.09.2010 Vestlus (0)

Pakkumise kirjeldus:

Hinnas on hoone sisene jaotuskilp ja projekt. Peakaitse 3F 16A.

Kasutaja ikoon ID17114
Pakkuja profiil Väike nool paremale
575,2€ Ei sisalda Ei sisalda 13.09.2010 Vestlus (0)
Kasutaja ikoon ID24128
Pakkuja profiil Väike nool paremale
511,3€ Ei sisalda Ei sisalda 14.09.2010 Vestlus (0)

Pakkumise kirjeldus:

Hinnas projekti koostamine ja kilbi komplekteerimine vastavalt projektile. Paigaldus ja installatsioon kokkuleppel. Tehtud töödele garantii.

Küsimused hanke korraldajale

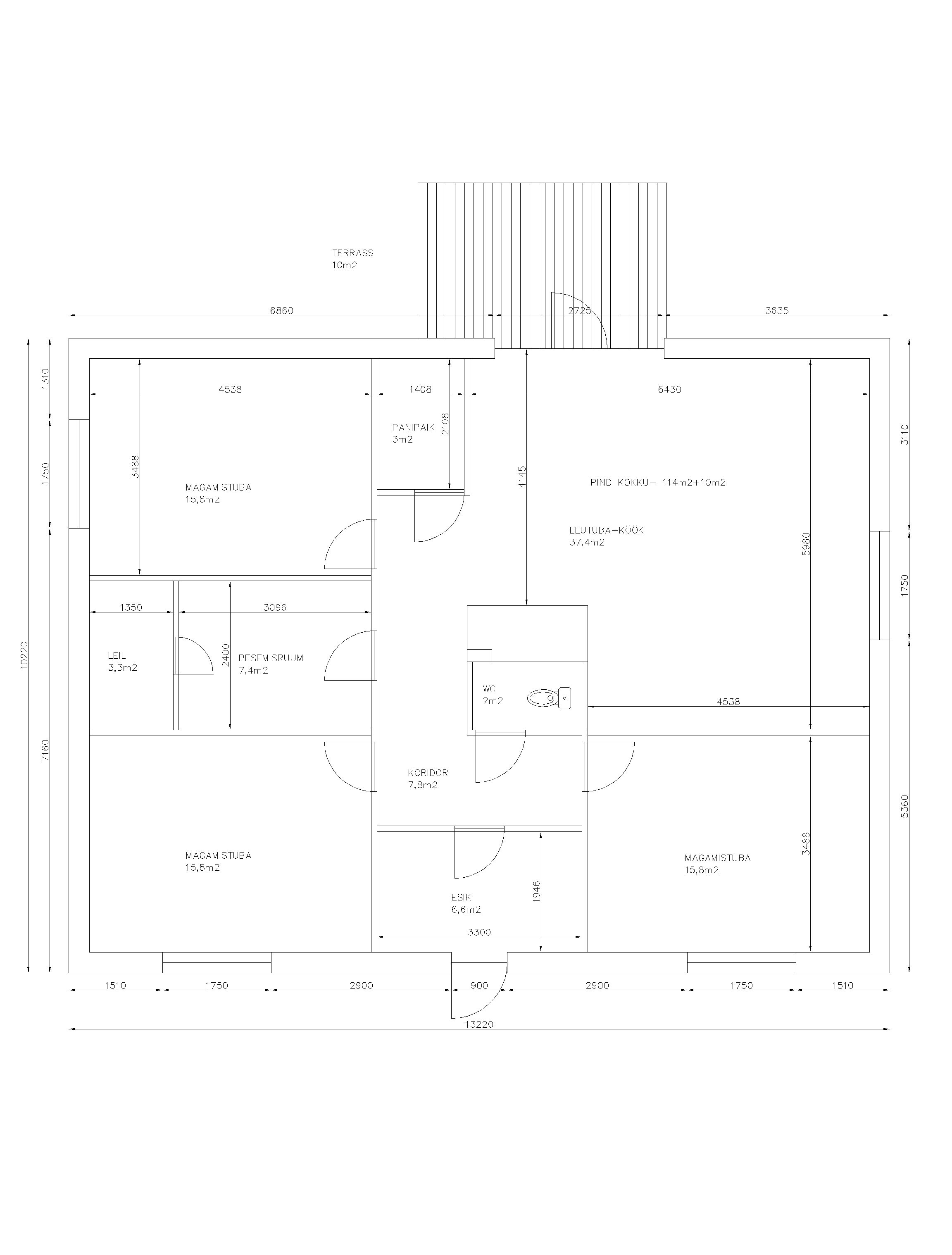
Küsimus: private ID10317   11.09.2010 00:22
Kas on olemas maja plaan, kas on võimalik laadida see siia üles?. Palju on majas ruutmeetreid ja ruume?

Teavita reeglite rikkumisest

Korraldaja vastus: 11.09.2010 17:57

eskiisplaan olemas.115m2

Teavita reeglite rikkumisest

Lisa küsimus

Lisa küsimus

Minu pakkumine

Reeglid

Pakkumise kirjelduse väli on mõeldud pakkumise detailsemaks lahti kirjutamiseks. Pikema teksti mugavaks sisestamiseks klikkige kasti paremal ülaservas oleval ikoonil.
Pakkumist tehes on keelatud postitada enda kontaktandmeid (nimi, telefon, aadress jne). Me jälgime ja analüüsime pakkumisi, et vältida pettuseid ja reeglite rikkumisi.
Rikkumise puhul kasutajakonto blokeeritakse.

 

Teisi töid samas valdkonnas

Valdkonnas "Elektritööd" on 9 aktiivset tööd

Elektritööd

Asukoht: Harjumaa, Tallinn
Aega jäänud: 4p 8h
Tehtud pakkumisi: 5

Korteriühistu elektri väiketööd

Asukoht: Harjumaa, Tallinn
Aega jäänud: 3p 8h
Tehtud pakkumisi: 2

Vanemad teated:

Vaata kõiki

Sellel veebilehel kasutatakse küpsiseid. Kasutamist jätkates nõustute küpsiste kasutamisega.

Sulge
 
Minu pakkumine

Reeglid

Pakkumise kirjelduse väli on mõeldud pakkumise detailsemaks lahti kirjutamiseks. Pikema teksti mugavaks sisestamiseks klikkige kasti paremal ülaservas oleval ikoonil.
Pakkumist tehes on keelatud postitada enda kontaktandmeid (nimi, telefon, aadress jne). Me jälgime ja analüüsime pakkumisi, et vältida pettuseid ja reeglite rikkumisi.
Rikkumise puhul kasutajakonto blokeeritakse.