+ Lisa oma töö      

Otsid ehitajat "Müüritööd" valdkonnast?

Parima pakkumise ja teostaja leidmiseks lisa oma töö.

Vaheseina ehitus

ID 21308

5939 vaatamist

Prindi

  • check Pakkumiste tegemine
    kuni 11.01.2011
  • check Võitja valik kuni
    18.01.2011
  • 3 Töö teostamine
    ja hinnang
Hanke lõpp: T, 11. jaanuar, 2011
Maakond: Tartumaa
Linn: Tartu
Tööde algus: T, 01. veebruar, 2011 (Soovituslik)
Tööde lõpp: T, 01. märts, 2011 (Soovituslik)
Ehitusmaterjalid: Töö tegija poolt

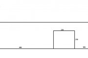
Töö sisu

Tartus vaja ehitada hoonele vahesein.
Mõõtmete info leiab lisatud failist.
Sein laduda 150mm fibost ja tööd teostada nii, et seina saab seejärel värvida(otse fibole värv). Värvimine ei kuulu sellesse hankesse.
Tellijaks juriidiline isik.
Materjalid tööde teostaja poolt ja pakkumises tuua välja selgitaval real töö ja materjali hind eraldi. Objektil olemas segumasin.

Pildid, video ja failid

Hanke korraldaja: eraisik ID4772

Pakkumised

Pakkumisi kokku: 10

Ettevõte Summa Käibemaks Lisatud Vestlus
Kasutaja ikoon ID17248
Pakkuja profiil Väike nool paremale
850€ Ei sisalda Ei sisalda 04.01.2011 Vestlus (0)

Pakkumise kirjeldus:

Tere meie pakkumine oleks materjal fibo 150mm mp3,müürisegu talvine,bi-armatuur iga kolmanda rea pealt,transport 622.- Eur ja töö maksumus puhtavuugi ladumisel 228.-Eur.Alustamine koheselt.Hinnapakkumises materjalidel on juba käibemaks juures.Vaadake meie ID alt ka meie eelnevalt tehtuid töid ka ladumisi ja juurde ehitusi ja meiele antud hinnanguid.Lug ... Rohkem

Kasutaja ikoon ID25503
Pakkuja profiil Väike nool paremale
690€ Ei sisalda Ei sisalda 07.01.2011 Vestlus (0)
Kasutaja ikoon ID23061
Pakkuja profiil Väike nool paremale
680€ Ei sisalda Ei sisalda 07.01.2011 Vestlus (0)

Pakkumise kirjeldus:

Tere. Hinnapakkumine sisaldab kõiki Teie poolt loetletud töid ( vaheseina ladumist ) ja materjale ( Fibo3 või Fibo5 plokid, segu jne ). Töö siis 220 EUR ja materjalid 460 EUR. Lugupidamisega ja kõike paremat.

Kasutaja ikoon ID25333
Pakkuja profiil Väike nool paremale
720€ Sisaldab KM Sisaldab KM 10.01.2011 Vestlus (0)
Kasutaja ikoon ID23477
Pakkuja profiil Väike nool paremale
817€ Ei sisalda Ei sisalda 10.01.2011 Vestlus (0)

Pakkumise kirjeldus:

Tere
Marerjal 618 EUR( kergplokk fibo 3 150, bi-armatuur, müürisegu. Materjalid koos transpordiga. Tööraha 199 EUR.

Kasutaja ikoon ID9855
Pakkuja profiil Väike nool paremale
300€ Ei sisalda Ei sisalda 10.01.2011 Vestlus (0)

Pakkumise kirjeldus:

Materjal poest!

Kasutaja ikoon ID22130
Pakkuja profiil Väike nool paremale
650€ Ei sisalda Ei sisalda 11.01.2011 Vestlus (0)

Pakkumise kirjeldus:

tere,pakkumises fibo3/150 140tk, sillus ja tööraha, tööde teostamise aeg kolm päeva parimatega

Kasutaja ikoon ID23896
Pakkuja profiil Väike nool paremale
650€ Ei sisalda Ei sisalda 11.01.2011 Vestlus (0)

Pakkumise kirjeldus:

Tere, kõik vajalikud tööd ja materjalid töödele firma garantii.

Kasutaja ikoon ID21245
Pakkuja profiil Väike nool paremale
626€ Ei sisalda Ei sisalda 11.01.2011 Vestlus (0)
Kasutaja ikoon ID1472
Pakkuja profiil Väike nool paremale
640€ Ei sisalda Ei sisalda 11.01.2011 Vestlus (0)

Küsimused hanke korraldajale

Küsimus: private ID23061   04.01.2011 11:51
Tere. Saan ma õigesti aru, et 220x250 on ava kuhu müüri ei tule?

Teavita reeglite rikkumisest

Korraldaja vastus: 04.01.2011 11:53

Täpselt nii! Vabandan, et jätsin selle märkimatata.

Teavita reeglite rikkumisest

Küsimus: private ID17833   04.01.2011 13:50
Kuidas on lood temperatuuriga?

Teavita reeglite rikkumisest

Korraldaja vastus: 04.01.2011 13:53

Hoones on küte sees, temp umbes 20

Teavita reeglite rikkumisest

Küsimus: private ID17248   04.01.2011 13:52
Tere soovite siis puhast vuuki jah.Kas sort on oluline kas fibo 3 või fibo 5 ehk siis tugevused ja kas bi-armatuuri soovite ka vahele

Teavita reeglite rikkumisest

Korraldaja vastus: 04.01.2011 13:55

Puhas vuuk võib olla jah. Kuna tegu pole kandevseinaga, siis vist fibo3? Armatuuri kohta ei oska midagi vastata, kuidas õigem teha on.

Teavita reeglite rikkumisest

Küsimus: private ID17248   04.01.2011 15:33
vabandage meil jäi üks asi pakkumisest välja mis sillust te soovite sinna

Teavita reeglite rikkumisest

Korraldaja vastus: 04.01.2011 15:42

Palun täpsustada küsimust. Milline valik on? Võiks kasutada nt. fibo sillust.

Teavita reeglite rikkumisest

Küsimus: private ID17248   04.01.2011 17:10
Kuna tegu on üsna lühikese vahemaaga ehk 2,2m siis võib tavalist sillust kasutada,kuid siis peab fibo silluse alla parem padja kergemat sorti valama sest kui tahate et valada sillus siis ei kujuta ette mis efekti võib jätta kui ainult ette nähtud on värvida ainult fibo sein.

Teavita reeglite rikkumisest

Korraldaja vastus: 04.01.2011 17:26

Selge, Arvestame Teie pakkumisega ja silluse valikuga. Olulisel määral see ju pakkumise hinda ei muuda. Peale hinna arvestame ka teisi kriteeriume..

Teavita reeglite rikkumisest

Lisa küsimus

Lisa küsimus

Minu pakkumine

Reeglid

Pakkumise kirjelduse väli on mõeldud pakkumise detailsemaks lahti kirjutamiseks. Pikema teksti mugavaks sisestamiseks klikkige kasti paremal ülaservas oleval ikoonil.
Pakkumist tehes on keelatud postitada enda kontaktandmeid (nimi, telefon, aadress jne). Me jälgime ja analüüsime pakkumisi, et vältida pettuseid ja reeglite rikkumisi.
Rikkumise puhul kasutajakonto blokeeritakse.

 

Vanemad teated:

Vaata kõiki

Sellel veebilehel kasutatakse küpsiseid. Kasutamist jätkates nõustute küpsiste kasutamisega.

Sulge
 
Minu pakkumine

Reeglid

Pakkumise kirjelduse väli on mõeldud pakkumise detailsemaks lahti kirjutamiseks. Pikema teksti mugavaks sisestamiseks klikkige kasti paremal ülaservas oleval ikoonil.
Pakkumist tehes on keelatud postitada enda kontaktandmeid (nimi, telefon, aadress jne). Me jälgime ja analüüsime pakkumisi, et vältida pettuseid ja reeglite rikkumisi.
Rikkumise puhul kasutajakonto blokeeritakse.