+ Lisa oma töö      

Otsid ehitajat "Palkmajad" valdkonnast?

Parima pakkumise ja teostaja leidmiseks lisa oma töö.

Palk tooted

ID 21441

19488 vaatamist

Prindi

  • check Pakkumiste tegemine
    kuni 16.02.2011
  • check Võitja valik kuni
    23.02.2011
  • 3 Töö teostamine
    ja hinnang
Hanke lõpp: K, 16. veebruar, 2011
Maakond: Raplamaa
Muu asula: Märjamaa vald
Tööde algus: E, 21. märts, 2011 (Soovituslik)
Tööde lõpp: L, 30. aprill, 2011 (Soovituslik)
Ehitusmaterjalid: Töö tegija poolt

Töö sisu

Grillmaja
Soovime 6 või 8 nurkset grillmaja.
Hoone eest vaadatune ukse poolt paremal ja vasakule jäävad aknaavad 1000mm kõrgusega, laius vastavalt võimalustele.
6-nurksel kaks ja 8-nurksel 4 aknaava.
Ainult palkosa, kõrgusega 2200mm.

Aed 1.
Kiik

Aed 2.
Kaptenikiik

Aed 3.
Lastekiik

Aed 4.
Lastemaja

Aed 5
Lastemaja-2

Aed 6.
Laud

Aed 7.
Koerakuut
Suuremale koerale.

Aed 8.
Liivakasti äärised.
8000x8000mm soovitavalt jätkudega

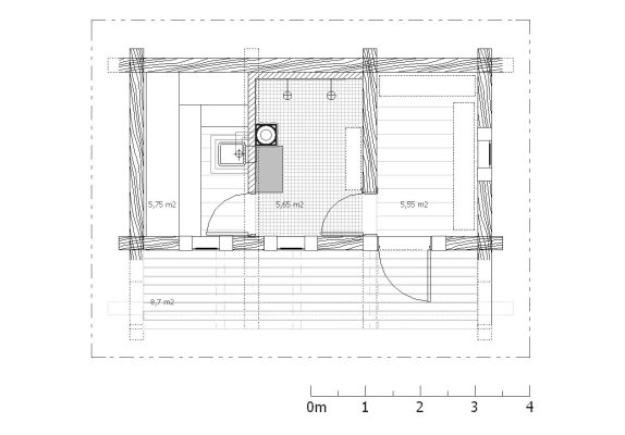
Saun
Palkseina paksus ca 170-190mm
Hoone palkosa võib pakkuda ka oma projekti alusel ca. 30-55 m2.



Pildid, video ja failid

Hanke korraldaja: ettevõte ID11555

Pakkumised

Pakkumisi kokku: 3

Ettevõte Summa Käibemaks Lisatud Vestlus
Kasutaja ikoon ID25898
Pakkuja profiil Väike nool paremale
20 000€ Ikoon kell Sisaldab KM Sisaldab KM 16.02.2011 Vestlus (0)
Kasutaja ikoon ID1673
Pakkuja profiil Väike nool paremale
14 707€ Ei sisalda Ei sisalda 16.02.2011 Vestlus (0)

Pakkumise kirjeldus:

1. kiik - 147 EUR,
2. lastekiik - 100 EUR,
3. lastemaja - 1150 EUR,
4. laud - 235 EUR,
5. koerakuut - 575 EUR,
6. liivakast ( 1,5*1,5*0,35) - 240 EUR;
7. saun 25m2, 180-200mm, soojustus mater. palkide vahele, puupunid - 6780EUR,
8. grillmaja 53m2, 8-nurkne, 200-220mm, puupunid - 5480 EUR.
Lisandub transport.

Kasutaja ikoon ID17605
Pakkuja profiil Väike nool paremale
13 000€ Ei sisalda Ei sisalda 16.02.2011 Vestlus (0)

Pakkumise kirjeldus:

Materjal ja tööraha. Hind ei sisalda transporti. (Tooted valmivad Harjumaal). Hoonete(grillmaja, saun, lastemaja) puhul tegemist nn. palkkarpidega ehk ilma katusekatte, uste ja akendeta. Lugupidamisega

Küsimused hanke korraldajale

Küsimus: private ID1673   06.02.2011 19:34
Tere. Meie rubriigis ,, Tehtud tööd`` võite näha (2 uhesugust pilti )kaheksaseinalist grillmaja, üldpind 24,4m2.Kas selline variant sobib?

Teavita reeglite rikkumisest

Korraldaja vastus: 07.02.2011 21:22

Tere. sobib ,kui vastaks ruutmeetrite soovile. Tänan

Teavita reeglite rikkumisest

Küsimus: private ID22184   09.02.2011 08:49
Tere ja mis on grillmajade ruutmeetri soov
Millised peaks olema lastemajad ei näae joonist ega kirjeldust

Teavita reeglite rikkumisest

Korraldaja vastus: 12.02.2011 17:49

grillmaja võiks jääda ca.58-60m2. juurde. Lastemaja võiks jääda 1600x1600x1800 ning terassiga.

Teavita reeglite rikkumisest

Küsimus: private ID25898   16.02.2011 20:17
summa sai ikka nagu 20000tuh euri pandud.

Teavita reeglite rikkumisest

Korraldaja vastus:
Hanke korraldaja ei ole küsimusele veel vastanud

Lisa küsimus

Lisa küsimus

Minu pakkumine

Reeglid

Pakkumise kirjelduse väli on mõeldud pakkumise detailsemaks lahti kirjutamiseks. Pikema teksti mugavaks sisestamiseks klikkige kasti paremal ülaservas oleval ikoonil.
Pakkumist tehes on keelatud postitada enda kontaktandmeid (nimi, telefon, aadress jne). Me jälgime ja analüüsime pakkumisi, et vältida pettuseid ja reeglite rikkumisi.
Rikkumise puhul kasutajakonto blokeeritakse.

 

Vanemad teated:

Vaata kõiki

Sellel veebilehel kasutatakse küpsiseid. Kasutamist jätkates nõustute küpsiste kasutamisega.

Sulge
 
Minu pakkumine

Reeglid

Pakkumise kirjelduse väli on mõeldud pakkumise detailsemaks lahti kirjutamiseks. Pikema teksti mugavaks sisestamiseks klikkige kasti paremal ülaservas oleval ikoonil.
Pakkumist tehes on keelatud postitada enda kontaktandmeid (nimi, telefon, aadress jne). Me jälgime ja analüüsime pakkumisi, et vältida pettuseid ja reeglite rikkumisi.
Rikkumise puhul kasutajakonto blokeeritakse.