+ Lisa oma töö      

Otsid ehitajat "Fassaaditööd" valdkonnast?

Parima pakkumise ja teostaja leidmiseks lisa oma töö.

Hange on lõppenud!

Võitjaks osutus kasutaja ID 17605

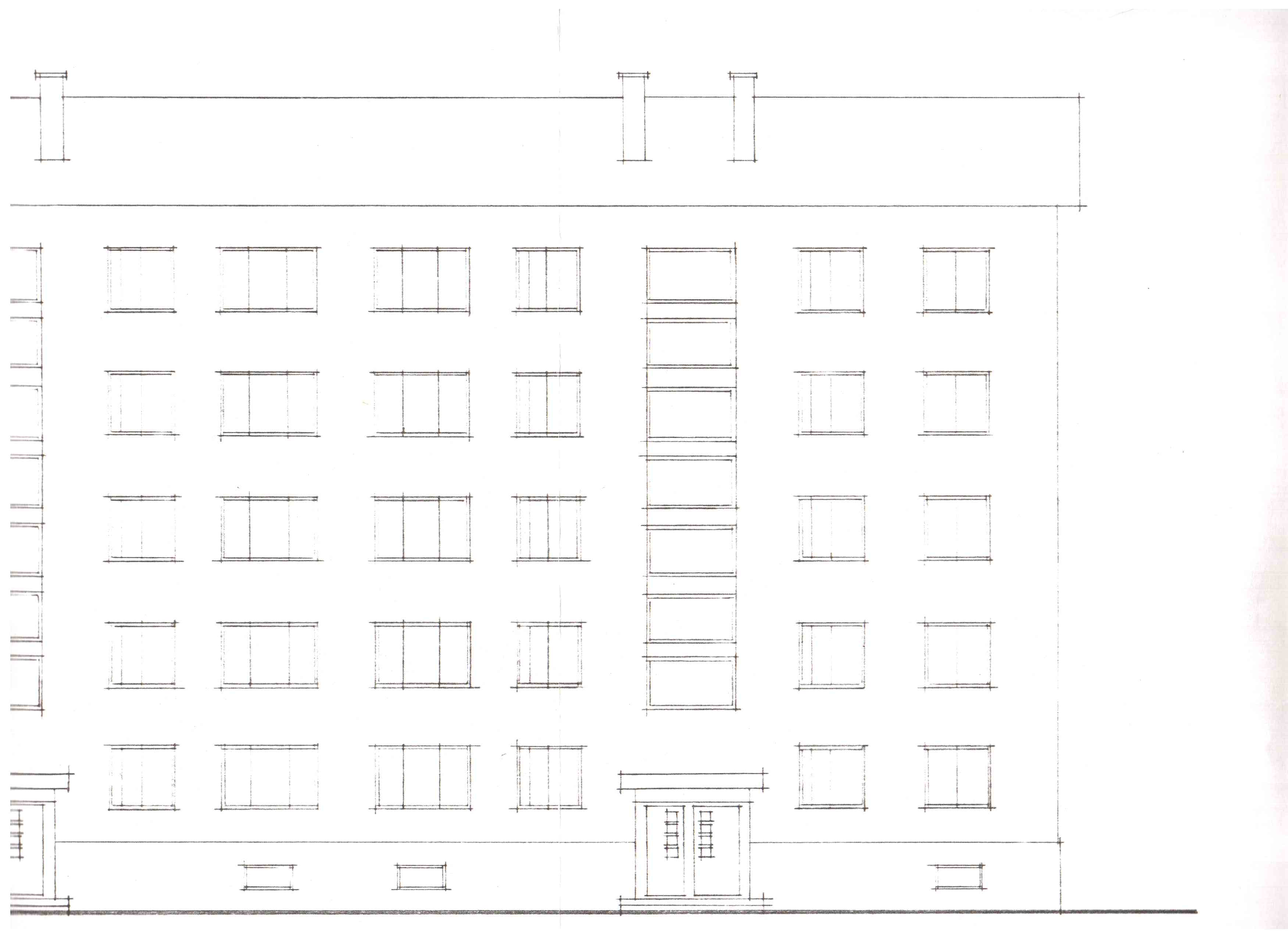
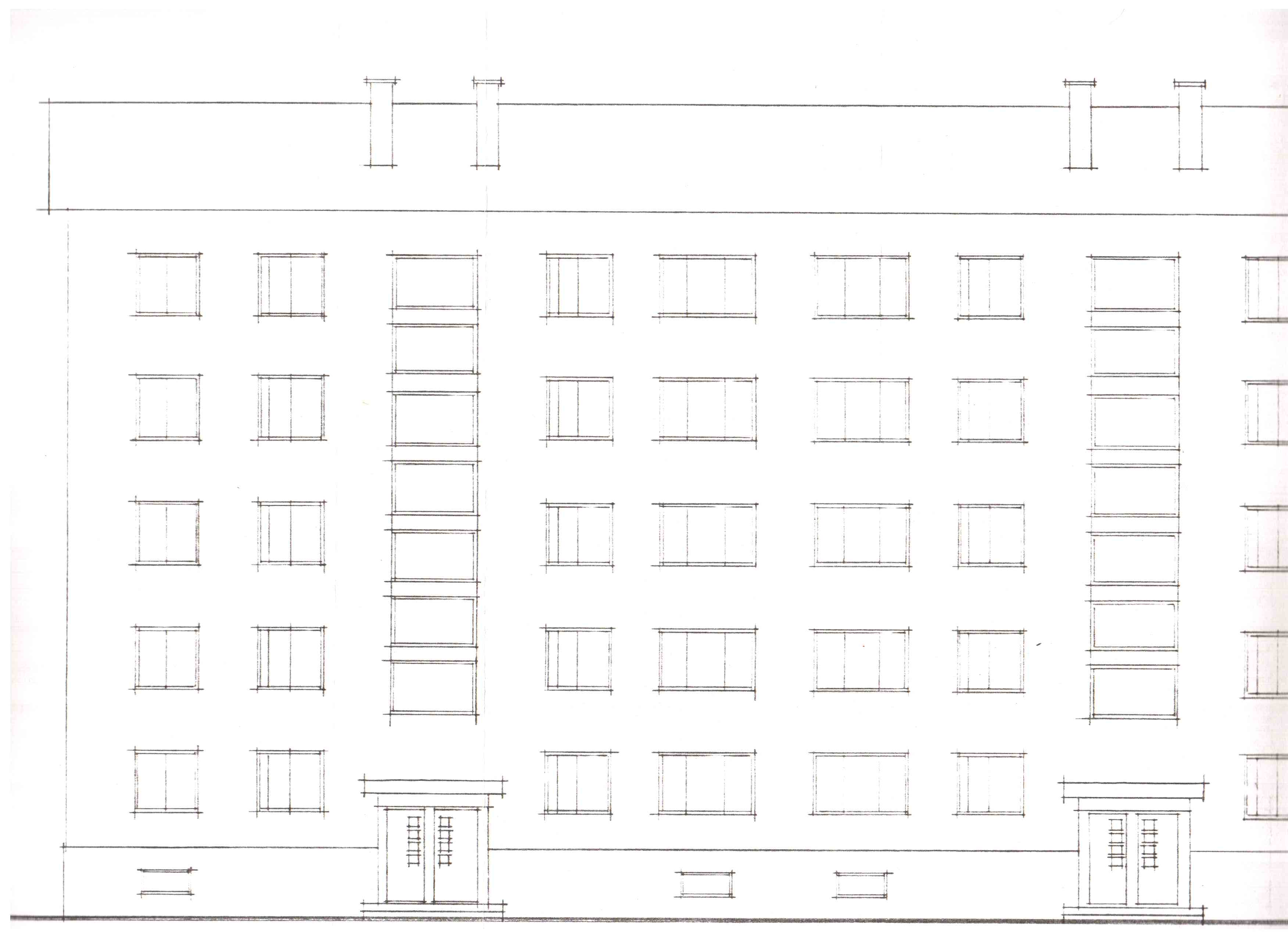
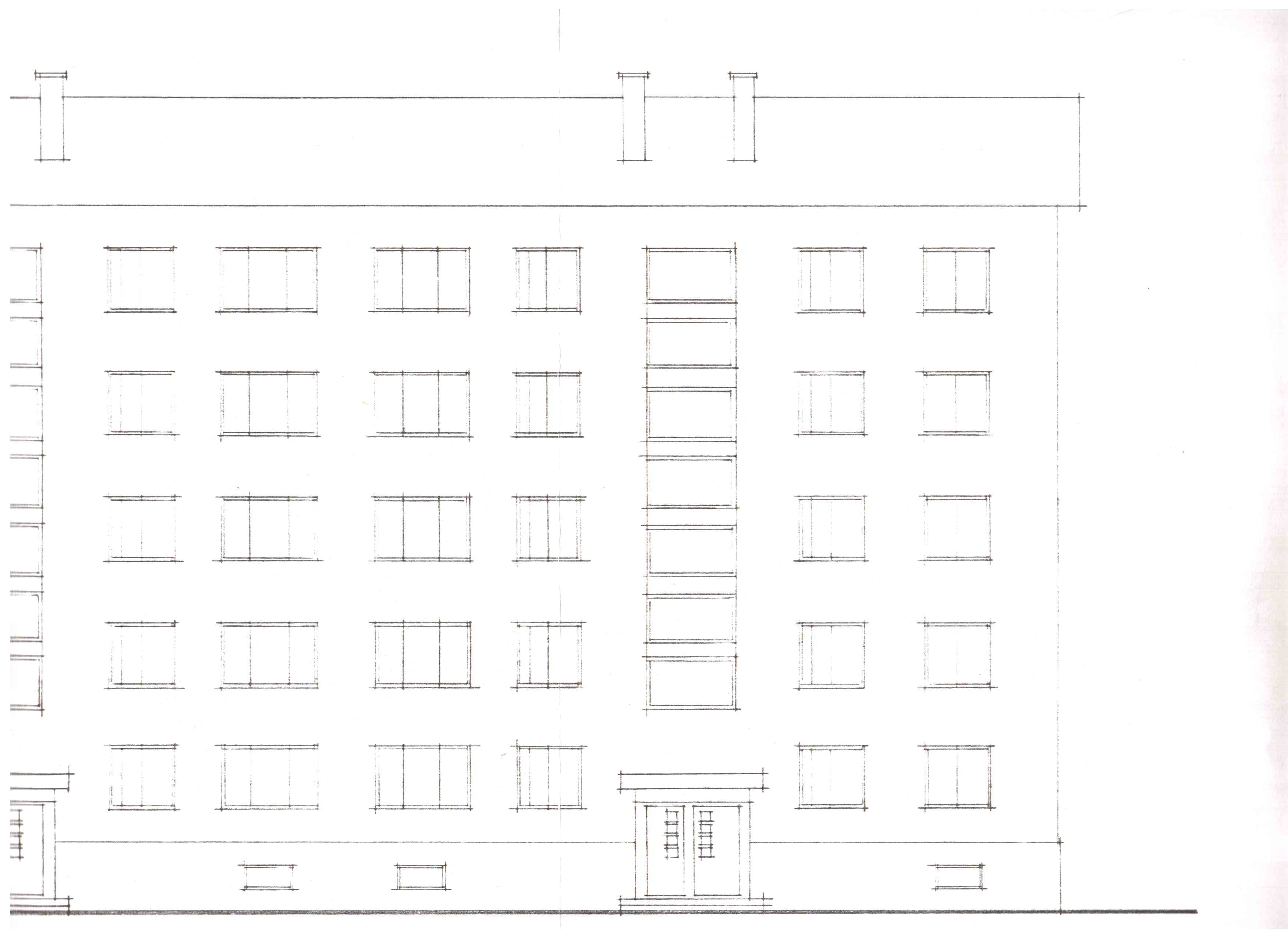
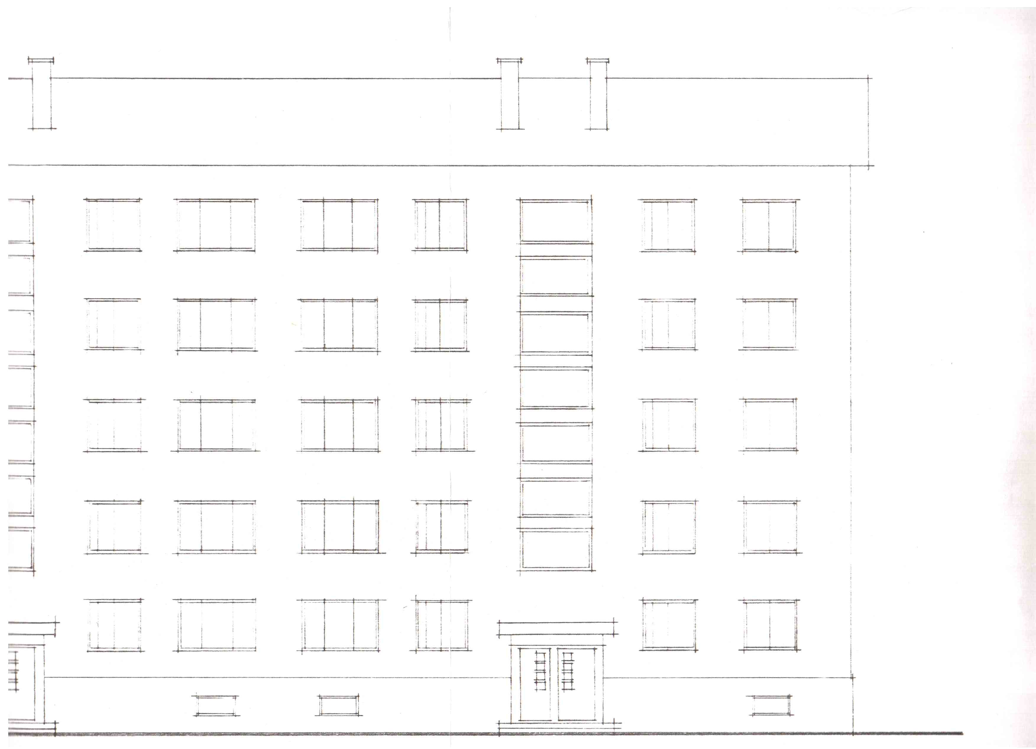
45 korteriga elamu renoveerimine

ID 21495

7612 vaatamist

Prindi

  • check Pakkumiste tegemine
    kuni 14.03.2011
  • check Võitja valik kuni
    21.03.2011
  • 3 Töö teostamine
    ja hinnang
Hanke lõpp: E, 14. märts, 2011
Maakond: Harjumaa
Muu asula: Ämari alevik, Vasalemma vald
Tööde algus: P, 01. mai, 2011 (Soovituslik)
Tööde lõpp: P, 31. juuli, 2011 (Soovituslik)
Ehitusmaterjalid: Töö tegija poolt

Töö sisu

Uus katus koos soojustusega. Fassaadi renoveerimine 150 mm penoga ligikaudu 1800 m2. Koridori akende vahetus koos välisustega ning koridor esine katus.

Pildid, video ja failid

Hanke korraldaja: eraisik ID25880

Pakkumised

Pakkumisi kokku: 28

Ettevõte Summa Käibemaks Lisatud Vestlus
Kasutaja ikoon ID8637
Pakkuja profiil Väike nool paremale
150 000€ Sisaldab KM Sisaldab KM 16.02.2011 Vestlus (4)

Pakkumise kirjeldus:

Tere ! Pakkumine sisaldab vajalikke materjale ja seadmeid ning, korrektset tööjõudu. Suurte Korterelamute Renoveerimis kogemus olemas ja oleme Kreedexi poolt Aksepteeritav. Parimat ... Erki

Kasutaja ikoon ID24751
Pakkuja profiil Väike nool paremale
145 000€ Sisaldab KM Sisaldab KM 17.02.2011 Vestlus (3)

Pakkumise kirjeldus:

Pakkumine sisaldab kõiki soovitud töid, materjale ja vahendeid. Garantii tööle 3a.

Kasutaja ikoon ID8943
Pakkuja profiil Väike nool paremale
135 400€ Ei sisalda Ei sisalda 18.02.2011 Vestlus (1)

Pakkumise kirjeldus:

Töö kiire ja korralik.

Kasutaja ikoon ID12190
Pakkuja profiil Väike nool paremale
107 336€ Sisaldab KM Sisaldab KM 20.02.2011 Vestlus (2)

Pakkumise kirjeldus:

Hind sisaldab materjali ja tööraha küsitud töödele: 85 245 EUR fassaad, 17 136 EUR katus ja 4 985 EUR välisuksed+tuulekoja katused. Hetkel pakkumine ei sisalda aknaid ja nende paigaldust.

Kasutaja ikoon ID2307
Pakkuja profiil Väike nool paremale
140 900€ Ikoon kell Ei sisalda Ei sisalda 13.03.2011 Vestlus (2)
Kasutaja ikoon ID25923
Pakkuja profiil Väike nool paremale
134 450€ Ei sisalda Ei sisalda 21.02.2011 Vestlus (1)
Kasutaja ikoon ID21692
Pakkuja profiil Väike nool paremale
76 602,0€ Sisaldab KM Sisaldab KM 21.02.2011 Vestlus (1)
Kasutaja ikoon ID23416
Pakkuja profiil Väike nool paremale
113 500€ Ikoon kell Sisaldab KM Sisaldab KM 27.02.2011 Vestlus (2)
Kasutaja ikoon ID25515
Pakkuja profiil Väike nool paremale
109 000€ Ei sisalda Ei sisalda 22.02.2011 Vestlus (1)

Pakkumise kirjeldus:

Hind sisaldab kõiki nimetatud töid ja materjale.

Kasutaja ikoon ID9748
Pakkuja profiil Väike nool paremale
115 891,5€ Ei sisalda Ei sisalda 22.02.2011 Vestlus (1)
Kasutaja ikoon ID25503
Pakkuja profiil Väike nool paremale
118 850€ Sisaldab KM Sisaldab KM 24.02.2011 Vestlus (1)
Kasutaja ikoon ID22513
Pakkuja profiil Väike nool paremale
110 345€ Ei sisalda Ei sisalda 24.02.2011 Vestlus (1)

Pakkumise kirjeldus:

Juhin tähelepanu ka kaasnevatele lisatöödele. Mõned mahud ja numbrid ilmselt vajavad täpsustamist.

Kasutaja ikoon ID8633
Pakkuja profiil Väike nool paremale
118 400€ Ei sisalda Ei sisalda 24.02.2011 Vestlus (2)

Pakkumise kirjeldus:

töö,materjal,umbkaudne pakkumine,kuna ei ole projekti.

Kasutaja ikoon ID25826
Pakkuja profiil Väike nool paremale
99 500€ Ikoon kell Sisaldab KM Sisaldab KM 14.03.2011 Vestlus (1)

Pakkumise kirjeldus:

Tere.Hind sisaldab kõiki nimetatud töid ja materjale.Töö kiire ja korralik.Garantii tööle 3a.Ettemaks ainult materjale.

Kasutaja ikoon ID19077
Pakkuja profiil Väike nool paremale
10 000€ Sisaldab KM Sisaldab KM 27.02.2011 Vestlus (3)

Pakkumise kirjeldus:

Kõik materjalid ja tööd. Kvalitatiivne ja kiiresti, hea töökollektiiv, suurepärane kogemus.Ettemaks ainult materjale.

Kasutaja ikoon ID25484
Pakkuja profiil Väike nool paremale
7 339,7€ Ikoon kell Sisaldab KM Sisaldab KM 01.03.2011 Vestlus (1)

Pakkumise kirjeldus:

Tere
Tegemist on kvaliteetsete PVC akende(5-kambriline süsteem, profiili laius 70mm) ja raudustega.
Hinnapakkumine sisaldab akende, rauduste, veeplekkide, paigaldamise, siseviimistluse ja utiliseerimise hinda.
Tarneaeg 2/4 nädalat(akendel 2 ja ustel 4).

Kasutaja ikoon ID11115
Pakkuja profiil Väike nool paremale
61 200€ Ei sisalda Ei sisalda 28.02.2011 Vestlus (1)

Pakkumise kirjeldus:

sisalsab fassaadi soojustust 150mm peno,armeerimist,krohvimist mineraalkrohviga,värvimist.Aknaplekk lisaks11,50eur jm.akende ja uste hinnad selguvad läbirääkimistel

Kasutaja ikoon ID22182
Pakkuja profiil Väike nool paremale
105 000€ Ei sisalda Ei sisalda 01.03.2011 Vestlus (2)

Pakkumise kirjeldus:

Pakkumine sisaldab kõiki vajalike töid ja materjale,sisse arvutatud,uued aknaplekid ja vihmavee süsteem.Katusetöödele garantii 5a.Fassaaditöödele kuni 20 aastat.Fassaadi materjalidena kasutatud EPS 70,Ejot tarvikud,Kreiseli krohvid.Materjalide tellimine koos kliendiga,et otsest ettemaksu ei vaja.Tööde maksmine ettappide kaupa,vastavalt akteerimisele ... Rohkem

Kasutaja ikoon ID25865
Pakkuja profiil Väike nool paremale
103 307,5€ Ikoon kell Ei sisalda Ei sisalda 12.03.2011 Vestlus (3)
Kasutaja ikoon ID25944
Pakkuja profiil Väike nool paremale
109 417€ Sisaldab KM Sisaldab KM 01.03.2011 Vestlus (1)

Pakkumise kirjeldus:

Tere ! Hind sisaldab materjali ja tööraha küsitud töödele.85 300eur fassaad,16 920eur katus,7 197eur välisuksed,tuulekoja katused,koridoriaknad.

Kasutaja ikoon ID25984
Pakkuja profiil Väike nool paremale
100 000€ Ei sisalda Ei sisalda 01.03.2011 Vestlus (1)
Kasutaja ikoon ID17833
Pakkuja profiil Väike nool paremale
106 871€ Ei sisalda Ei sisalda 03.03.2011 Vestlus (0)

Pakkumise kirjeldus:

Hind antud fassaaditöödele, ventilatsioonitöödele, katusetöödele! Iga reedesed nõupidamised tööde võtjaga ja tööde tellijaga! Ajagraafik - töö kiirus, materjalide tarne!

Kasutaja ikoon ID25714
Pakkuja profiil Väike nool paremale
25 000€ Sisaldab KM Sisaldab KM 04.03.2011 Vestlus (0)

Pakkumise kirjeldus:

Katuse paigaldus,ilma soojustuseta,vana katuse utiliseerimine,uue katuse paigaldus,matejalid,garantii

Kasutaja ikoon ID9800
Pakkuja profiil Väike nool paremale
82 080€ Sisaldab KM Sisaldab KM 07.03.2011 Vestlus (0)

Pakkumise kirjeldus:

Fassaadi hind. Hinnas kõik materjalid, (tellingud, prügivedu, 150mm soojustus, 2mm polümeer, uued akna plekid jne...) ja tööd.

Kasutaja ikoon ID25484
Pakkuja profiil Väike nool paremale
7 265,7€ Sisaldab KM Sisaldab KM 14.03.2011 Vestlus (0)

Pakkumise kirjeldus:

Tere! Hinnapakkumine on tehtud PVC akende ja rauduste kohta. Tegemist on 5-kambriliste, profiili laius 70mm kvaliteetsete PVC akendega. Samuti sisaldab pakkumine akende/uste paigaldamist, siseviimistlust ja vanade avatäidete utiliseerimist. Parimat!

Kasutaja ikoon ID17605
Pakkuja profiil Väike nool paremale
103 750€ Ei sisalda Ei sisalda 14.03.2011 Vestlus (0)

Pakkumise kirjeldus:

Pakkumine vastavalt kirjeldusele, töö ja materjal koos. Lahtikirjutatuna: Katuse töö: 15900, materjal: 16600. Fassaadi töö: 25600, materjal: 35800, Uksed-aknad, töö: 950, materjal: 3500. Koridori esised katused, töö: 1500, materjal: 900.
Hind sisaldab kogu paketti: vana lammutamine, prahi utiliserimine, koristamine, uued materjalid, tööraha ja ... Rohkem

Kasutaja ikoon ID21245
Pakkuja profiil Väike nool paremale
75 250€ Ei sisalda Ei sisalda 14.03.2011 Vestlus (0)

Pakkumise kirjeldus:

Maksmine etappide alusel, tehtud töö- ja kasutatud materjali eest.
Garantii.

Kasutaja ikoon ID1472
Pakkuja profiil Väike nool paremale
76 150€ Ei sisalda Ei sisalda 14.03.2011 Vestlus (0)

Pakkumise kirjeldus:

Garantii
Etappiline makse

Küsimused hanke korraldajale

Küsimus: private ID25693   15.02.2011 15:53
Tere, mõned küsimused:

Katuse m2?
Katusematerjal ja kas tuleb ka sarikad vahetada?
Kas koridori aknad, uksed on teie poolt?

Parimat!

Teavita reeglite rikkumisest

Korraldaja vastus: 16.02.2011 14:58

Katus on 650 m2. Mõned sarikad peab välja vahetama, kuid üldiselt peaks vanadest veel asja saama.Katuse materjaliks oleks plekk katus.Koridori aknad ja uksed võivad olla ka meie poolt kui ka hanke võitja poolt, oleneb kuidas soodsam tuleb.

Teavita reeglite rikkumisest

Küsimus: private ID25693   15.02.2011 16:01
Veel paar küsimust:

Kas antud fassaadi m2 sisaldavad aknaauke või mitte?
Praht?

Terv!

Teavita reeglite rikkumisest

Korraldaja vastus: 16.02.2011 14:59

Fassaadi m2 ei sisalda aknaauke.

Teavita reeglite rikkumisest

Küsimus: private ID24059   15.02.2011 22:09
Tere. Kas majal kaks trepikoda ja kas oleks võimalik koridori akende ja uste mõõdud? Kas on olemas projekt? Tänan.

Teavita reeglite rikkumisest

Korraldaja vastus: 16.02.2011 15:02

Majal on kolm trepikoda, projekti praegu pole. Uste ja akende mõõdud lisan lähipäevil.

Teavita reeglite rikkumisest

Küsimus: private ID24059   16.02.2011 18:29
Tere veelkord. Kuna pole projekti, siis on võimalus tellida ka soojaaudit. Kui huvi siis lisan selle hilisemasse pakkumisse. Parimat.

Teavita reeglite rikkumisest

Korraldaja vastus: 18.02.2011 20:45

Sooviksin küll soojaauditi pakkumist

Teavita reeglite rikkumisest

Küsimus: private ID25056   18.02.2011 08:52
Tere!
Kas on võialik ka pakkuda ainult fassadi soojustamist ?

Teavita reeglite rikkumisest

Korraldaja vastus: 18.02.2011 17:45

Jah,ainult fassaadi soojustamine sobib ka

Teavita reeglite rikkumisest

Küsimus: private ID25923   21.02.2011 14:52
tere kas oleks võimalik saada täpsemaid andmeid objekti kohta või pilte
saaks palju täpsema pakkumise teha?
ettetänades

Teavita reeglite rikkumisest

Korraldaja vastus:
Hanke korraldaja ei ole küsimusele veel vastanud

Küsimus: private ID24059   22.02.2011 08:32
Tere. Ootaks ikka uste ja akende mõõte. Tänan.

Teavita reeglite rikkumisest

Korraldaja vastus: 26.02.2011 10:14

Keldri ukse laius 85 cm ja , esiku ukse laius 108 cm. Keldri ja esiku ukse kogulaius on 218 cm. Koridori akna laius on 192 cm ja kõrgus 110 cm. Uued aknad võib panna ka kitsamad. Igale koridorile läheb 4 akent, kokku kogu majale 12 akent.

Teavita reeglite rikkumisest

Küsimus: private ID25484   22.02.2011 12:53
Tere!
Kas tegemist on PVC akendega?
Välisuksed - rauduksed?

Teavita reeglite rikkumisest

Korraldaja vastus: 25.02.2011 18:45

Aknad PVC, välisuksed rauduksed

Teavita reeglite rikkumisest

Küsimus: private ID25944   28.02.2011 14:31
Tere,katusepleki paksus ja profiil, mida soovite, kiviprofiil,mis kattega, pural võ pvc.Kui tavaline faltsplekk, siis kas kui paks, kas tavaline 45, või on mingid eri soovid, paksem, kõrgema profiiliga jne.Erinevatel asjadel hinnad pea kahekordsed.

Teavita reeglite rikkumisest

Korraldaja vastus: 03.03.2011 15:10

Katuseks tavaline faltsplekk paksusega 45 mm. Erisoove pole, ainult värv võiks olla hallikat tooni.

Teavita reeglite rikkumisest

Küsimus: private ID25944   03.03.2011 17:56
Tere. Tänan, projektis peaks kajastuma ka koridoriakende lahtikäivad aknad ja varikatuste täpne joonis.

Teavita reeglite rikkumisest

Korraldaja vastus:
Hanke korraldaja ei ole küsimusele veel vastanud

Lisa küsimus

Lisa küsimus

Minu pakkumine

Reeglid

Pakkumise kirjelduse väli on mõeldud pakkumise detailsemaks lahti kirjutamiseks. Pikema teksti mugavaks sisestamiseks klikkige kasti paremal ülaservas oleval ikoonil.
Pakkumist tehes on keelatud postitada enda kontaktandmeid (nimi, telefon, aadress jne). Me jälgime ja analüüsime pakkumisi, et vältida pettuseid ja reeglite rikkumisi.
Rikkumise puhul kasutajakonto blokeeritakse.

 

Teisi töid samas valdkonnas

Valdkonnas "Fassaaditööd" on 12 aktiivset tööd

Puitmaja värvimine

Asukoht: Harjumaa
Aega jäänud: 4p 5h
Tehtud pakkumisi: 21

Eramaja puitfassaadi värvimine

Asukoht: Harjumaa, Lagedi
Aega jäänud: 3p 5h
Tehtud pakkumisi: 8

Vanemad teated:

Vaata kõiki

Sellel veebilehel kasutatakse küpsiseid. Kasutamist jätkates nõustute küpsiste kasutamisega.

Sulge
 
Minu pakkumine

Reeglid

Pakkumise kirjelduse väli on mõeldud pakkumise detailsemaks lahti kirjutamiseks. Pikema teksti mugavaks sisestamiseks klikkige kasti paremal ülaservas oleval ikoonil.
Pakkumist tehes on keelatud postitada enda kontaktandmeid (nimi, telefon, aadress jne). Me jälgime ja analüüsime pakkumisi, et vältida pettuseid ja reeglite rikkumisi.
Rikkumise puhul kasutajakonto blokeeritakse.