+ Lisa oma töö      

Otsid ehitajat "Elektritööd" valdkonnast?

Parima pakkumise ja teostaja leidmiseks lisa oma töö.

Ettevõtte hoonete piksekaitse ehitus.

ID 21979

3499 vaatamist

Prindi

  • check Pakkumiste tegemine
    kuni 24.06.2011
  • check Võitja valik kuni
    01.07.2011
  • 3 Töö teostamine
    ja hinnang
Hanke lõpp: R, 24. juuni, 2011
Maakond: Viljandimaa
Linn: Viljandi
Tööde algus: E, 13. juuni, 2011 (Soovituslik)
Tööde lõpp: E, 04. juuli, 2011 (Soovituslik)
Ehitusmaterjalid: Töö tegija poolt

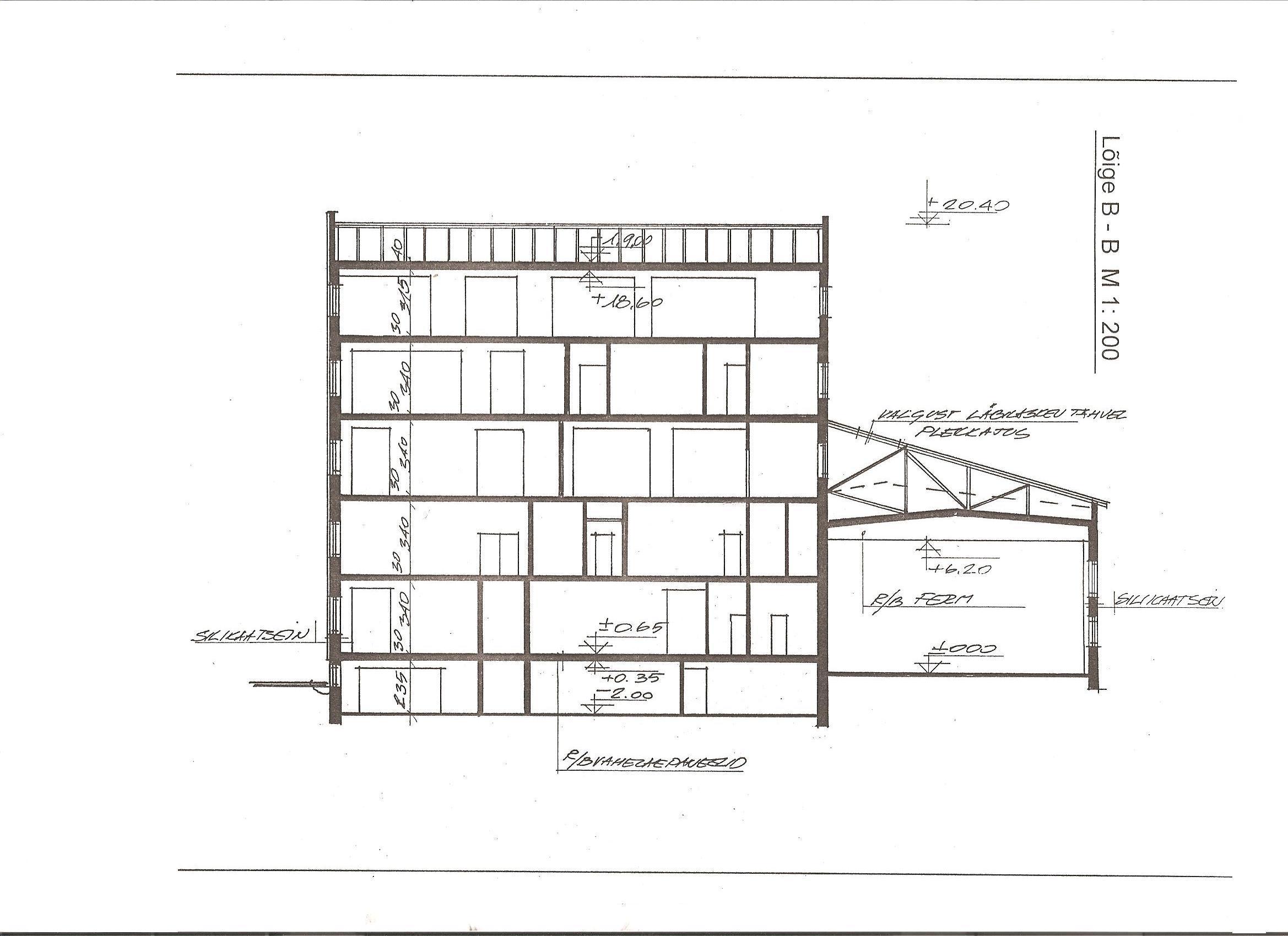
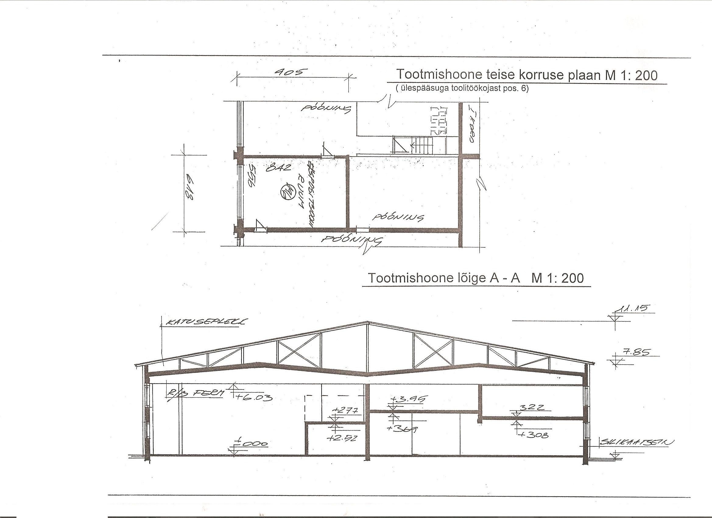
Töö sisu

Tõõstusel on katusepinda ca.10000m2
Plekiga kaetud katusepinda ja muud plekiga kaetud ehitised (kuivatid.punkrid,filtrid)on ca 50%

Pildid, video ja failid

Hanke korraldaja: ettevõte ID26460

Pakkumised

Pakkumisi kokku: 0

Küsimused hanke korraldajale

Küsimus: private ID25583   27.04.2011 12:47
Tere

Kas võimalik hooned ka üle vaadata?

Teavita reeglite rikkumisest

Korraldaja vastus: 27.04.2011 15:18

Firma andmete avalikustamine on reeglite rikkumine.

Teavita reeglite rikkumisest

Küsimus: private ID25583   28.04.2011 08:46
Tere

Siis oleks vaja jooniseid või pilte.

Teavita reeglite rikkumisest

Korraldaja vastus: 02.05.2011 12:46

Lisan siis joonised.

Teavita reeglite rikkumisest

Küsimus: private ID25583   02.05.2011 17:21
See on üks suur hoone, kas kinnistu teistel hoonetel on piksekaitse olemas? Kui nii siis rohkem küs. pole

Teavita reeglite rikkumisest

Korraldaja vastus: 03.05.2011 08:20

Teistel hoonetel on piksekaitse.

Teavita reeglite rikkumisest

Küsimus: private ID26865   07.06.2011 13:41
Tere! kas piksekaitse ehituprojekt on olemas või tuleb see meil ise koostada

Teavita reeglite rikkumisest

Korraldaja vastus: 08.06.2011 08:35

Piksekaitse projekti ei ole.Ehitaja koostab, samuti kooskõlsatused.

Teavita reeglite rikkumisest

Küsimus: private ID8650   22.06.2011 11:19
Tere,
Kas maja jooniseid ka autocad formaadis on ?

Teavita reeglite rikkumisest

Korraldaja vastus:
Hanke korraldaja ei ole küsimusele veel vastanud

Lisa küsimus

Lisa küsimus

Minu pakkumine

Reeglid

Pakkumise kirjelduse väli on mõeldud pakkumise detailsemaks lahti kirjutamiseks. Pikema teksti mugavaks sisestamiseks klikkige kasti paremal ülaservas oleval ikoonil.
Pakkumist tehes on keelatud postitada enda kontaktandmeid (nimi, telefon, aadress jne). Me jälgime ja analüüsime pakkumisi, et vältida pettuseid ja reeglite rikkumisi.
Rikkumise puhul kasutajakonto blokeeritakse.

 

Teisi töid samas valdkonnas

Valdkonnas "Elektritööd" on 5 aktiivset tööd

Vana talu elektrisüsteemi uuendamine (kilp, pistikud, välivalgustus, EV valmidus)

Asukoht: Raplamaa, Suurekivi
Aega jäänud: 1p 6h
Tehtud pakkumisi: 5

Kaablite vahetus paneelmaja korteris ja siseviimistlus

Asukoht: Harjumaa, Tallinn
Aega jäänud: 6p 6h
Tehtud pakkumisi: 4

Vanemad teated:

Vaata kõiki

Sellel veebilehel kasutatakse küpsiseid. Kasutamist jätkates nõustute küpsiste kasutamisega.

Sulge
 
Minu pakkumine

Reeglid

Pakkumise kirjelduse väli on mõeldud pakkumise detailsemaks lahti kirjutamiseks. Pikema teksti mugavaks sisestamiseks klikkige kasti paremal ülaservas oleval ikoonil.
Pakkumist tehes on keelatud postitada enda kontaktandmeid (nimi, telefon, aadress jne). Me jälgime ja analüüsime pakkumisi, et vältida pettuseid ja reeglite rikkumisi.
Rikkumise puhul kasutajakonto blokeeritakse.