+ Lisa oma töö      

Otsid ehitajat "Katusetööd" valdkonnast?

Parima pakkumise ja teostaja leidmiseks lisa oma töö.

Hange on lõppenud!

Võitjaks osutus kasutaja ID 22581

Lamekatuse ehitus

ID 22159

7585 vaatamist

Prindi

  • check Pakkumiste tegemine
    kuni 22.05.2011
  • check Võitja valik kuni
    29.05.2011
  • 3 Töö teostamine
    ja hinnang
Hanke lõpp: P, 22. mai, 2011
Maakond: Harjumaa
Tööde algus: E, 06. juuni, 2011 (Soovituslik)
Tööde lõpp: N, 30. juuni, 2011 (Soovituslik)
Ehitusmaterjalid: Töö tellija poolt

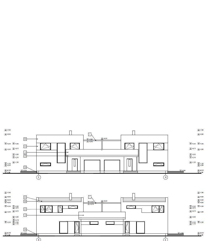
Töö sisu

Vaja ehitada paarismaja katus, garaazi katus. Katuse alusmaterjal on betoon paneel (olemas). Paigaldada tuleb aurutõke, roov, Penoplast 300mm, moodustada katusekalle 2 kraadi, räästas ehitada (ühele küljele), parapetid, SBS aluskate / pinnakate.
Katuse pind kokku 260 m2, sellest 100 m2 tuleb katta terassilauaga. Kõik materjalid Tellija poolt. Võib ka ehitajaga katuseristlõike eelnevalt kokku leppida (kahjuks hetkel selline joonis puudub).

Pildid, video ja failid

Hanke korraldaja: eraisik ID2400

Pakkumised

Pakkumisi kokku: 4

Ettevõte Summa Käibemaks Lisatud Vestlus
Kasutaja ikoon ID8781
Pakkuja profiil Väike nool paremale
2 000€ Ei sisalda Ei sisalda 18.05.2011 Vestlus (0)
Kasutaja ikoon ID22581
Pakkuja profiil Väike nool paremale
3 000€ Sisaldab KM Sisaldab KM 22.05.2011 Vestlus (0)

Pakkumise kirjeldus:

Hinnapakkumisel on arvestatud parapettide ja räästaste tegemisega ja katuse soojustamise ja katmisega spsiga,ning terassi valmistamisega.Kogu materjal tellijalt.

Kasutaja ikoon ID9973
Pakkuja profiil Väike nool paremale
3 195€ Ei sisalda Ei sisalda 22.05.2011 Vestlus (0)

Pakkumise kirjeldus:

Tööraha kõikidele hankes kirieldatud töödele. Tasumine etapiliselt vastavalt tehtud tööle. Tingimused kokkuleppel.

Kasutaja ikoon ID21245
Pakkuja profiil Väike nool paremale
1 920€ Ei sisalda Ei sisalda 22.05.2011 Vestlus (0)

Küsimused hanke korraldajale

Küsimus: private ID11144   16.05.2011 09:27
Tere. Kas terrassilauaga katmise eesmärk on katuse igapäevane kasutamine terrassina?

Teavita reeglite rikkumisest

Korraldaja vastus: 16.05.2011 16:42

Tere! Just, soov oleks 100m2 katusepinnast kasutada ka terassina. Esimese korruse katus (garaazidel 100m2). Teise korruse katus on 160m2. Kokku katusepinda 260m2

Teavita reeglite rikkumisest

Küsimus: private ID22581   19.05.2011 22:08
Kas tuleb tuulduv parapett,räästa konstruksioon on olemas või tuleb teha ja terassi alusel katusel tuleb sbs osb peale et tugevam jääks.

Teavita reeglite rikkumisest

Korraldaja vastus: 20.05.2011 13:35

Tuulduv jah, räästa konstruktsiooni ei ole, just- osb ja siis sbs

Teavita reeglite rikkumisest

Lisa küsimus

Lisa küsimus

Minu pakkumine

Reeglid

Pakkumise kirjelduse väli on mõeldud pakkumise detailsemaks lahti kirjutamiseks. Pikema teksti mugavaks sisestamiseks klikkige kasti paremal ülaservas oleval ikoonil.
Pakkumist tehes on keelatud postitada enda kontaktandmeid (nimi, telefon, aadress jne). Me jälgime ja analüüsime pakkumisi, et vältida pettuseid ja reeglite rikkumisi.
Rikkumise puhul kasutajakonto blokeeritakse.

 

Teisi töid samas valdkonnas

Valdkonnas "Katusetööd" on 14 aktiivset tööd

Katusekatte vahetus

Asukoht: Võrumaa, Tsolgo
Aega jäänud: 7p 4h
Tehtud pakkumisi: 6

Katuse vahetus uue eterniidi vastu

Asukoht: Harjumaa, Viimsi
Aega jäänud: 6p 4h
Tehtud pakkumisi: 6

Vanemad teated:

Vaata kõiki

Sellel veebilehel kasutatakse küpsiseid. Kasutamist jätkates nõustute küpsiste kasutamisega.

Sulge
 
Minu pakkumine

Reeglid

Pakkumise kirjelduse väli on mõeldud pakkumise detailsemaks lahti kirjutamiseks. Pikema teksti mugavaks sisestamiseks klikkige kasti paremal ülaservas oleval ikoonil.
Pakkumist tehes on keelatud postitada enda kontaktandmeid (nimi, telefon, aadress jne). Me jälgime ja analüüsime pakkumisi, et vältida pettuseid ja reeglite rikkumisi.
Rikkumise puhul kasutajakonto blokeeritakse.