+ Lisa oma töö      

Otsid ehitajat "Plaatimistööd" valdkonnast?

Parima pakkumise ja teostaja leidmiseks lisa oma töö.

Eramu põrandate ja seinte plaatimistööd Tartus

ID 22193

3377 vaatamist

Prindi

  • check Pakkumiste tegemine
    kuni 31.05.2011
  • check Võitja valik kuni
    07.06.2011
  • 3 Töö teostamine
    ja hinnang
Hanke lõpp: T, 31. mai, 2011
Maakond: Tartumaa
Linn: Tartu
Tööde algus: E, 13. juuni, 2011 (Soovituslik)
Tööde lõpp: N, 23. juuni, 2011 (Soovituslik)
Ehitusmaterjalid: Töö tegija poolt

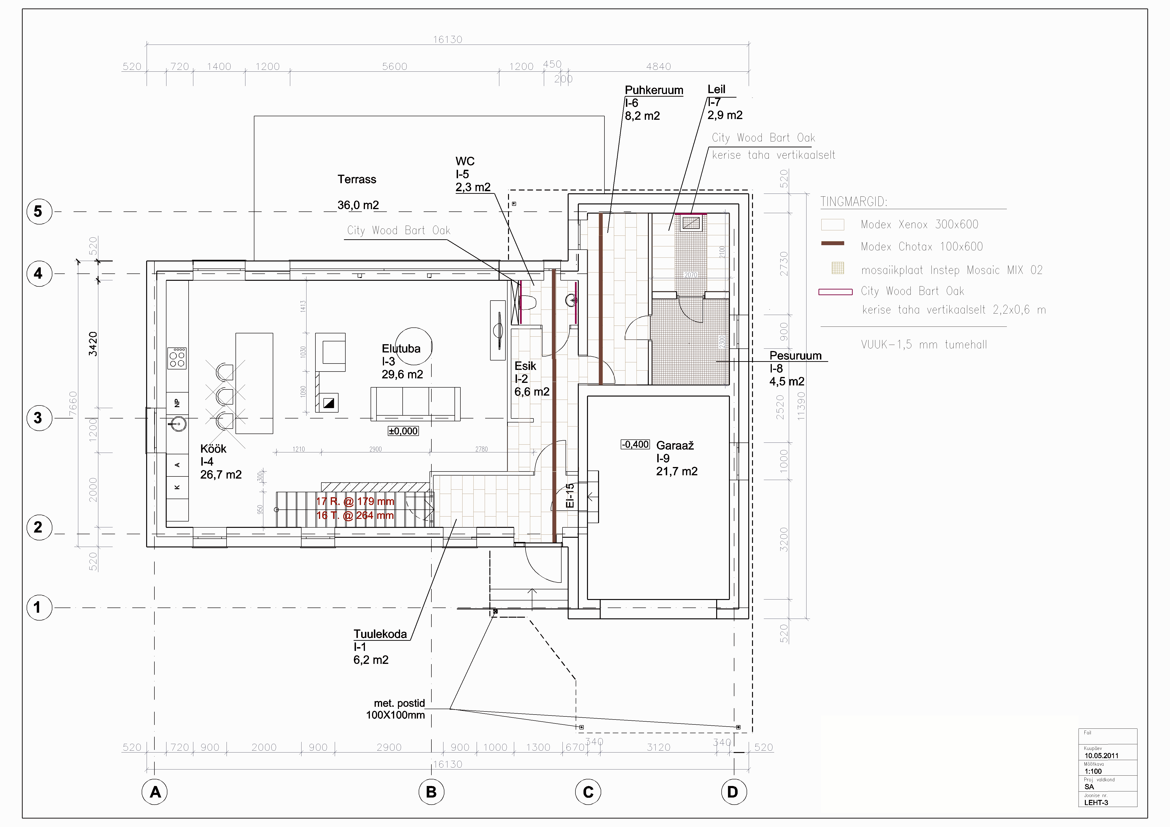
Töö sisu

Niisketes ruumides tuleks teostada ka hüdroisolatsiooni/niiskustõkke tööd.

Plaadid tuleks paigaldada lisatud plaatimise joonistel toodud viisil ja mahus.

Pakkumises tuua välja, et millal saaksite töödega alustada ja kui kaua töö aega võiks võtta.

NB! Plaadid tarnib tellija ning kõik muud vajalikud materjalid töövõtja.

Pildid, video ja failid

Hanke korraldaja: eraisik ID25976

Pakkumised

Pakkumisi kokku: 2

Ettevõte Summa Käibemaks Lisatud Vestlus
Kasutaja ikoon ID2688
Pakkuja profiil Väike nool paremale
16€ Ei sisalda Ei sisalda 26.05.2011 Vestlus (1)
Kasutaja ikoon ID26713
Pakkuja profiil Väike nool paremale
1 020€ Ei sisalda Ei sisalda 31.05.2011 Vestlus (0)

Pakkumise kirjeldus:

Etteantud jooniste järgi kalkuleerides saime tulemuseks: 1. vannituba (plaaditav pind 35m2, hüdroisolatsioon 35m2), 2. pesuruum (plaaditav pind 21m2, hüdroisolatsioon 21m2), 3. wc (plaaditav pind 5m2, hüdroisolatsioon 0m2), 4. I-korruse põrand (plaaditav pind 31m2, hüdroisolatsioon 8m2), seega plaaditavaid pindu kokku 92m2 ja neist hüdroisolatsiooniga ... Rohkem

Küsimused hanke korraldajale

Küsimus: private ID25436   17.05.2011 20:29
Tere,
Millised on põrandate aluspinnad, kas on vaja kasutada peentasandust?

Teavita reeglite rikkumisest

Korraldaja vastus: 17.05.2011 21:16

Ma ei ole selle ala ekspert. Kas küsimus on selles, et kas põrandad on hästi valatud või mitte? Ma arvan, et on väga hästi valatud koos kallete jms äravoolude suhtes. Või on peentasandust mingil muul põhjusel vaja?

Teavita reeglite rikkumisest

Lisa küsimus

Lisa küsimus

Minu pakkumine

Reeglid

Pakkumise kirjelduse väli on mõeldud pakkumise detailsemaks lahti kirjutamiseks. Pikema teksti mugavaks sisestamiseks klikkige kasti paremal ülaservas oleval ikoonil.
Pakkumist tehes on keelatud postitada enda kontaktandmeid (nimi, telefon, aadress jne). Me jälgime ja analüüsime pakkumisi, et vältida pettuseid ja reeglite rikkumisi.
Rikkumise puhul kasutajakonto blokeeritakse.

 

Teisi töid samas valdkonnas

Valdkonnas "Plaatimistööd" on 2 aktiivset tööd

Trepikoja plaatimine

Asukoht: Tartumaa, Ülenurme
Aega jäänud: 4p 9h
Tehtud pakkumisi: 2

Pesuruumi plaatimine 12.6 m2

Asukoht: Tartumaa, Teedla
Aega jäänud: 1p 9h
Tehtud pakkumisi: 0

Vanemad teated:

Vaata kõiki

Sellel veebilehel kasutatakse küpsiseid. Kasutamist jätkates nõustute küpsiste kasutamisega.

Sulge
 
Minu pakkumine

Reeglid

Pakkumise kirjelduse väli on mõeldud pakkumise detailsemaks lahti kirjutamiseks. Pikema teksti mugavaks sisestamiseks klikkige kasti paremal ülaservas oleval ikoonil.
Pakkumist tehes on keelatud postitada enda kontaktandmeid (nimi, telefon, aadress jne). Me jälgime ja analüüsime pakkumisi, et vältida pettuseid ja reeglite rikkumisi.
Rikkumise puhul kasutajakonto blokeeritakse.