+ Lisa oma töö      

Otsid ehitajat "Kanalisatsioonitööd" valdkonnast?

Parima pakkumise ja teostaja leidmiseks lisa oma töö.

Horistonaalse kanalisatsioonitrassi vahetus

ID 22482

4137 vaatamist

Prindi

  • check Pakkumiste tegemine
    kuni 29.06.2011
  • check Võitja valik kuni
    06.07.2011
  • 3 Töö teostamine
    ja hinnang
Hanke lõpp: K, 29. juuni, 2011
Maakond: Harjumaa
Linn: Tallinn
Tööde algus: E, 08. august, 2011 (Soovituslik)
Tööde lõpp: R, 12. august, 2011 (Soovituslik)
Ehitusmaterjalid: Töö tegija poolt

Töö sisu

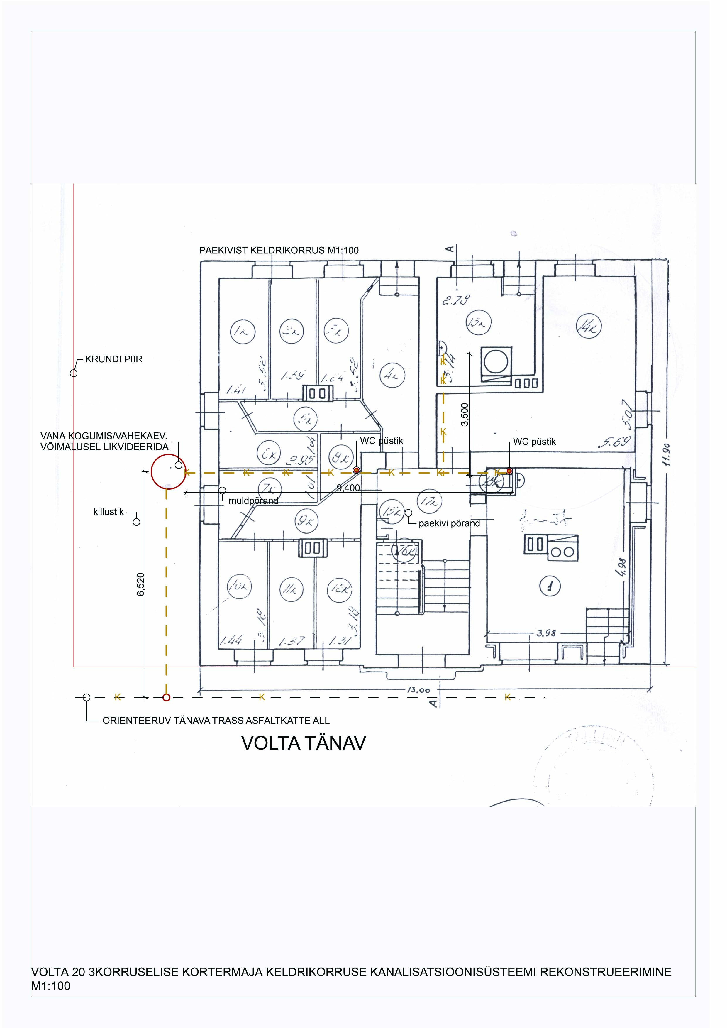
On 3 kordne eestiaegne puitmaja, millel oleks vaja vahetada keldris asuvad horisontaalsihis kanalisatsioonitorud kuna see kipub ummistuma ja on ka katki kohati. Hoovis on vahekaev, mis ajab aegajalt üle ja selle peaks uue panema.
Lisan ka skeemi.
Tahaksin hinnapakkumist:
-kaevuni
-kaevust tänaval oleva liitumispunktini
-vertikaalsete püstikute vahetamiseks.
Vaja on kaevust tänavani olevate torude survepesu ja uurimine, et kas see toru veel kestab või vajaks vahetust. hoovis on killustik maas ja tänaval asfalt.

Pildid, video ja failid

Hanke korraldaja: eraisik ID26929

Pakkumised

Pakkumisi kokku: 1

Ettevõte Summa Käibemaks Lisatud Vestlus
Kasutaja ikoon ID1545
Pakkuja profiil Väike nool paremale
25€ Ei sisalda Ei sisalda 16.06.2011 Vestlus (0)

Pakkumise kirjeldus:

Tere. Keldri põrandasisesed torustikud kuni püstikuteni keldri lae all - ca. 25 eur/m. (ei sisalda põrandakatte taastamist - betoon vms.) Hoovisisene välistrass - ca. 80 - 100 eur/m. Kaev ca. 200 eur/tk. (ei sisalda pinnakatete - asfalt, kiviparkett vms. taastamist). Kinnistuväline lõik kuni liitumispunktini vajab veel enamgi ülevaatamist/täpsustamis ... Rohkem

Küsimused hanke korraldajale

Hanke korraldajale ei ole veel küsimusi esitatud.

Lisa küsimus

Lisa küsimus

Minu pakkumine

Reeglid

Pakkumise kirjelduse väli on mõeldud pakkumise detailsemaks lahti kirjutamiseks. Pikema teksti mugavaks sisestamiseks klikkige kasti paremal ülaservas oleval ikoonil.
Pakkumist tehes on keelatud postitada enda kontaktandmeid (nimi, telefon, aadress jne). Me jälgime ja analüüsime pakkumisi, et vältida pettuseid ja reeglite rikkumisi.
Rikkumise puhul kasutajakonto blokeeritakse.

 

Teisi töid samas valdkonnas

Valdkonnas "Kanalisatsioonitööd" on 2 aktiivset tööd

Kaevetööd, 8 m³ kogumismahuti paigaldus ja trassid - Juminda küla

Asukoht: Harjumaa, Juminda
Aega jäänud: 6p 9h
Tehtud pakkumisi: 0

no-img Pilt puudub

Veevarustuse- ja kanalisatsiooniinsener, tase 6 MTR registreering

Asukoht: Pärnumaa, Pärnu
Aega jäänud: 12p 9h
Tehtud pakkumisi: 0

Vanemad teated:

Vaata kõiki

Sellel veebilehel kasutatakse küpsiseid. Kasutamist jätkates nõustute küpsiste kasutamisega.

Sulge
 
Minu pakkumine

Reeglid

Pakkumise kirjelduse väli on mõeldud pakkumise detailsemaks lahti kirjutamiseks. Pikema teksti mugavaks sisestamiseks klikkige kasti paremal ülaservas oleval ikoonil.
Pakkumist tehes on keelatud postitada enda kontaktandmeid (nimi, telefon, aadress jne). Me jälgime ja analüüsime pakkumisi, et vältida pettuseid ja reeglite rikkumisi.
Rikkumise puhul kasutajakonto blokeeritakse.