+ Lisa oma töö      

Otsid ehitajat "Põrandatööd" valdkonnast?

Parima pakkumise ja teostaja leidmiseks lisa oma töö.

Betoonpõrand

ID 2274

5006 vaatamist

Prindi

  • check Pakkumiste tegemine
    kuni 22.09.2006
  • check Võitja valik kuni
    29.09.2006
  • 3 Töö teostamine
    ja hinnang
Hanke lõpp: R, 22. september, 2006
Maakond: Harjumaa
Linn: Tallinn
Tööde algus: P, 01. oktoober, 2006 (Soovituslik)
Tööde lõpp: L, 14. oktoober, 2006 (Soovituslik)
Ehitusmaterjalid: Töö tegija poolt

Töö sisu

Sooviks pakkumisi betoonpõranda algusest lõpuni tegemisest.Hetkel keldris muldpõrand - soov:soklikorrus elamiseks välja ehitada.Ehk põrandasse vesipõranda torustik ja kõik sinna juurdekuuluv.Tänan

Pildid, video ja failid

Hanke korraldaja: eraisik ID3107

Pakkumised

Pakkumisi kokku: 4

Ettevõte Summa Käibemaks Lisatud Vestlus
Kasutaja ikoon ID1802
Pakkuja profiil Väike nool paremale
2 978,3€ Sisaldab KM Sisaldab KM 15.09.2006 Vestlus (0)
Kasutaja ikoon ID1055
Pakkuja profiil Väike nool paremale
2 876,0€ Sisaldab KM Sisaldab KM 16.09.2006 Vestlus (0)
Kasutaja ikoon ID1514
Pakkuja profiil Väike nool paremale
2 748,2€ Sisaldab KM Sisaldab KM 20.09.2006 Vestlus (0)
Kasutaja ikoon ID2933
Pakkuja profiil Väike nool paremale
1 917,4€ Sisaldab KM Sisaldab KM 22.09.2006 Vestlus (0)

Pakkumise kirjeldus:

ainult tööraha materjalid sinupoolt

Küsimused hanke korraldajale

Küsimus: private ID1802   15.09.2006 15:52
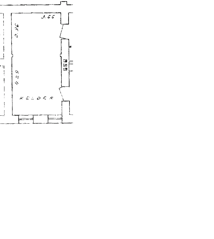
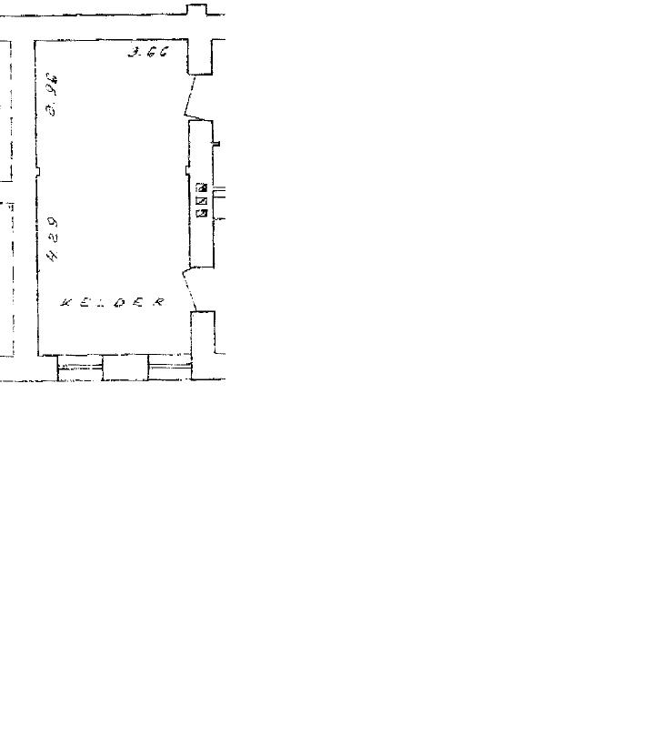
kui suure pinnaga on tegu?juuresolevalt jooniselt ei loe välja

Teavita reeglite rikkumisest

Korraldaja vastus: 10.05.2026 02:17

panin pinna suuruse pildi (joonise)pealkirjaks - see on 27,5 m*

Teavita reeglite rikkumisest

Lisa küsimus

Lisa küsimus

Minu pakkumine

Reeglid

Pakkumise kirjelduse väli on mõeldud pakkumise detailsemaks lahti kirjutamiseks. Pikema teksti mugavaks sisestamiseks klikkige kasti paremal ülaservas oleval ikoonil.
Pakkumist tehes on keelatud postitada enda kontaktandmeid (nimi, telefon, aadress jne). Me jälgime ja analüüsime pakkumisi, et vältida pettuseid ja reeglite rikkumisi.
Rikkumise puhul kasutajakonto blokeeritakse.

 

Teisi töid samas valdkonnas

Valdkonnas "Põrandatööd" on 2 aktiivset tööd

Talumaja põrandate valamine/ehitus koos küttetorustiku paigaldusega

Asukoht: Raplamaa, Purila
Aega jäänud: 16p 21h
Tehtud pakkumisi: 2

Põrandakütte paigaldus ja põrandavalu (kips või betoon)

Asukoht: Saaremaa, Muhu vald
Aega jäänud: 21h 42 min
Tehtud pakkumisi: 1

Vanemad teated:

Vaata kõiki

Sellel veebilehel kasutatakse küpsiseid. Kasutamist jätkates nõustute küpsiste kasutamisega.

Sulge
 
Minu pakkumine

Reeglid

Pakkumise kirjelduse väli on mõeldud pakkumise detailsemaks lahti kirjutamiseks. Pikema teksti mugavaks sisestamiseks klikkige kasti paremal ülaservas oleval ikoonil.
Pakkumist tehes on keelatud postitada enda kontaktandmeid (nimi, telefon, aadress jne). Me jälgime ja analüüsime pakkumisi, et vältida pettuseid ja reeglite rikkumisi.
Rikkumise puhul kasutajakonto blokeeritakse.