+ Lisa oma töö      

Otsid ehitajat "Katusetööd" valdkonnast?

Parima pakkumise ja teostaja leidmiseks lisa oma töö.

Hange on lõppenud!

Võitjaks osutus kasutaja ID 9973

Korraldaja hinnang tehtud tööle

5.0
29.11.2011
Töökiirus: 12345
Kvaliteet: 12345
Hind: 12345

Väga hea töö. Soovitan tugevalt. - Urmas P.

Katusekonstruktsiooni ehitamine

ID 22819

8230 vaatamist

Prindi

  • check Pakkumiste tegemine
    kuni 02.08.2011
  • check Võitja valik kuni
    09.08.2011
  • 3 Töö teostamine
    ja hinnang
Hanke lõpp: T, 2. august, 2011
Maakond: Harjumaa
Linn: Tallinn
Tööde algus: E, 22. august, 2011 (Soovituslik)
Tööde lõpp: E, 05. september, 2011 (Soovituslik)
Ehitusmaterjalid: Töö tellija poolt

Töö sisu

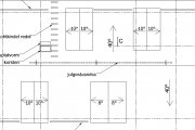
Hanke objektiks on uue eramu katusekonstruktsiooni ehitamine, mis sisaldab sarikate ehitust ja paigaldust. Eramu esimese korruse (Aeroc) peale on valatud betoonist vahelagi ja katusekonstruktsioon kinnitub ankurpoltidega. Eramu asub Tallinnas, Nõmmel.
Katusekorrusele on ette nähtud 4 vintskappi ja katusekonstruktsioon tuleb vastavalt ehitada. Hankele on lisatud 3 dokumenti katusekonstruktsiooni kirjeldamiseks. Hanke võitja saab projekti joonised .dwg formaadis ja prindituna.
Hanke maksumus peab sisaldama katusekonstruktsiooni ehitustööde maksumust. Ehitusmaterjalid on hanke korraldaja ehk Tellija poolt. Pakkuja võib pakkuda ehitusmaterjale, kuid peab sel juhul nende maksumuse eraldi välja tooma. Kui pakkuja ehitusmaterjalid on märgatavalt odavamad kui tavatootjal (nt. Raitwood vms.), siis annab see Pakkujale eelise võrreldes teiste pakkujatega. Tellijaks on eraisik.
Kui Pakkujal on pädevus plekk-katuste paigaldamiseks, siis palun pakkuda tööde maksumus plekk-katuse (Ruukki Classic) paigaldamiseks. Kõik vajalikud roovitusmaterjalid, aluskattematerjalid, kinnitusvahendid, katuseplekk jms. materjalid on tellija poolt.
Tööde teostamise aeg on ette nähtud augusti teine pool käesoleval aastal.
Pakkujal peab olema küllaldane kogemus analoogsete tööde teostamisel.

1. Hinnapakkumine PEAB sisaldama katusekonstruktsiooni ehitustööde makusmust.

2. Hinnapakkumine VÕIB sisaldada katusekonstruktsiooni ehituseks vajaliku puitmaterjali maksumust (jm või tm maksumus koos transpordiga).

3. Hinnapakkumine VÕIB sisaldada katuse lõpuni ehitamist (ainult ehitustööd), katuse aluse paigaldus ja katusepleki paigaldus 250m2 koos liiteplekkide paigaldusega. Ei sisalda katusealuseid töid (soojustus vms.)

Pildid, video ja failid

Hanke korraldaja: eraisik ID23894

Pakkumised

Pakkumisi kokku: 2

Ettevõte Summa Käibemaks Lisatud Vestlus
Kasutaja ikoon ID9973
Pakkuja profiil Väike nool paremale
4 470€ Ei sisalda Ei sisalda 02.08.2011 Vestlus (0)

Pakkumise kirjeldus:

Hind sisaldab sarikate tegemist, paigaldust koos kõige sinna juurde kuuluvaga sammuti aluskatte, tstansliistu, roovi, roovi rihtimist, pleki paigaldust. Tasumine peale töö valmimist. Tingimused kokkuleppel.

Kasutaja ikoon ID26518
Pakkuja profiil Väike nool paremale
6 980€ Ei sisalda Ei sisalda 02.08.2011 Vestlus (0)

Pakkumise kirjeldus:

Hind karkass, aluskate, roov, plekk ja tarvikud, koos paigaldusega ( ehk siis valmiskatus )

Küsimused hanke korraldajale

Hanke korraldajale ei ole veel küsimusi esitatud.

Lisa küsimus

Lisa küsimus

Minu pakkumine

Reeglid

Pakkumise kirjelduse väli on mõeldud pakkumise detailsemaks lahti kirjutamiseks. Pikema teksti mugavaks sisestamiseks klikkige kasti paremal ülaservas oleval ikoonil.
Pakkumist tehes on keelatud postitada enda kontaktandmeid (nimi, telefon, aadress jne). Me jälgime ja analüüsime pakkumisi, et vältida pettuseid ja reeglite rikkumisi.
Rikkumise puhul kasutajakonto blokeeritakse.

 

Teisi töid samas valdkonnas

Valdkonnas "Katusetööd" on 2 aktiivset tööd

Katusevahetus ja soojustamine

Asukoht: Viljandimaa, Viljandi
Aega jäänud: 2p 3h
Tehtud pakkumisi: 9

Kivikatuse lõpetamine

Asukoht: Valgamaa, Karjatnurme
Aega jäänud: 6p 3h
Tehtud pakkumisi: 5

Vanemad teated:

Vaata kõiki

Sellel veebilehel kasutatakse küpsiseid. Kasutamist jätkates nõustute küpsiste kasutamisega.

Sulge
 
Minu pakkumine

Reeglid

Pakkumise kirjelduse väli on mõeldud pakkumise detailsemaks lahti kirjutamiseks. Pikema teksti mugavaks sisestamiseks klikkige kasti paremal ülaservas oleval ikoonil.
Pakkumist tehes on keelatud postitada enda kontaktandmeid (nimi, telefon, aadress jne). Me jälgime ja analüüsime pakkumisi, et vältida pettuseid ja reeglite rikkumisi.
Rikkumise puhul kasutajakonto blokeeritakse.