+ Lisa oma töö      

Otsid ehitajat "Ehituse peatöövõtt" valdkonnast?

Parima pakkumise ja teostaja leidmiseks lisa oma töö.

0.korruse soojustuse ja drenaaži rajamine

ID 22924

7619 vaatamist

Prindi

  • check Pakkumiste tegemine
    kuni 22.08.2011
  • check Võitja valik kuni
    29.08.2011
  • 3 Töö teostamine
    ja hinnang
Hanke lõpp: E, 22. august, 2011
Maakond: Harjumaa
Muu asula: Kose-Uuemõisa
Tööde algus: K, 31. august, 2011 (Soovituslik)
Tööde lõpp: E, 31. oktoober, 2011 (Soovituslik)
Ehitusmaterjalid: Töö tegija poolt

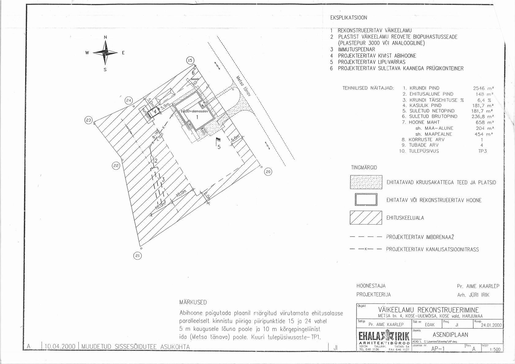
Töö sisu

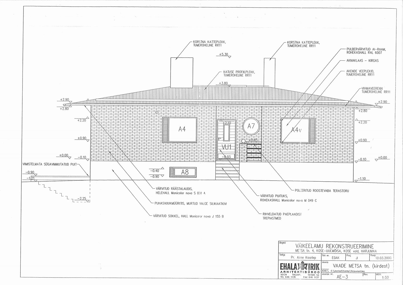
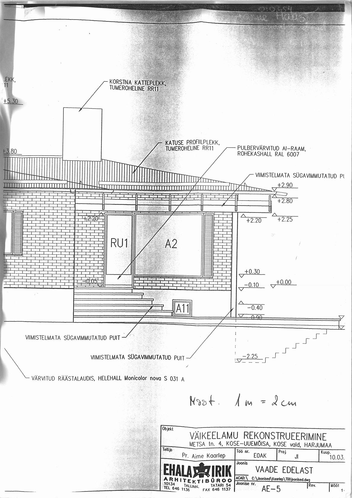
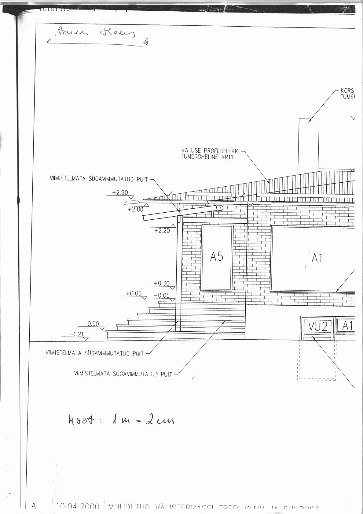
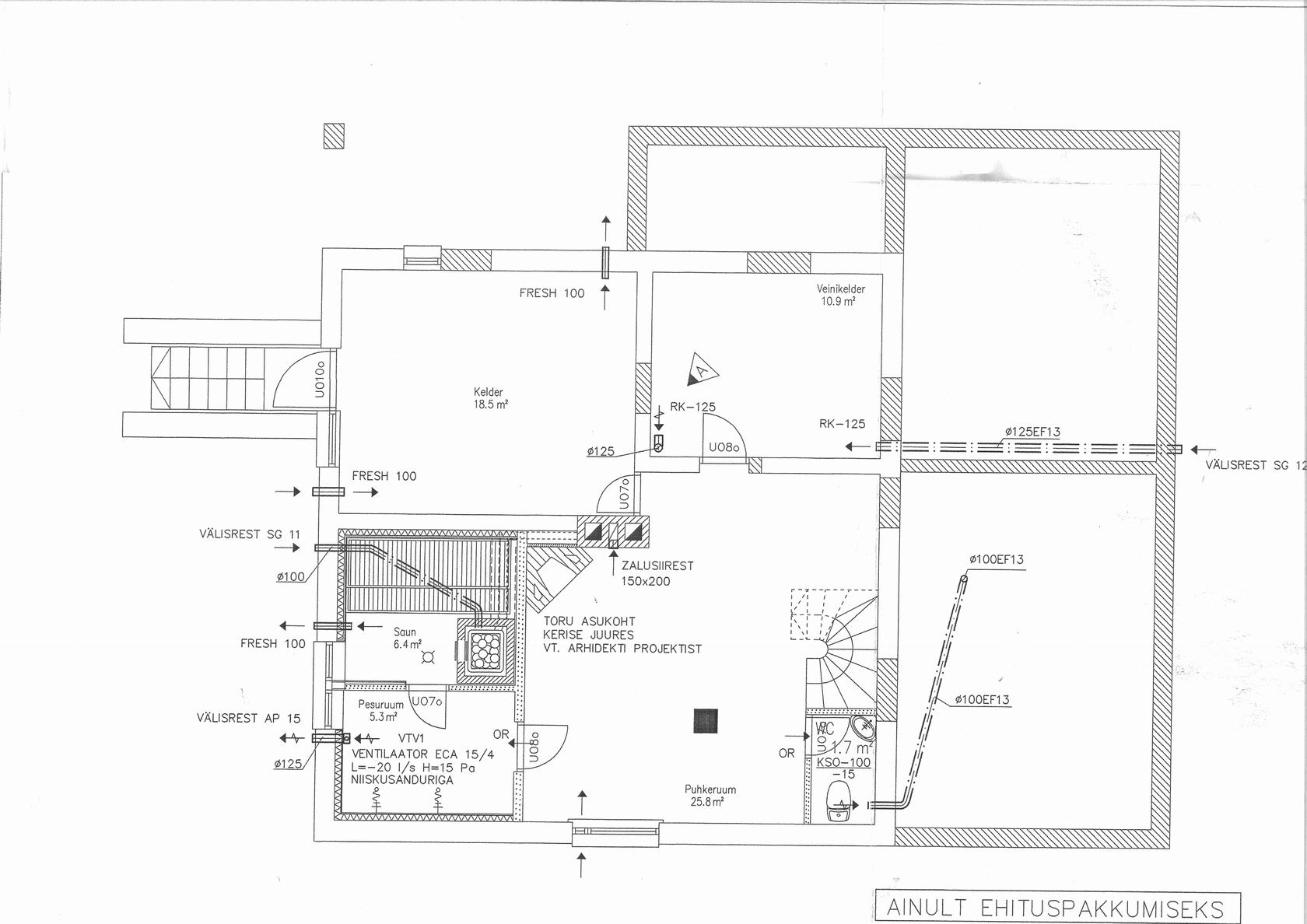
Objekt on eramaja Kose-Uuemõisas. Ehitatud aastal 2000 vana vundamendi peale.

Põhiülesanded:
*0.korruse soojustamine
*Maja ümber drenaaži rajamine
Kaasnevad ülesanded:
*Unikivi osaline paigaldus
*Puidust terrassi ehitamine
*Haljastuse taastamine

Lisatud joonised.

Pildid, video ja failid

Hanke korraldaja: eraisik ID27316

Pakkumised

Pakkumisi kokku: 1

Ettevõte Summa Käibemaks Lisatud Vestlus
Kasutaja ikoon ID27231
Pakkuja profiil Väike nool paremale
12 700€ Ei sisalda Ei sisalda 12.08.2011 Vestlus (0)

Pakkumise kirjeldus:

Hind sisaldab vajamineva materjali ning ka tehtavate tööde maksumuse.

Küsimused hanke korraldajale

Hanke korraldajale ei ole veel küsimusi esitatud.

Lisa küsimus

Lisa küsimus

Minu pakkumine

Reeglid

Pakkumise kirjelduse väli on mõeldud pakkumise detailsemaks lahti kirjutamiseks. Pikema teksti mugavaks sisestamiseks klikkige kasti paremal ülaservas oleval ikoonil.
Pakkumist tehes on keelatud postitada enda kontaktandmeid (nimi, telefon, aadress jne). Me jälgime ja analüüsime pakkumisi, et vältida pettuseid ja reeglite rikkumisi.
Rikkumise puhul kasutajakonto blokeeritakse.

 

Vanemad teated:

Vaata kõiki

Sellel veebilehel kasutatakse küpsiseid. Kasutamist jätkates nõustute küpsiste kasutamisega.

Sulge
 
Minu pakkumine

Reeglid

Pakkumise kirjelduse väli on mõeldud pakkumise detailsemaks lahti kirjutamiseks. Pikema teksti mugavaks sisestamiseks klikkige kasti paremal ülaservas oleval ikoonil.
Pakkumist tehes on keelatud postitada enda kontaktandmeid (nimi, telefon, aadress jne). Me jälgime ja analüüsime pakkumisi, et vältida pettuseid ja reeglite rikkumisi.
Rikkumise puhul kasutajakonto blokeeritakse.