+ Lisa oma töö      

Otsid ehitajat "Vundamenditööd" valdkonnast?

Parima pakkumise ja teostaja leidmiseks lisa oma töö.

Vundamenditööd

ID 22957

4658 vaatamist

Prindi

  • check Pakkumiste tegemine
    kuni 24.08.2011
  • check Võitja valik kuni
    31.08.2011
  • 3 Töö teostamine
    ja hinnang
Hanke lõpp: K, 24. august, 2011
Maakond: Põlvamaa
Linn: Räpina
Tööde algus: K, 10. august, 2011 (Soovituslik)
Tööde lõpp: R, 30. september, 2011 (Soovituslik)
Ehitusmaterjalid: Töö tegija poolt

Töö sisu

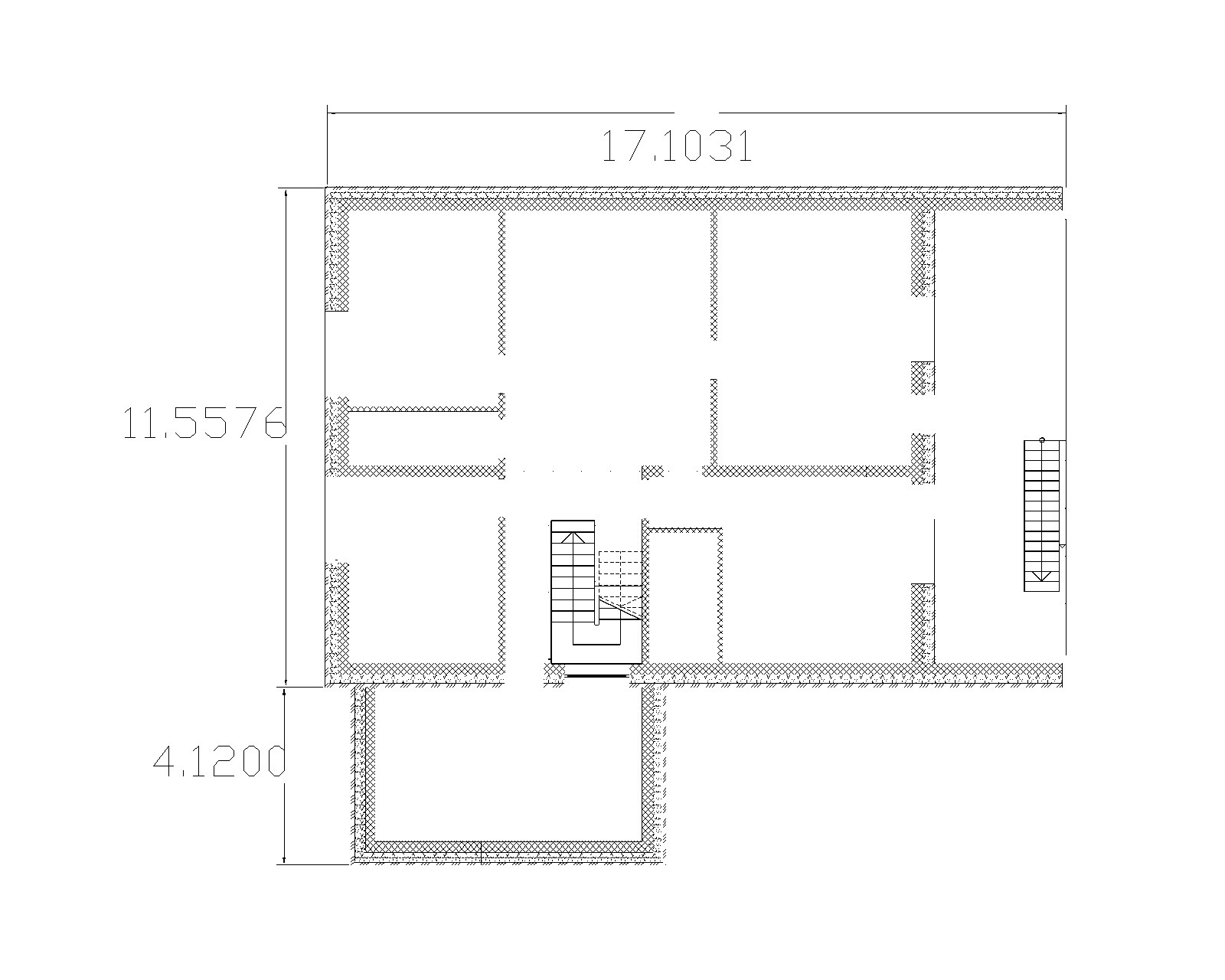
Vaja valada hoonetele vundamendid koos soojustuse ja sinna juurde kuuluvate töödega. Projektid lisatud hankesse.
Lisaküsimused teretulnud.

Pildid, video ja failid

Hanke korraldaja: eraisik ID27356

Pakkumised

Pakkumisi kokku: 1

Ettevõte Summa Käibemaks Lisatud Vestlus
Kasutaja ikoon ID27092
Pakkuja profiil Väike nool paremale
12 300€ Ei sisalda Ei sisalda 24.08.2011 Vestlus (9)

Pakkumise kirjeldus:

Tere,meie plaan oleks järgmine teile

1.Vundamendi lindi süvendamine
2.killustikpadja vormistus
3.aluspadja valamine 15*40
4.fiboploki ladumine Tootega MP5 tugevus ja 250mm
5.lindisisene tagasitäide ja välistäide
6.vundamendi katmine pealt penoplastiga ja armeerimine 12mm armatuuriga
7.vundamendi valamine raudbetooniga
8.vindamendi välisseinte ... Rohkem

Küsimused hanke korraldajale

Küsimus: private ID27039   13.08.2011 23:15
Tere! Aga mingit infot oleks ju vaja pakkumise tegemiseks- mingid mõõdud ,mis materjale kasutatakse

Teavita reeglite rikkumisest

Korraldaja vastus: 15.08.2011 08:16

Tere. Lisasin pilte
Eelistan betooni raud osadega ja arv et mingi armatuur peaks ka sees olema

Teavita reeglite rikkumisest

Küsimus: private ID27039   15.08.2011 17:57
kas hetkel on mingi osas vundamendist olemas osadel hoonetest? Milline on maapind? Vaatsin,et garaaz ja saun olid rekonstrueeritavad hooned. ehk oleks odavam ja lihtsam teha nö madalvundament - betoonist vundamendi taldmik ja siis 4 rida fibo 5-st peale laduda,panna horisontaalne ja vertikaalne soojustus. Või on Teil projektis ettenähtud kuidas teha?

Teavita reeglite rikkumisest

Korraldaja vastus: 15.08.2011 18:58

osaline vundament on ainult majal seal on täis kelder all kuid see jääb paika ja arvan et tuleb selle ümber uus ja suurem
kõrval hoonetel ei ole realset vundamenti
maapinde ei tea malts kasvab peal kuid koht on järve kaldal
ei tea et oleks mingeid rangeid tingimusi vundamendi kohta kuid tahan et saaks hea

Teavita reeglite rikkumisest

Lisa küsimus

Lisa küsimus

Minu pakkumine

Reeglid

Pakkumise kirjelduse väli on mõeldud pakkumise detailsemaks lahti kirjutamiseks. Pikema teksti mugavaks sisestamiseks klikkige kasti paremal ülaservas oleval ikoonil.
Pakkumist tehes on keelatud postitada enda kontaktandmeid (nimi, telefon, aadress jne). Me jälgime ja analüüsime pakkumisi, et vältida pettuseid ja reeglite rikkumisi.
Rikkumise puhul kasutajakonto blokeeritakse.

 

Vanemad teated:

Vaata kõiki

Sellel veebilehel kasutatakse küpsiseid. Kasutamist jätkates nõustute küpsiste kasutamisega.

Sulge
 
Minu pakkumine

Reeglid

Pakkumise kirjelduse väli on mõeldud pakkumise detailsemaks lahti kirjutamiseks. Pikema teksti mugavaks sisestamiseks klikkige kasti paremal ülaservas oleval ikoonil.
Pakkumist tehes on keelatud postitada enda kontaktandmeid (nimi, telefon, aadress jne). Me jälgime ja analüüsime pakkumisi, et vältida pettuseid ja reeglite rikkumisi.
Rikkumise puhul kasutajakonto blokeeritakse.