+ Lisa oma töö      

Otsid ehitajat "Siseviimistlustööd" valdkonnast?

Parima pakkumise ja teostaja leidmiseks lisa oma töö.

Ridaelamuboxi remont

ID 2325

5495 vaatamist

Prindi

  • check Pakkumiste tegemine
    kuni 14.10.2006
  • check Võitja valik kuni
    21.10.2006
  • 3 Töö teostamine
    ja hinnang
Hanke lõpp: L, 14. oktoober, 2006
Maakond: Harjumaa
Muu asula: Keila ja Tallinna vahel
Tööde algus: P, 01. oktoober, 2006 (Soovituslik)
Tööde lõpp: P, 10. mai, 2026 (Soovituslik)
Ehitusmaterjalid: Töö tellija poolt

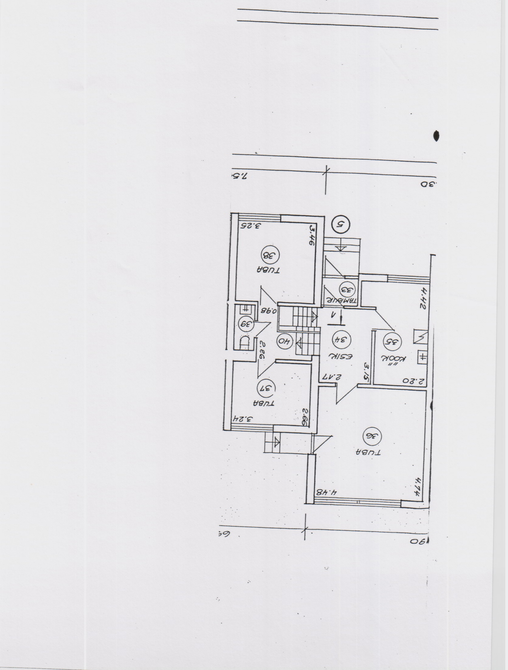
Töö sisu

90m2 ridaelamubox vajab remonti. Alumisel korrusel (32m2) kapremont:põrandate valamine, põrandaküttepaigaldus, sauna vooderdus, vannitoa plaatimine, kipsi paigaldus jms.
Teisel korrusel kipsi paigaldus+värvimine.

Pildid, video ja failid

Hanke korraldaja: eraisik ID3363

Pakkumised

Pakkumisi kokku: 9

Ettevõte Summa Käibemaks Lisatud Vestlus
Kasutaja ikoon ID2141
Pakkuja profiil Väike nool paremale
12 462,8€ Ei sisalda Ei sisalda 29.09.2006 Vestlus (0)
Kasutaja ikoon ID1753
Pakkuja profiil Väike nool paremale
8 672,8€ Sisaldab KM Sisaldab KM 30.09.2006 Vestlus (0)
Kasutaja ikoon ID1757
Pakkuja profiil Väike nool paremale
10 353,7€ Sisaldab KM Sisaldab KM 01.10.2006 Vestlus (0)
Kasutaja ikoon ID2759
Pakkuja profiil Väike nool paremale
6 071,6€ Ei sisalda Ei sisalda 04.10.2006 Vestlus (0)

Pakkumise kirjeldus:

Töödele garantii 3 aastat.

Kasutaja ikoon ID2734
Pakkuja profiil Väike nool paremale
8 947,6€ Sisaldab KM Sisaldab KM 04.10.2006 Vestlus (0)
Kasutaja ikoon ID3342
Pakkuja profiil Väike nool paremale
11 146,2€ Sisaldab KM Sisaldab KM 05.10.2006 Vestlus (0)
Kasutaja ikoon ID1514
Pakkuja profiil Väike nool paremale
5 752,1€ Ei sisalda Ei sisalda 05.10.2006 Vestlus (0)

Pakkumise kirjeldus:

Hind võib ka muidugi suureneda kui ka bväheneda kuna ei tea täpselt mida on vaja teha. Töödele garantii 3 aastat. Kõike paremat soovides ja loodetavasti meeldivat koostööd Humesto ehitus.

Kasutaja ikoon ID3524
Pakkuja profiil Väike nool paremale
8,1€ Ei sisalda Ei sisalda 07.10.2006 Vestlus (0)

Pakkumise kirjeldus:

Kiire ja kvaliteetne töö!

Kasutaja ikoon ID2887
Pakkuja profiil Väike nool paremale
5 879,9€ Ei sisalda Ei sisalda 14.10.2006 Vestlus (0)

Küsimused hanke korraldajale

Küsimus: private ID2759   27.09.2006 08:47
Kas saaksite äkki täpsemaid mahte öelda?

Teavita reeglite rikkumisest

Korraldaja vastus: 10.05.2026 13:50

Mida te konkreetselt silas peate? Põranda valamist on kokku 25,2+19m2=44,2m2; plaatimist on nii palju nagu: wc-põrand (1,7m2), seinad (11,3m2); köök+esik+tambur (19m2) siia ka põrandakütte paigaldus; kelder (25,2m2)+põrandaküte; pesuruumi seinad (13,5m2). Lihvimist vajab ka suure toa puitpõrand (21,2m2). Lisaks muidugi kipsi paigaldus jms.

Teavita reeglite rikkumisest

Lisa küsimus

Lisa küsimus

Minu pakkumine

Reeglid

Pakkumise kirjelduse väli on mõeldud pakkumise detailsemaks lahti kirjutamiseks. Pikema teksti mugavaks sisestamiseks klikkige kasti paremal ülaservas oleval ikoonil.
Pakkumist tehes on keelatud postitada enda kontaktandmeid (nimi, telefon, aadress jne). Me jälgime ja analüüsime pakkumisi, et vältida pettuseid ja reeglite rikkumisi.
Rikkumise puhul kasutajakonto blokeeritakse.

 

Teisi töid samas valdkonnas

Valdkonnas "Siseviimistlustööd" on 25 aktiivset tööd

Korteri remont

Asukoht: Harjumaa, Muraste
Aega jäänud: 2p 10h
Tehtud pakkumisi: 15

no-img Pilt puudub

Laminaatparketi paigaldus

Asukoht: Harjumaa, Tallinn
Aega jäänud: 4p 10h
Tehtud pakkumisi: 8

Vanemad teated:

Vaata kõiki

Sellel veebilehel kasutatakse küpsiseid. Kasutamist jätkates nõustute küpsiste kasutamisega.

Sulge
 
Minu pakkumine

Reeglid

Pakkumise kirjelduse väli on mõeldud pakkumise detailsemaks lahti kirjutamiseks. Pikema teksti mugavaks sisestamiseks klikkige kasti paremal ülaservas oleval ikoonil.
Pakkumist tehes on keelatud postitada enda kontaktandmeid (nimi, telefon, aadress jne). Me jälgime ja analüüsime pakkumisi, et vältida pettuseid ja reeglite rikkumisi.
Rikkumise puhul kasutajakonto blokeeritakse.