+ Lisa oma töö      

Otsid ehitajat "Renoveerimine" valdkonnast?

Parima pakkumise ja teostaja leidmiseks lisa oma töö.

Korterelamu renoveerimine

ID 23614

3167 vaatamist

Prindi

  • check Pakkumiste tegemine
    kuni 27.11.2011
  • check Võitja valik kuni
    04.12.2011
  • 3 Töö teostamine
    ja hinnang
Hanke lõpp: P, 27. november, 2011
Maakond: Pärnumaa
Linn: Pärnu
Tööde algus: K, 30. november, 2011 (Soovituslik)
Tööde lõpp: R, 23. detsember, 2011
Ehitusmaterjalid: Töö tellija poolt

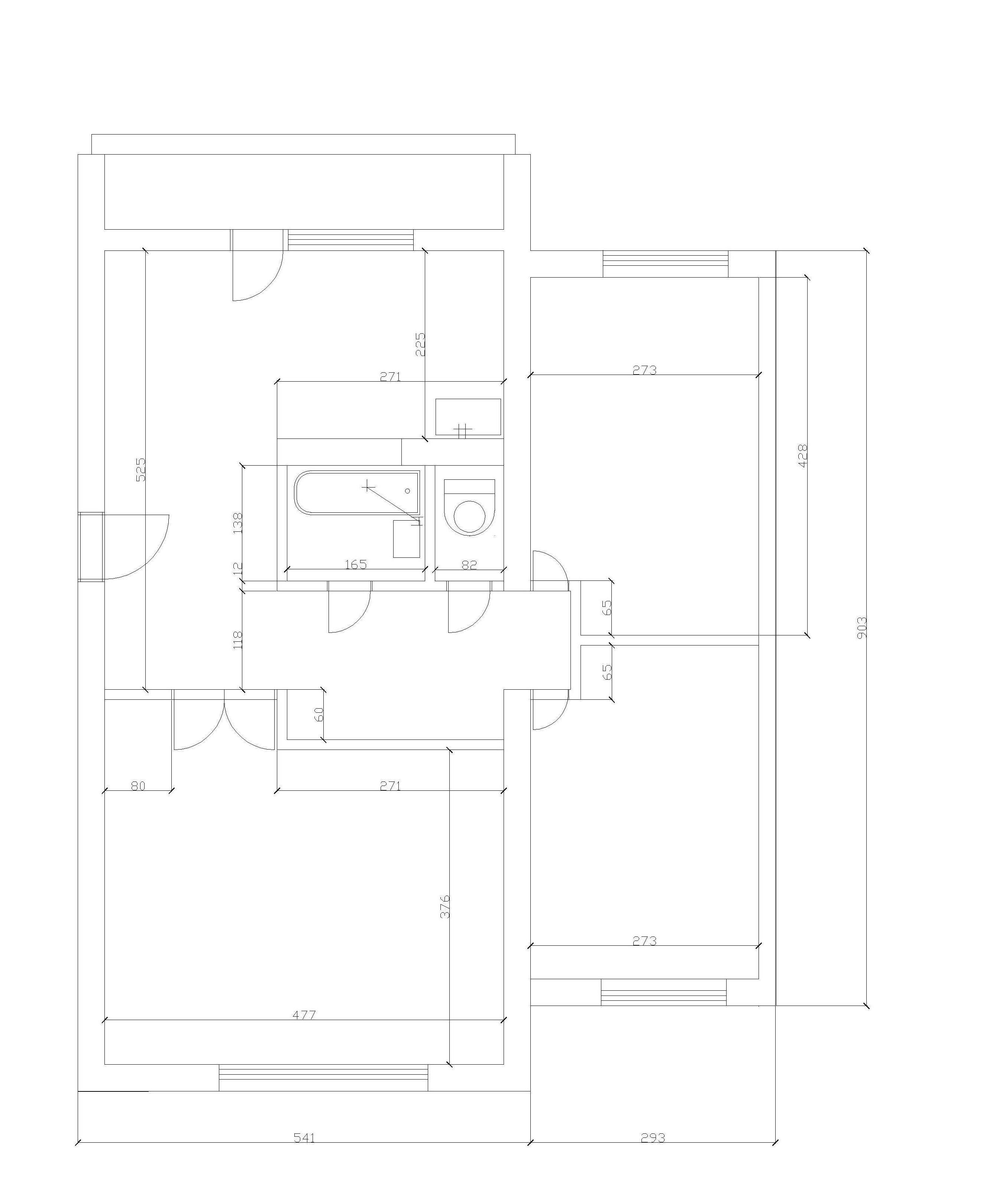
Töö sisu

*ühe välisseina soojustus =40m2 ; elektritööd ; 3 tuba ; wc ja vannituba ; köök 11m2 ; KOKKU 68m2
*Köök: 4+2 seinakontaktid+laepunkt, eraldi tuleb 16A vool elektripliidi jaoks.
*Tuba 1 : seinakontaktid 4+2 ja laepunkt
*Tuba2,3 : seinakontaktid 2+2 ja laepunktid
*Wc,vannituba : seinakontaktid 2+2+1 ja 2 laevalgustuspunkti
*Pioneerpliidil põhinev küttesüsteem koos soojust salvestava müüriga,kus igaakna alla saaks küttekeha paigaldada nn sirkulatsioonil põhinev
*Lammutustööd : vannitoa ja wc vahesein kui ka betoonpõrand kuni pannaseni lahti võtta
*Vannitoa renoveerimine : 3 uut trappi + 2 sõlme veejooksuks,uusvalatud põand (mis sisaldab põranda valamist, võrkarmatuur, seintetasandus, seinte ja põrandate eristus, põranda (3,8m2) ja seinte plaatimine (9,5m2+ripplagi) *Tubade viimistlus, seinad vajadusel tasandada - krunt kuna vähemalt pooled seinad kaetakse tapeediga!!!
*Lagede tasandus kipspahtliga+peenpahtliga ja värviks veekindel valgevärv
*Põrandakattks on tubades laminaat (56m2), köögipõranda katteks on linoleom (12m2)

Pildid, video ja failid

Hanke korraldaja: eraisik ID22495

Pakkumised

Pakkumisi kokku: 3

Ettevõte Summa Käibemaks Lisatud Vestlus
Kasutaja ikoon ID25993
Pakkuja profiil Väike nool paremale
14 000€ Ei sisalda Ei sisalda 21.11.2011 Vestlus (0)
Kasutaja ikoon ID28013
Pakkuja profiil Väike nool paremale
4 800€ Ei sisalda Ei sisalda 22.11.2011 Vestlus (0)
Kasutaja ikoon ID17608
Pakkuja profiil Väike nool paremale
7 250€ Ei sisalda Ei sisalda 25.11.2011 Vestlus (0)

Pakkumise kirjeldus:

Mõned asjad vajavad kohapeal täpsustamist, mis võivad hinda siia-sinna kujundada, kuid usun, et 5% kõikumist on max.
Meeldivale koostööle lootma jäädes!

Küsimused hanke korraldajale

Hanke korraldajale ei ole veel küsimusi esitatud.

Lisa küsimus

Lisa küsimus

Minu pakkumine

Reeglid

Pakkumise kirjelduse väli on mõeldud pakkumise detailsemaks lahti kirjutamiseks. Pikema teksti mugavaks sisestamiseks klikkige kasti paremal ülaservas oleval ikoonil.
Pakkumist tehes on keelatud postitada enda kontaktandmeid (nimi, telefon, aadress jne). Me jälgime ja analüüsime pakkumisi, et vältida pettuseid ja reeglite rikkumisi.
Rikkumise puhul kasutajakonto blokeeritakse.

 

Teisi töid samas valdkonnas

Valdkonnas "Renoveerimine" on 2 aktiivset tööd

no-img Pilt puudub

Renoveerimisprojekti koostamine

Asukoht: Läänemaa, Matsalu
Aega jäänud: 2p 5h
Tehtud pakkumisi: 4

Saunamaja renoveerimine väljastpoolt

Asukoht: Ida-Virumaa, Kiviõli
Aega jäänud: 5h 21 min
Tehtud pakkumisi: 0

Vanemad teated:

Vaata kõiki

Sellel veebilehel kasutatakse küpsiseid. Kasutamist jätkates nõustute küpsiste kasutamisega.

Sulge
 
Minu pakkumine

Reeglid

Pakkumise kirjelduse väli on mõeldud pakkumise detailsemaks lahti kirjutamiseks. Pikema teksti mugavaks sisestamiseks klikkige kasti paremal ülaservas oleval ikoonil.
Pakkumist tehes on keelatud postitada enda kontaktandmeid (nimi, telefon, aadress jne). Me jälgime ja analüüsime pakkumisi, et vältida pettuseid ja reeglite rikkumisi.
Rikkumise puhul kasutajakonto blokeeritakse.