+ Lisa oma töö      

Otsid ehitajat "Vundamenditööd" valdkonnast?

Parima pakkumise ja teostaja leidmiseks lisa oma töö.

Lintvundament

ID 2377

4694 vaatamist

Prindi

  • check Pakkumiste tegemine
    kuni 04.10.2006
  • check Võitja valik kuni
    11.10.2006
  • 3 Töö teostamine
    ja hinnang
Hanke lõpp: K, 4. oktoober, 2006
Maakond: Tartumaa
Muu asula: Tartumaa, Tähtvere vald
Tööde algus: N, 05. oktoober, 2006 (Soovituslik)
Tööde lõpp: N, 23. aprill, 2026 (Soovituslik)
Ehitusmaterjalid: Töö tegija poolt

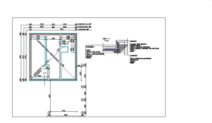
Töö sisu

Valmistada objekt ette vundamendi ehitamiseks (mullatööd ja vundamendialuse täitmine täiteliivaga). Ehitada lintvundament ja paigaldada soojustus vastavalt joonistele. Lõppviimistleda (mulla tagasitäide ja täiteliivaga täitmine vastavalt joonisele) Pinnas ehitusplatsil: ca 40 cm kivine metsamuld, mille all on moreen. Objektil puudub vesi ja elekter. Vajadusel saan hankida el. generaatori.

Pildid, video ja failid

Hanke korraldaja: eraisik ID2341

Pakkumised

Pakkumisi kokku: 1

Ettevõte Summa Käibemaks Lisatud Vestlus
Kasutaja ikoon ID3203
Pakkuja profiil Väike nool paremale
5 879,9€ Ei sisalda Ei sisalda 30.09.2006 Vestlus (0)

Pakkumise kirjeldus:

on võimalus teeb vundamendi võtmeni.

Küsimused hanke korraldajale

Küsimus: private ID1474   30.09.2006 23:23
Kus on teljed, talade samm ja tyyp, asendiplaan, kõrgused, tagasitäite maht jne jne. joonis on diletantlik ja lepingu tingimused orjastavad. Iga täie mõistusega litsensiga ehitaja peaks enne 7 korda mõtlema kui millelegi sellisele alla kirjutab.

Teavita reeglite rikkumisest

Korraldaja vastus: 23.04.2026 21:25

Täpsema projekti saaan kolmapäevaks. Leping on tavaline leping mida kasutavad paljud Tallinna ehitajad. Mõelda võite ka 100 korda kui soovite.

Teavita reeglite rikkumisest

Lisa küsimus

Lisa küsimus

Minu pakkumine

Reeglid

Pakkumise kirjelduse väli on mõeldud pakkumise detailsemaks lahti kirjutamiseks. Pikema teksti mugavaks sisestamiseks klikkige kasti paremal ülaservas oleval ikoonil.
Pakkumist tehes on keelatud postitada enda kontaktandmeid (nimi, telefon, aadress jne). Me jälgime ja analüüsime pakkumisi, et vältida pettuseid ja reeglite rikkumisi.
Rikkumise puhul kasutajakonto blokeeritakse.

 

Teisi töid samas valdkonnas

Valdkonnas "Vundamenditööd" on 9 aktiivset tööd

no-img Pilt puudub

Plaatvundamendi valamine

Asukoht: Tartumaa, Tartu
Aega jäänud: 3p 2h
Tehtud pakkumisi: 2

no-img Pilt puudub

Plaatvundament koos kommunikatsioonidega

Asukoht: Harjumaa
Aega jäänud: 1p 2h
Tehtud pakkumisi: 2

Vanemad teated:

Vaata kõiki

Sellel veebilehel kasutatakse küpsiseid. Kasutamist jätkates nõustute küpsiste kasutamisega.

Sulge
 
Minu pakkumine

Reeglid

Pakkumise kirjelduse väli on mõeldud pakkumise detailsemaks lahti kirjutamiseks. Pikema teksti mugavaks sisestamiseks klikkige kasti paremal ülaservas oleval ikoonil.
Pakkumist tehes on keelatud postitada enda kontaktandmeid (nimi, telefon, aadress jne). Me jälgime ja analüüsime pakkumisi, et vältida pettuseid ja reeglite rikkumisi.
Rikkumise puhul kasutajakonto blokeeritakse.