+ Lisa oma töö      

Otsid ehitajat "Muu" valdkonnast?

Parima pakkumise ja teostaja leidmiseks lisa oma töö.

Talumaja renoveerimine

ID 2402

4390 vaatamist

Prindi

  • check Pakkumiste tegemine
    kuni 17.11.2006
  • check Võitja valik kuni
    24.11.2006
  • 3 Töö teostamine
    ja hinnang
Hanke lõpp: R, 17. november, 2006
Maakond: Harjumaa
Muu asula: Keila Joa
Tööde algus: T, 10. oktoober, 2006 (Soovituslik)
Tööde lõpp: P, 10. mai, 2026 (Soovituslik)
Ehitusmaterjalid: Töö tellija poolt

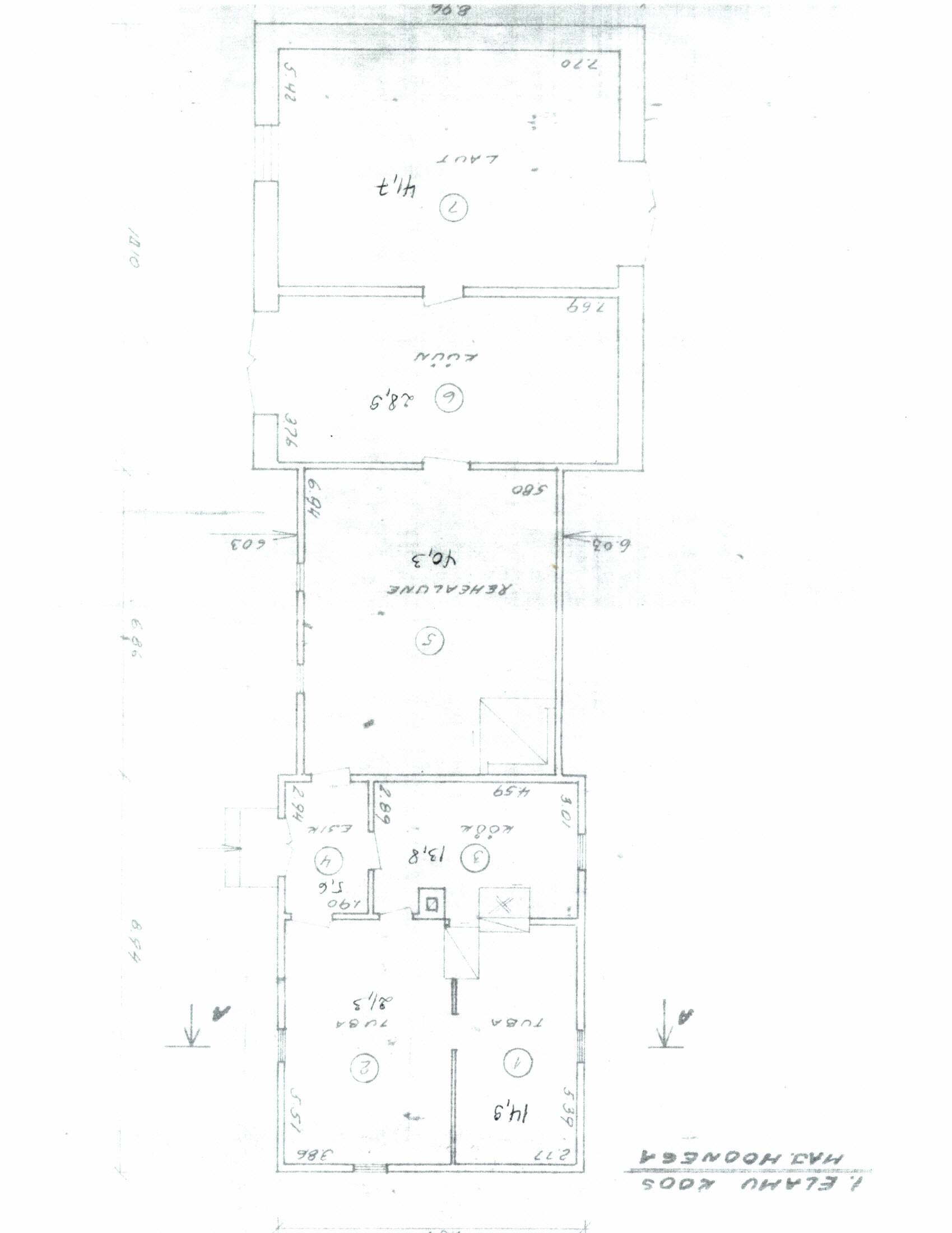
Töö sisu

Vana katuseplaatide lammutamine ainult maja eest~16m .Uue katuseplaatide panemine.Seina soojustamine väljast(1-4 tubadele), laudise seina löömine,tuulekastide tegemine .
Sektor 6 ja 7 ----lammutada vana katus mõlemalt poolt maja ,sarikate ja vahelaega .Uue katuse ja sarikate ehitamine.Uue vöö ja vahelae ehitamine .katuse korruse välja ehitamine tubadeks.Trepp.akende uste vahetus.Põranda valamine ,eelnevalt mulla eemaldamine .Vana paekivi müüri taastamine mõnest kohast seguga.Esimesel korrusel ka tubade välja ehitus.

Pildid, video ja failid

Hanke korraldaja: eraisik ID3473

Pakkumised

Pakkumisi kokku: 1

Ettevõte Summa Käibemaks Lisatud Vestlus
Kasutaja ikoon ID3891
Pakkuja profiil Väike nool paremale
38 347,0€ Ei sisalda Ei sisalda 17.11.2006 Vestlus (0)

Pakkumise kirjeldus:

detailse pakkumise teeme siis kui oleme objektiga lähemalt tutvunud (teie fail ei avane!)

Küsimused hanke korraldajale

Küsimus: private ID2958   09.10.2006 15:16
Kui oleks ehk võimali näha objekti,et teha detailset pakkumist.

Teavita reeglite rikkumisest

Korraldaja vastus: 10.05.2026 12:44

Loomulikult on võimalik näha objekti.Helistage 5090910

Teavita reeglite rikkumisest

Lisa küsimus

Lisa küsimus

Minu pakkumine

Reeglid

Pakkumise kirjelduse väli on mõeldud pakkumise detailsemaks lahti kirjutamiseks. Pikema teksti mugavaks sisestamiseks klikkige kasti paremal ülaservas oleval ikoonil.
Pakkumist tehes on keelatud postitada enda kontaktandmeid (nimi, telefon, aadress jne). Me jälgime ja analüüsime pakkumisi, et vältida pettuseid ja reeglite rikkumisi.
Rikkumise puhul kasutajakonto blokeeritakse.

 

Teisi töid samas valdkonnas

Valdkonnas "Muu" on 3 aktiivset tööd

no-img Pilt puudub

Diivani transport

Asukoht: Harjumaa, Jüri
Aega jäänud: 2p 11h
Tehtud pakkumisi: 4

no-img Pilt puudub

Muruplatsi niitmine

Asukoht: Tartumaa, Haage
Aega jäänud: 3p 11h
Tehtud pakkumisi: 1

Vanemad teated:

Vaata kõiki

Sellel veebilehel kasutatakse küpsiseid. Kasutamist jätkates nõustute küpsiste kasutamisega.

Sulge
 
Minu pakkumine

Reeglid

Pakkumise kirjelduse väli on mõeldud pakkumise detailsemaks lahti kirjutamiseks. Pikema teksti mugavaks sisestamiseks klikkige kasti paremal ülaservas oleval ikoonil.
Pakkumist tehes on keelatud postitada enda kontaktandmeid (nimi, telefon, aadress jne). Me jälgime ja analüüsime pakkumisi, et vältida pettuseid ja reeglite rikkumisi.
Rikkumise puhul kasutajakonto blokeeritakse.