+ Lisa oma töö      

Otsid ehitajat "Üldehitus" valdkonnast?

Parima pakkumise ja teostaja leidmiseks lisa oma töö.

Elamu juurdeehituse ehitamine Pärnus

ID 24035

8349 vaatamist

Prindi

  • check Pakkumiste tegemine
    kuni 10.04.2012
  • check Võitja valik kuni
    24.04.2012
  • 3 Töö teostamine
    ja hinnang
Hanke lõpp: T, 10. aprill, 2012
Maakond: Pärnumaa
Linn: Pärnu
Tööde algus: T, 01. mai, 2012 (Soovituslik)
Tööde lõpp: R, 01. juuni, 2012 (Soovituslik)
Ehitusmaterjalid: Töö tegija poolt

Töö sisu

Soovin pakkumist elamu juurdeehituse karbi ehitamiseks Pärnu linnas.
Pakkumine palun esitada tööle ning materjalidele.
Soovitud tööde nimekiri on toodud välja allpool. Nimekiri ei ole detailideni lahtikirjutatud
ning eeldan, et ehitaja on ise kompetentne ning teab, kus mida on vaja kasutada (nt vundamendi armatuur, krohvi alla armeerimissegu, vundamendi plokiks sinna sobiv plokk, EPS'i valik vastavalt kasutuskohale jne).
Plokkide osas eelistust ei ole (fibo, aeroc) ning see jääb ehitaja otsustada.
Enne tööde algust soovin saada täpsemat nimekirja kasutatavatest materjalidest.
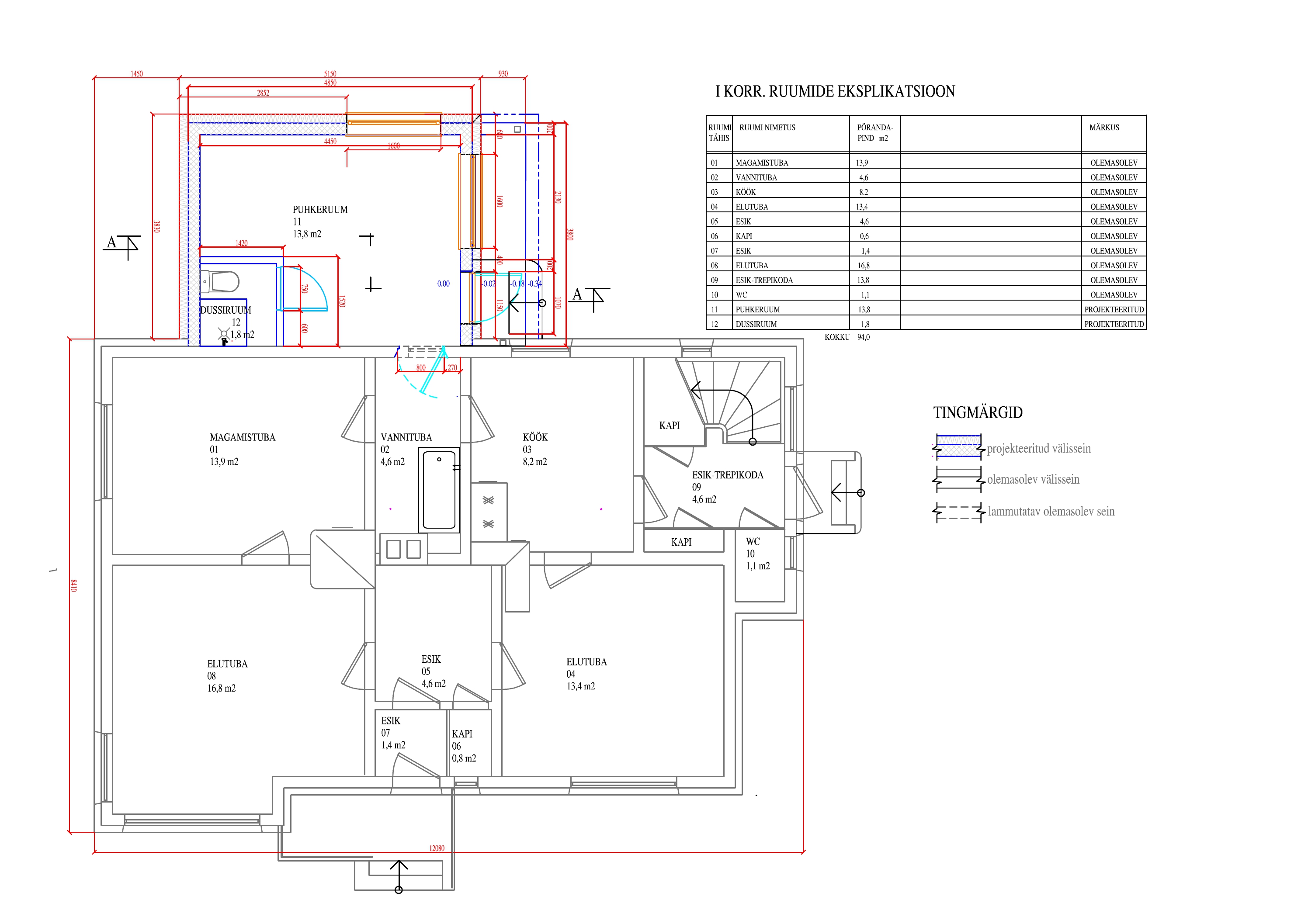
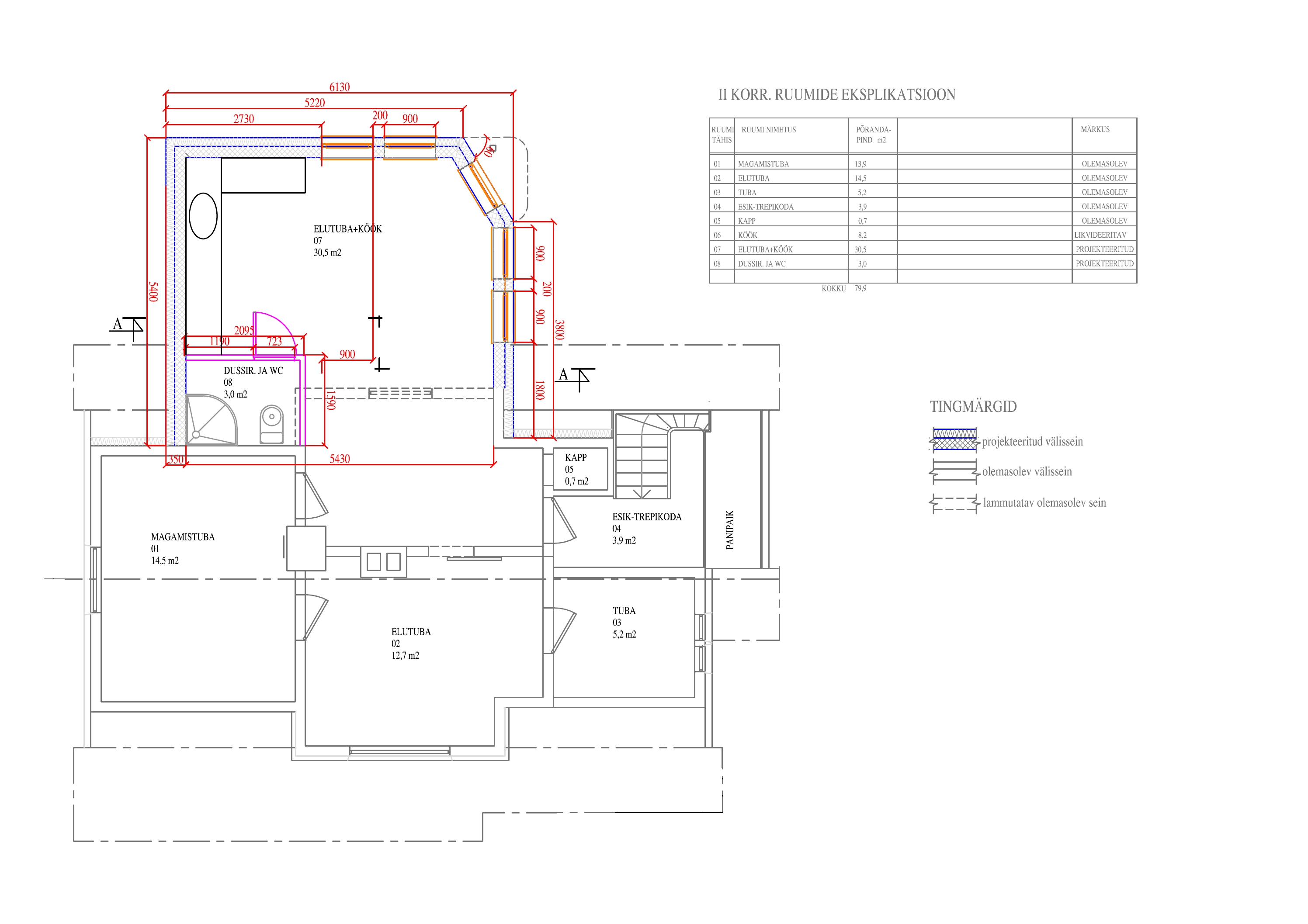
Vaadake ka: 1. ja 2. korruse plaan, vundamendi plaan, lõige, vaade.

Vundament:
- pinnasetööd (vundamendi augu kaevamine, killustikpadi, tihendamine) (pinnas ise on liivane)
- armeeritud taldmiku valamine
- taldmikule plokkvundamendi ladumine (200 mm plokk)
- vundamendi soojustamine (100mm EPS)
- krohvimine
NB! nagu vundamendi plaanilt näha, on lisaks nelinurksele vundamendile vaja teha ka 2 juppi,
mis eralduvad nelinurksest vundamendist soojustusega (taldmik on sama) ning millele toetuvad
2. korruse väljaulatuvat osa toetavad metallpostid

Välistrepp: trepi valamine

1. korruse põrand:
- liivaaluse paigaldus, tihendamine
- niiskustõkkeks PE kile
- põranda soojustus (äärtes 150mm, keskel 100mm EPS)
- betoonpõranda valamine (100mm)

- Välisseinad (1. ja 2. korrus)
- 2. korruse väljaulatuvat osa toetavate nelinurkse profiiliga (100mm) metalltalade paigaldus (3tk, üks neist tagurpidise "L" tähe kujuline olemasoleva maja seina ääres,
näha täpsemalt vundamendi plaanilt ning vaatelt)
- plokkide ladumine (200mm)
- soojustamine (EPS, 100mm + 50mm "malelaud")
- akende paigaldus (7tk, aknad tellija poolt)
- 1. korruse välisukse paigaldus (uks tellija poolt)
- seinte krohvimine, ükse- ja aknaümbruste viimistlus väljapoolt

- Siseseinad (1. ja 2. korrus .. kummalgi 2 seina vannitoa jaoks)
- olemasolevate siseseinte lammutus (pääsuks juurdeehitatavasse ossa, täpsemalt näha 1. ja 2. korruse plaanilt)
- plokkide ladumine (100 mm)
PS 2. korruse üks sisesein jääb osaliselt olemasolev palksein,
mida tuleks plokkidega kõrgemaks tõsta

- Vahelagi (ülevalt allapoole):
- laetalad 50x200mm s=400 (nende peale ajutine ujuv saepuruplaat .. on mul endal olemas)
- talade vahele soojustus, helitõke
- sisse jääv osa:
- ehituspaber
- laudis 25x100 s=300
- roovid 25mm
- kipsplaat 2 kihti (nihkega)
- välja jääv osa:
- soojustus (EPS, 100 + 50mm, nii et horisontaalne laetalasid toetav metalltala jääb EPS'i sisse)
- krohv

- Katus-lagi:
- asbestivaba eterniit
- roovitus
- distantsliist
- aluskate
- tuuletõke
- sarikad 50x200mm
- sarikate vahel soojustus (vill 200mm)
- roovid 50x50mm
- roovide vahel soojustus (vill)
- aurutõke
- liist (kübarprofiil)
- kipsplaat 2 kihti (nihkega)
- juurdeehituse katuse ühendamine olemasoleva eterniitkatusega

- Vihmaveetorustik: juurdeehituse osas vihmaveetorustiku ehitus

Pakkumise kirjelduses palun välja tuua:
- tööraha osa koguhinnast
- kasutatav plokk (vundament, seinad)
- eeldatav tööde kestvus

Tööde eeldatav algus aprilli lõpus/mai alguses, kui pinnas lubab.

Pildid, video ja failid

Hanke korraldaja: eraisik ID4074

Pakkumised

Pakkumisi kokku: 1

Ettevõte Summa Käibemaks Lisatud Vestlus
Kasutaja ikoon ID10532
Pakkuja profiil Väike nool paremale
28 174€ Ei sisalda Ei sisalda 10.04.2012 Vestlus (2)

Pakkumise kirjeldus:

Hinnapakkumine sisaldab välisviimistlust ja loetletud töid lahtiseks jääb lammutus ja hoonega ühendamine mida peab hindama kohapeal .Detailne pakkumine kohapeal .Lugupidamisega !

Küsimused hanke korraldajale

Hanke korraldajale ei ole veel küsimusi esitatud.

Lisa küsimus

Lisa küsimus

Minu pakkumine

Reeglid

Pakkumise kirjelduse väli on mõeldud pakkumise detailsemaks lahti kirjutamiseks. Pikema teksti mugavaks sisestamiseks klikkige kasti paremal ülaservas oleval ikoonil.
Pakkumist tehes on keelatud postitada enda kontaktandmeid (nimi, telefon, aadress jne). Me jälgime ja analüüsime pakkumisi, et vältida pettuseid ja reeglite rikkumisi.
Rikkumise puhul kasutajakonto blokeeritakse.

 

Teisi töid samas valdkonnas

Valdkonnas "Üldehitus" on 28 aktiivset tööd

Maja värvimine

Asukoht: Harjumaa, Saue
Aega jäänud: 2p 8h
Tehtud pakkumisi: 5

Terassi õlitamine, 13,7 ruutu

Asukoht: Harjumaa, Saue
Aega jäänud: 5p 8h
Tehtud pakkumisi: 5

Vanemad teated:

Vaata kõiki

Sellel veebilehel kasutatakse küpsiseid. Kasutamist jätkates nõustute küpsiste kasutamisega.

Sulge
 
Minu pakkumine

Reeglid

Pakkumise kirjelduse väli on mõeldud pakkumise detailsemaks lahti kirjutamiseks. Pikema teksti mugavaks sisestamiseks klikkige kasti paremal ülaservas oleval ikoonil.
Pakkumist tehes on keelatud postitada enda kontaktandmeid (nimi, telefon, aadress jne). Me jälgime ja analüüsime pakkumisi, et vältida pettuseid ja reeglite rikkumisi.
Rikkumise puhul kasutajakonto blokeeritakse.