+ Lisa oma töö      

Otsid ehitajat "Ehitusprojektid" valdkonnast?

Parima pakkumise ja teostaja leidmiseks lisa oma töö.

Hange on lõppenud!

Võitjaks osutus kasutaja ID 26988

Korraldaja hinnang tehtud tööle

1.7
22.06.2013
Töökiirus: 12345
Kvaliteet: 12345
Hind: 12345

Tegemist ei ole arhitektiga, kaotab dokumendid, ei pea kinni lubadusdest. - Raul P.

Elumaja rekonstrueerimisprojekt

ID 24273

6618 vaatamist

Prindi

  • check Pakkumiste tegemine
    kuni 25.04.2012
  • check Võitja valik kuni
    02.05.2012
  • 3 Töö teostamine
    ja hinnang
Hanke lõpp: K, 25. aprill, 2012
Maakond: Harjumaa
Linn: Tallinn
Tööde algus: E, 28. mai, 2012 (Soovituslik)
Tööde lõpp: P, 30. september, 2012 (Soovituslik)
Ehitusmaterjalid: Töö tellija poolt

Töö sisu

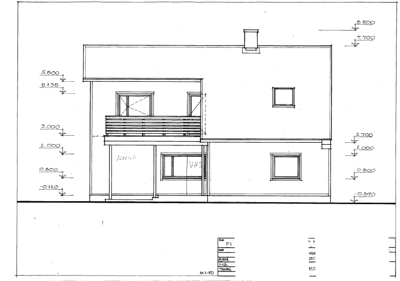
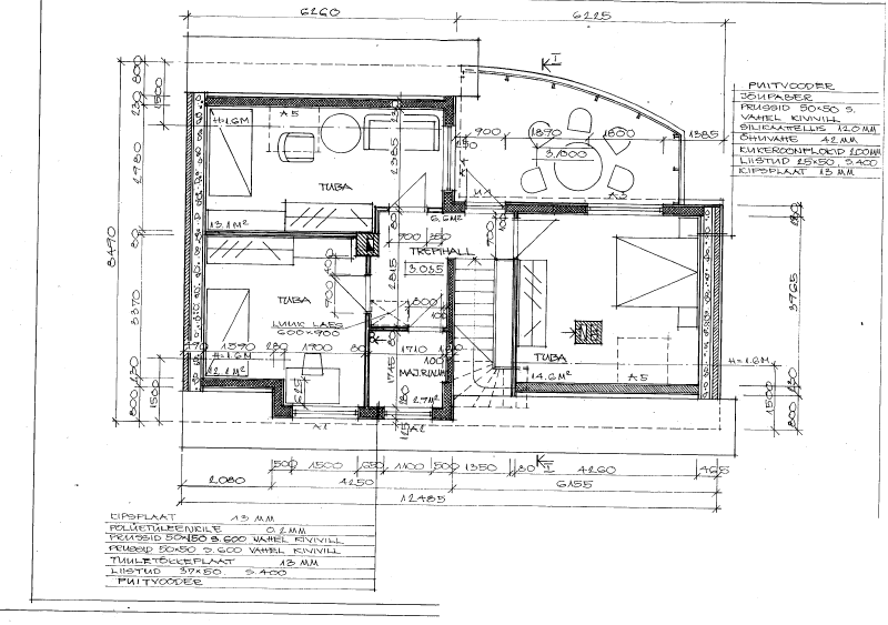
Elumaja laiendamine ja rekonstrueerimine (maja soojustamine).

Pildid, video ja failid

Hanke korraldaja: ettevõte ID28871

Pakkumised

Pakkumisi kokku: 4

Ettevõte Summa Käibemaks Lisatud Vestlus
Kasutaja ikoon ID26988
Pakkuja profiil Väike nool paremale
750€ Sisaldab KM Sisaldab KM 13.04.2012 Vestlus (0)

Pakkumise kirjeldus:

Ehitusloa taotlemiseks vajalikus mahus projekt, kõik kooskõlastused ja asjaajamised kuni ehitusloa saamiseni, energiamärgis, vajadusel mat. arvestus ning tööjoonised.

Kasutaja ikoon ID24698
Pakkuja profiil Väike nool paremale
1 300€ Ei sisalda Ei sisalda 13.04.2012 Vestlus (0)

Pakkumise kirjeldus:

Sisaldab topo-geodeetilist alusplaani, energiamärgist, projekti ,kooskõlastamist päästeameti ning KOV (vajadusel naabrite kooskõlastused kogub tellija)

Kasutaja ikoon ID25673
Pakkuja profiil Väike nool paremale
700€ Sisaldab KM Sisaldab KM 15.04.2012 Vestlus (0)
Kasutaja ikoon ID22613
Pakkuja profiil Väike nool paremale
900€ Sisaldab KM Sisaldab KM 25.04.2012 Vestlus (0)

Pakkumise kirjeldus:

Projekt ehitusloa mahus, sisaldab kõiki vajalikke kooskõlastusi.

Küsimused hanke korraldajale

Küsimus: private ID28843   12.04.2012 07:14
tere saab anda täpsem milliseid tööd on vaja teha( Elumaja rekonstrueerimisprojekt)

Teavita reeglite rikkumisest

Korraldaja vastus: 13.04.2012 09:21

On vaja vormistada olemasoleval projektil maja taga oleva terrassi kinni ehitamine ja vundamendi+majaseinte soojustus.

Teavita reeglite rikkumisest

Küsimus: private ID24698   12.04.2012 11:02
Palun lisage ka projekteerimistingimused, et näha tööde mahtu ja kooskõlastusi.

Teavita reeglite rikkumisest

Korraldaja vastus: 13.04.2012 09:23

On vaja vormistada olemasoleval projektil maja taga oleva terrassi kinni ehitamine ja vundamendi+majaseinte soojustus. Hetkel maja vormistatud aiamajana, ümber teha elamuks. Projekteermistingimused on väga üldised ja ei mõjuta projektimuudatust.

Teavita reeglite rikkumisest

Lisa küsimus

Lisa küsimus

Minu pakkumine

Reeglid

Pakkumise kirjelduse väli on mõeldud pakkumise detailsemaks lahti kirjutamiseks. Pikema teksti mugavaks sisestamiseks klikkige kasti paremal ülaservas oleval ikoonil.
Pakkumist tehes on keelatud postitada enda kontaktandmeid (nimi, telefon, aadress jne). Me jälgime ja analüüsime pakkumisi, et vältida pettuseid ja reeglite rikkumisi.
Rikkumise puhul kasutajakonto blokeeritakse.

 

Teisi töid samas valdkonnas

Valdkonnas "Ehitusprojektid" on 6 aktiivset tööd

no-img Pilt puudub

Ehitusinsener tase 7 vastutav allikiri

Asukoht: Pärnumaa, Pärnu
Aega jäänud: 21h 42 min
Tehtud pakkumisi: 2

Korteri elektri projekt

Asukoht: Harjumaa, Tallinn
Aega jäänud: 2p 21h
Tehtud pakkumisi: 2

Vanemad teated:

Vaata kõiki

Sellel veebilehel kasutatakse küpsiseid. Kasutamist jätkates nõustute küpsiste kasutamisega.

Sulge
 
Minu pakkumine

Reeglid

Pakkumise kirjelduse väli on mõeldud pakkumise detailsemaks lahti kirjutamiseks. Pikema teksti mugavaks sisestamiseks klikkige kasti paremal ülaservas oleval ikoonil.
Pakkumist tehes on keelatud postitada enda kontaktandmeid (nimi, telefon, aadress jne). Me jälgime ja analüüsime pakkumisi, et vältida pettuseid ja reeglite rikkumisi.
Rikkumise puhul kasutajakonto blokeeritakse.