+ Lisa oma töö      

Otsid ehitajat "Projekteerimine" valdkonnast?

Parima pakkumise ja teostaja leidmiseks lisa oma töö.

Hange on lõppenud!

Võitjaks osutus kasutaja ID 25861

Elumaja projekti muudatus

ID 24280

5452 vaatamist

Prindi

  • check Pakkumiste tegemine
    kuni 26.04.2012
  • check Võitja valik kuni
    03.05.2012
  • 3 Töö teostamine
    ja hinnang
Hanke lõpp: N, 26. aprill, 2012
Maakond: Harjumaa
Linn: Tallinn
Tööde algus: E, 28. mai, 2012 (Soovituslik)
Tööde lõpp: P, 30. september, 2012 (Soovituslik)
Ehitusmaterjalid: Töö tellija poolt

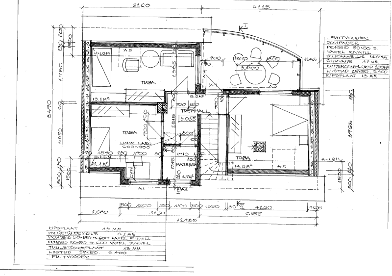
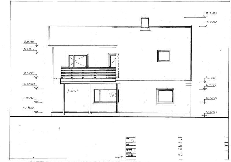
Töö sisu

On vaja muuta majal akende ja välisukse asukohti ning välisterrassi kinni ehitamist.

Pildid, video ja failid

Hanke korraldaja: eraisik ID28882

Pakkumised

Pakkumisi kokku: 5

Ettevõte Summa Käibemaks Lisatud Vestlus
Kasutaja ikoon ID6901
Pakkuja profiil Väike nool paremale
1 000€ Sisaldab KM Sisaldab KM 12.04.2012 Vestlus (0)

Pakkumise kirjeldus:

Asjaajamine hinna sees kuni ehitusloani.

Kasutaja ikoon ID22632
Pakkuja profiil Väike nool paremale
850€ Ei sisalda Ei sisalda 12.04.2012 Vestlus (0)

Pakkumise kirjeldus:

Ehitusprojekt eelprojekti staadiumis, energiaarvutused, energiamärgis. Kooskõlastused, ehitusloa hange TLPA

Kasutaja ikoon ID26988
Pakkuja profiil Väike nool paremale
750€ Sisaldab KM Sisaldab KM 13.04.2012 Vestlus (0)

Pakkumise kirjeldus:

Ehitusloa taotlemiseks vajalikus mahus projekt,kõik kooskõlastused ja asjaajamised kuni ehitusloa saamiseni. Vajadusel mat. arvestus ning tööjoonised.

Kasutaja ikoon ID25673
Pakkuja profiil Väike nool paremale
600€ Sisaldab KM Sisaldab KM 15.04.2012 Vestlus (0)
Kasutaja ikoon ID25861
Pakkuja profiil Väike nool paremale
640€ Ei sisalda Ei sisalda 20.04.2012 Vestlus (0)

Pakkumise kirjeldus:

Hoone projekt kui selline. KM ei lisandu, kuna firma pole KM kohuslane. Kui Teile on aga tarvilik terviklik kooskõlastatud projektdokumentatsioon siis lisanduvad kulud ehitusgeodeetilisele asendiplaanile (ilmselt olemas), riigilõivule ja kooskõlastuste hankimisele (10%).

Küsimused hanke korraldajale

Küsimus: private ID22308   12.04.2012 13:54
Kuna Teie soovite terassi kinni panna siis (netopinna suurendamine) Teie peate TLPA'st tingimusi küsida. Hiljem kooskõlastused ja ehitusloa taotlemine. Kas seda tuleb arvestada? Või teha projekti ainult Teile (ehitajale)?

Teavita reeglite rikkumisest

Korraldaja vastus: 22.04.2012 21:52

Tingimused olemas. Vajalikud kooskõlastused ja ehitusloa taotlemine.

Teavita reeglite rikkumisest

Lisa küsimus

Lisa küsimus

Minu pakkumine

Reeglid

Pakkumise kirjelduse väli on mõeldud pakkumise detailsemaks lahti kirjutamiseks. Pikema teksti mugavaks sisestamiseks klikkige kasti paremal ülaservas oleval ikoonil.
Pakkumist tehes on keelatud postitada enda kontaktandmeid (nimi, telefon, aadress jne). Me jälgime ja analüüsime pakkumisi, et vältida pettuseid ja reeglite rikkumisi.
Rikkumise puhul kasutajakonto blokeeritakse.

 

Teisi töid samas valdkonnas

Valdkonnas "Projekteerimine" on 7 aktiivset tööd

no-img Pilt puudub

1-kordse 120 m2 elumaja põhiprojekt

Asukoht: Harjumaa, Metsanurme
Aega jäänud: 8p 6h
Tehtud pakkumisi: 4

no-img Pilt puudub

Saunamaja eelprojekt ehitusteatiseks

Asukoht: Lääne-Virumaa
Aega jäänud: 1p 6h
Tehtud pakkumisi: 3

Vanemad teated:

Vaata kõiki

Sellel veebilehel kasutatakse küpsiseid. Kasutamist jätkates nõustute küpsiste kasutamisega.

Sulge
 
Minu pakkumine

Reeglid

Pakkumise kirjelduse väli on mõeldud pakkumise detailsemaks lahti kirjutamiseks. Pikema teksti mugavaks sisestamiseks klikkige kasti paremal ülaservas oleval ikoonil.
Pakkumist tehes on keelatud postitada enda kontaktandmeid (nimi, telefon, aadress jne). Me jälgime ja analüüsime pakkumisi, et vältida pettuseid ja reeglite rikkumisi.
Rikkumise puhul kasutajakonto blokeeritakse.