+ Lisa oma töö      

Otsid ehitajat "Renoveerimine" valdkonnast?

Parima pakkumise ja teostaja leidmiseks lisa oma töö.

Korteri kap. remont

ID 24402

3319 vaatamist

Prindi

  • check Pakkumiste tegemine
    kuni 20.05.2012
  • check Võitja valik kuni
    27.05.2012
  • 3 Töö teostamine
    ja hinnang
Hanke lõpp: P, 20. mai, 2012
Maakond: Harjumaa
Linn: Tallinn
Tööde algus: R, 01. juuni, 2012 (Soovituslik)
Tööde lõpp: L, 30. juuni, 2012 (Soovituslik)
Ehitusmaterjalid: Töö tellija poolt

Töö sisu

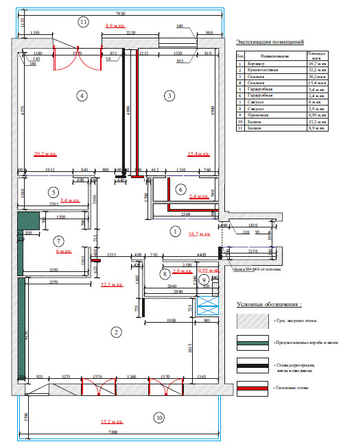
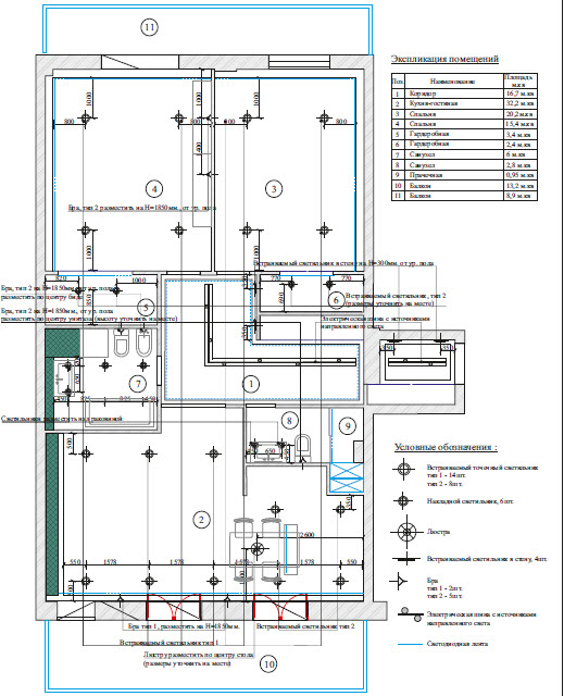
Vanas majas asuv korteri (122 m2) kap. remont (s.h. koik santehnika ja elektritood).
Koik detailid on manustuses

Pildid, video ja failid

Hanke korraldaja: eraisik ID29026

Pakkumised

Pakkumisi kokku: 3

Ettevõte Summa Käibemaks Lisatud Vestlus
Kasutaja ikoon ID14871
Pakkuja profiil Väike nool paremale
3 200€ Ei sisalda Ei sisalda 23.04.2012 Vestlus (0)

Pakkumise kirjeldus:

TÖÖ KIIRE JA KORRALIK.firma mtr registris.garantii 2a.vaadake tehtuid töid ja hinnanguid.

Kasutaja ikoon ID28223
Pakkuja profiil Väike nool paremale
10 760€ Ei sisalda Ei sisalda 25.04.2012 Vestlus (0)

Pakkumise kirjeldus:

Hinnas kõik korteri kap.remonditööd.
Laed seinad põrandad,vannitoa uuendamine,toru ja el.tööd.
Arvestatud kõikide abi- ja viimistlustöödega
Lisamakse ei lisandu kuna ei ole km.kohuslane.
Meeldivat koostööd soovides
Lugupidamisega

Kasutaja ikoon ID27816
Pakkuja profiil Väike nool paremale
8 900€ Ei sisalda Ei sisalda 30.04.2012 Vestlus (0)

Küsimused hanke korraldajale

Hanke korraldajale ei ole veel küsimusi esitatud.

Lisa küsimus

Lisa küsimus

Minu pakkumine

Reeglid

Pakkumise kirjelduse väli on mõeldud pakkumise detailsemaks lahti kirjutamiseks. Pikema teksti mugavaks sisestamiseks klikkige kasti paremal ülaservas oleval ikoonil.
Pakkumist tehes on keelatud postitada enda kontaktandmeid (nimi, telefon, aadress jne). Me jälgime ja analüüsime pakkumisi, et vältida pettuseid ja reeglite rikkumisi.
Rikkumise puhul kasutajakonto blokeeritakse.

 

Teisi töid samas valdkonnas

Valdkonnas "Renoveerimine" on 2 aktiivset tööd

no-img Pilt puudub

Renoveerimisprojekti koostamine

Asukoht: Läänemaa, Matsalu
Aega jäänud: 2p 10h
Tehtud pakkumisi: 4

Saunamaja renoveerimine väljastpoolt

Asukoht: Ida-Virumaa, Kiviõli
Aega jäänud: 10h 26 min
Tehtud pakkumisi: 0

Vanemad teated:

Vaata kõiki

Sellel veebilehel kasutatakse küpsiseid. Kasutamist jätkates nõustute küpsiste kasutamisega.

Sulge
 
Minu pakkumine

Reeglid

Pakkumise kirjelduse väli on mõeldud pakkumise detailsemaks lahti kirjutamiseks. Pikema teksti mugavaks sisestamiseks klikkige kasti paremal ülaservas oleval ikoonil.
Pakkumist tehes on keelatud postitada enda kontaktandmeid (nimi, telefon, aadress jne). Me jälgime ja analüüsime pakkumisi, et vältida pettuseid ja reeglite rikkumisi.
Rikkumise puhul kasutajakonto blokeeritakse.