+ Lisa oma töö      

Otsid ehitajat "Siseviimistlustööd" valdkonnast?

Parima pakkumise ja teostaja leidmiseks lisa oma töö.

Hange on lõppenud!

Võitjaks osutus kasutaja ID 19106

Korraldaja hinnang tehtud tööle

3.7
16.07.2012
Töökiirus: 12345
Kvaliteet: 12345
Hind: 12345

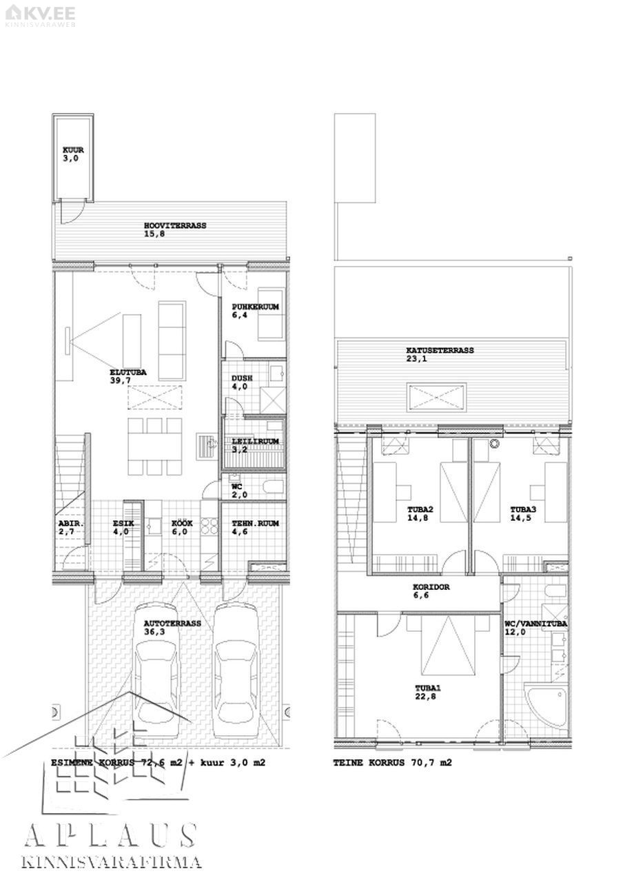
Siseviimistlustööd 140m2 ridaelamus

ID 24534

4354 vaatamist

Prindi

  • check Pakkumiste tegemine
    kuni 11.05.2012
  • check Võitja valik kuni
    18.05.2012
  • 3 Töö teostamine
    ja hinnang
Hanke lõpp: R, 11. mai, 2012
Maakond: Harjumaa
Linn: Keila
Tööde algus: E, 07. mai, 2012 (Soovituslik)
Tööde lõpp: E, 18. juuni, 2012 (Soovituslik)
Ehitusmaterjalid: Töö tellija poolt

Töö sisu

140 ruutmeetrise ridaelamu siseviimistluse teostamine. Pahteldamine, kruntimine, värvimine, plaatimistööd.

Pildid, video ja failid

Hanke korraldaja: eraisik ID29181

Pakkumised

Pakkumisi kokku: 1

Ettevõte Summa Käibemaks Lisatud Vestlus
Kasutaja ikoon ID19106
Pakkuja profiil Väike nool paremale
15€ Ei sisalda Ei sisalda 11.05.2012 Vestlus (0)

Pakkumise kirjeldus:

Tere, hinnad- lagede pahteldamine a värvimine: 10 eu/m2, põranda nake/hõdro/plaatimine: 20 eur/m2, seinte nake/hüdro/plaatimine: 22 eur/m2, silebetooni katmine tasanduskihiga: 8 eur/m2, kohapeal täpsemalt. 15 eur on tunnihind. Tähtajad kokkuleppel. Parimat!

Küsimused hanke korraldajale

Küsimus: private ID29061   28.04.2012 18:11
Tere!

Huvitavad mõned küsimused:
1. Mis seinad hetkel? Kas tepeeditud või värvitud.
2. Mis materjalist laed? Betoon või kips.
3. Mis saab põrandatest ja põr. liistudest?
4. Kas niisked ruumid hetkel plaaditud? See tähendab kas vanad plaadid seinast ja siis uued seina ja põrandale.
5. Uksed aknad?
Hetkel vist kõik.
Tervitades

Teavita reeglite rikkumisest

Korraldaja vastus: 28.04.2012 20:33

Tere, hankes lisatud URL lingis on näha, mis seisus seinad hetkel on- Seinad on sile betoon ja vaheseinad kipsist. Laed on betoon paneelid. Põrandaid ei ole vaja teha (parketiga ruumid). Niisketes ruumides tuleb panna plaat maha ja seina ( sauna eesruum põrand, dussiruum põrand ja sein, saunas põrand, WC põrand, II korruse pesuruumis põrand, köögis ja esikus põrand. Uksed ja aknad on ees, siseuksi ei ole vaja paigaldada.

Terv,

K

Teavita reeglite rikkumisest

Lisa küsimus

Lisa küsimus

Minu pakkumine

Reeglid

Pakkumise kirjelduse väli on mõeldud pakkumise detailsemaks lahti kirjutamiseks. Pikema teksti mugavaks sisestamiseks klikkige kasti paremal ülaservas oleval ikoonil.
Pakkumist tehes on keelatud postitada enda kontaktandmeid (nimi, telefon, aadress jne). Me jälgime ja analüüsime pakkumisi, et vältida pettuseid ja reeglite rikkumisi.
Rikkumise puhul kasutajakonto blokeeritakse.

 

Teisi töid samas valdkonnas

Valdkonnas "Siseviimistlustööd" on 21 aktiivset tööd

Trepikoja remont

Asukoht: Harjumaa, Tallinn
Aega jäänud: 5p 19h
Tehtud pakkumisi: 4

Sanitaarruumi sisemiste ukseliistude vahetus

Asukoht: Harjumaa, Tallinn
Aega jäänud: 1p 19h
Tehtud pakkumisi: 3

Vanemad teated:

Vaata kõiki

Sellel veebilehel kasutatakse küpsiseid. Kasutamist jätkates nõustute küpsiste kasutamisega.

Sulge
 
Minu pakkumine

Reeglid

Pakkumise kirjelduse väli on mõeldud pakkumise detailsemaks lahti kirjutamiseks. Pikema teksti mugavaks sisestamiseks klikkige kasti paremal ülaservas oleval ikoonil.
Pakkumist tehes on keelatud postitada enda kontaktandmeid (nimi, telefon, aadress jne). Me jälgime ja analüüsime pakkumisi, et vältida pettuseid ja reeglite rikkumisi.
Rikkumise puhul kasutajakonto blokeeritakse.