+ Lisa oma töö      

Otsid ehitajat "Katusetööd" valdkonnast?

Parima pakkumise ja teostaja leidmiseks lisa oma töö.

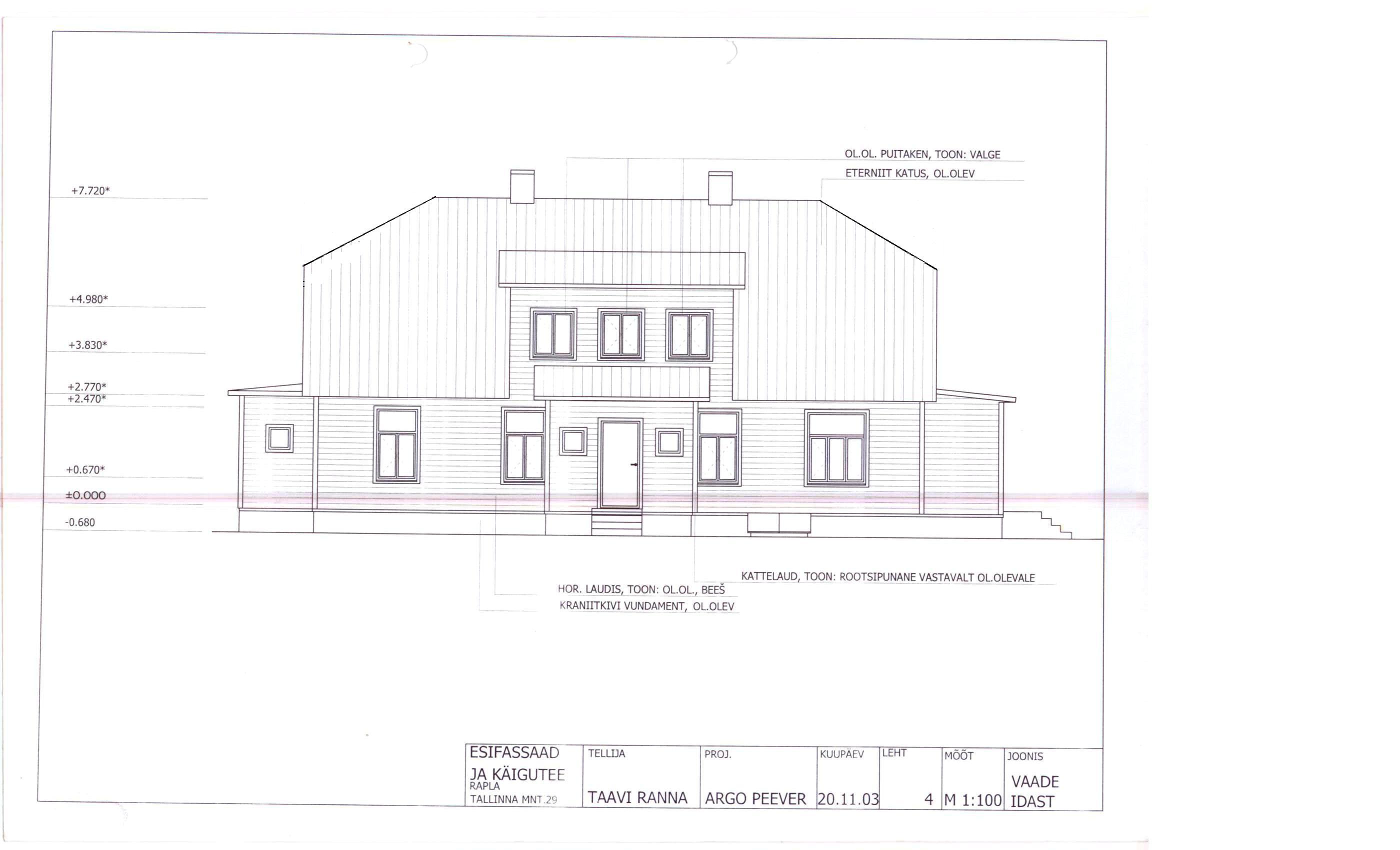
Katuse renoveerimine

ID 24770

4258 vaatamist

Prindi

  • check Pakkumiste tegemine
    kuni 07.06.2012
  • check Võitja valik kuni
    14.06.2012
  • 3 Töö teostamine
    ja hinnang
Hanke lõpp: N, 7. juuni, 2012
Maakond: Raplamaa
Linn: Rapla
Tööde algus: E, 23. juuli, 2012 (Soovituslik)
Tööde lõpp: K, 15. august, 2012 (Soovituslik)
Ehitusmaterjalid: Töö tegija poolt

Töö sisu

Vaja oleks vana katus eemaldada(eterniit) ja ära vedada, uus roovitus, kile jne.
Kõik vajalikud tööd ja materjalid töövõtja poolt.
Uueks kattematerjaliks eelistaksin eterniiti (tumepruun) kuid võib olla ka plekk.
Lisaks uued tuulekastid ja vihmavee rennid. Katuse üldpind ca 315m2.
Hinnapakkumine peab sisaldama:
• Materjalide maksumust
• Tööde maksumust
• Vajadusel tellingute renti, transporti ja paigaldamist.
• Ehitusjäätmete koristamist ja prügi äravedu.
• Vihmaveesüsteemi ja montaazi maksumust

Pildid, video ja failid

Hanke korraldaja: eraisik ID29394

Pakkumised

Pakkumisi kokku: 3

Ettevõte Summa Käibemaks Lisatud Vestlus
Kasutaja ikoon ID26518
Pakkuja profiil Väike nool paremale
12 290€ Ei sisalda Ei sisalda 27.05.2012 Vestlus (0)
Kasutaja ikoon ID22581
Pakkuja profiil Väike nool paremale
13 000€ Ei sisalda Ei sisalda 27.05.2012 Vestlus (2)

Pakkumise kirjeldus:

Vana katuse lõhkumine,eterniidi utiliseerimine.Uue roovi paigaldus koos aluskattega ja valtspleki paigaldamine.Pakkumine sisaldab kõiki töid ja matrjale ,tellinguid transporti .Garantii 3 aastat.Tööde tegemise aeg kokkuleppel.

Kasutaja ikoon ID29398
Pakkuja profiil Väike nool paremale
11 865€ Ei sisalda Ei sisalda 28.05.2012 Vestlus (0)

Küsimused hanke korraldajale

Hanke korraldajale ei ole veel küsimusi esitatud.

Lisa küsimus

Lisa küsimus

Minu pakkumine

Reeglid

Pakkumise kirjelduse väli on mõeldud pakkumise detailsemaks lahti kirjutamiseks. Pikema teksti mugavaks sisestamiseks klikkige kasti paremal ülaservas oleval ikoonil.
Pakkumist tehes on keelatud postitada enda kontaktandmeid (nimi, telefon, aadress jne). Me jälgime ja analüüsime pakkumisi, et vältida pettuseid ja reeglite rikkumisi.
Rikkumise puhul kasutajakonto blokeeritakse.

 

Teisi töid samas valdkonnas

Valdkonnas "Katusetööd" on 9 aktiivset tööd

no-img Pilt puudub

Käidava katuse PVC 54m2

Asukoht: Harjumaa, Muraste
Aega jäänud: 4p 8h
Tehtud pakkumisi: 3

Garaaži katuse vahetamine

Asukoht: Harjumaa, Viimsi
Aega jäänud: 13p 8h
Tehtud pakkumisi: 2

Vanemad teated:

Vaata kõiki

Sellel veebilehel kasutatakse küpsiseid. Kasutamist jätkates nõustute küpsiste kasutamisega.

Sulge
 
Minu pakkumine

Reeglid

Pakkumise kirjelduse väli on mõeldud pakkumise detailsemaks lahti kirjutamiseks. Pikema teksti mugavaks sisestamiseks klikkige kasti paremal ülaservas oleval ikoonil.
Pakkumist tehes on keelatud postitada enda kontaktandmeid (nimi, telefon, aadress jne). Me jälgime ja analüüsime pakkumisi, et vältida pettuseid ja reeglite rikkumisi.
Rikkumise puhul kasutajakonto blokeeritakse.