+ Lisa oma töö      

Otsid ehitajat "Korterite remont" valdkonnast?

Parima pakkumise ja teostaja leidmiseks lisa oma töö.

Korterelamu paneelvaheseina ava tegemine

ID 25253

2437 vaatamist

Prindi

  • check Pakkumiste tegemine
    kuni 05.07.2012
  • check Võitja valik kuni
    12.07.2012
  • 3 Töö teostamine
    ja hinnang
Hanke lõpp: N, 5. juuli, 2012
Maakond: Tartumaa
Linn: Tartu
Tööde algus: E, 09. juuli, 2012 (Soovituslik)
Tööde lõpp: R, 20. juuli, 2012 (Soovituslik)
Ehitusmaterjalid: Töö tegija poolt

Töö sisu

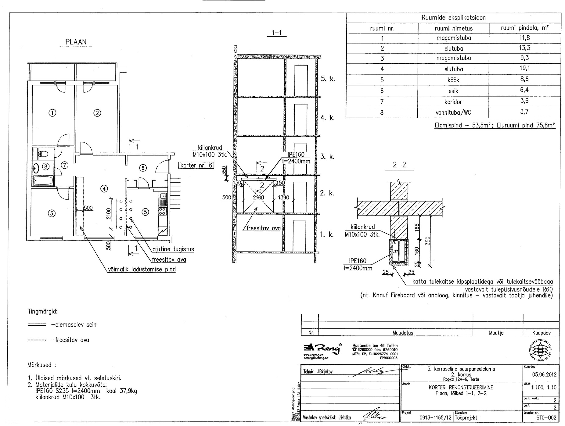
Tartu tüüpi korterelamu 2. korruse köögi ja elutoa paneelvaheseina ava lõikamine (u. 12 cm paks armatuuriga paneel, 2,2x2,1m ava). Enne lõikamist lagede ajutise tugistuse paigaldamine, silluse paigaldamine, ava lõikamine (teemantsaagimine), prügi äravedu, silluse katmine tulekindla kipsplaadiga.
Väljavõte projektist:
Tööde teostamisel tuleb arvestada:
1. Enne ava freesimist toestada laed ajutise tugistusega.
2. Metalltala puhastada roostest ja kruntida.
3. Ava lõigata vibratsioonivaba tehnoloogiaga (teemantsaagimine) ja
minimeerida müra ja tolmu kandumine naaberkorteritesse.
4. Väljafreesitud seinaosad mitte suuremad kui ~50x50cm, tükid koheselt
välja vedada või ajutiselt ladustada võimalikult seina äärde plaanil
näidatud kohta, mitte üle 2 tüki üksteise peale.
5. Metalltala kiiluda tihedalt vastu ava ülemist pinda ja toetuspinda.
6. Ajutised tugistused võib eemaldada peale tala paigaldamist ja
omanikujärelvalve nõusolekut.
7. Tugevduste teraskonstruktsioonide tulele avatud pinnad tuleb katta
tulekaitse kipsplaadiga või tulekaitsevärviga vastavalt
tulepüsivusnõudele R120.

Pildid, video ja failid

Hanke korraldaja: eraisik ID29834

Pakkumised

Pakkumisi kokku: 0

Küsimused hanke korraldajale

Hanke korraldajale ei ole veel küsimusi esitatud.

Lisa küsimus

Lisa küsimus

Minu pakkumine

Reeglid

Pakkumise kirjelduse väli on mõeldud pakkumise detailsemaks lahti kirjutamiseks. Pikema teksti mugavaks sisestamiseks klikkige kasti paremal ülaservas oleval ikoonil.
Pakkumist tehes on keelatud postitada enda kontaktandmeid (nimi, telefon, aadress jne). Me jälgime ja analüüsime pakkumisi, et vältida pettuseid ja reeglite rikkumisi.
Rikkumise puhul kasutajakonto blokeeritakse.

 

Teisi töid samas valdkonnas

Valdkonnas "Korterite remont" on 2 aktiivset tööd

Vannitoa lampide paigaldus + erinevad pisiparandused korteris

Asukoht: Harjumaa, Tallinn
Aega jäänud: 1p 6h
Tehtud pakkumisi: 3

Korteri kapitaalremont ja ümberehitus (täielik siseviimistlus + elektritööd)

Asukoht: Järvamaa
Aega jäänud: 12p 6h
Tehtud pakkumisi: 0

Vanemad teated:

Vaata kõiki

Sellel veebilehel kasutatakse küpsiseid. Kasutamist jätkates nõustute küpsiste kasutamisega.

Sulge
 
Minu pakkumine

Reeglid

Pakkumise kirjelduse väli on mõeldud pakkumise detailsemaks lahti kirjutamiseks. Pikema teksti mugavaks sisestamiseks klikkige kasti paremal ülaservas oleval ikoonil.
Pakkumist tehes on keelatud postitada enda kontaktandmeid (nimi, telefon, aadress jne). Me jälgime ja analüüsime pakkumisi, et vältida pettuseid ja reeglite rikkumisi.
Rikkumise puhul kasutajakonto blokeeritakse.