+ Lisa oma töö      

Otsid ehitajat "Sanitaartehnilised tööd" valdkonnast?

Parima pakkumise ja teostaja leidmiseks lisa oma töö.

Vannitoa ehitus ja torude vahetus

ID 25811

3596 vaatamist

Prindi

  • check Pakkumiste tegemine
    kuni 17.09.2012
  • check Võitja valik kuni
    24.09.2012
  • 3 Töö teostamine
    ja hinnang
Hanke lõpp: E, 17. september, 2012
Maakond: Pärnumaa
Linn: Pärnu
Tööde algus: E, 03. september, 2012 (Soovituslik)
Tööde lõpp: P, 30. september, 2012 (Soovituslik)
Ehitusmaterjalid: Töö tegija poolt

Töö sisu

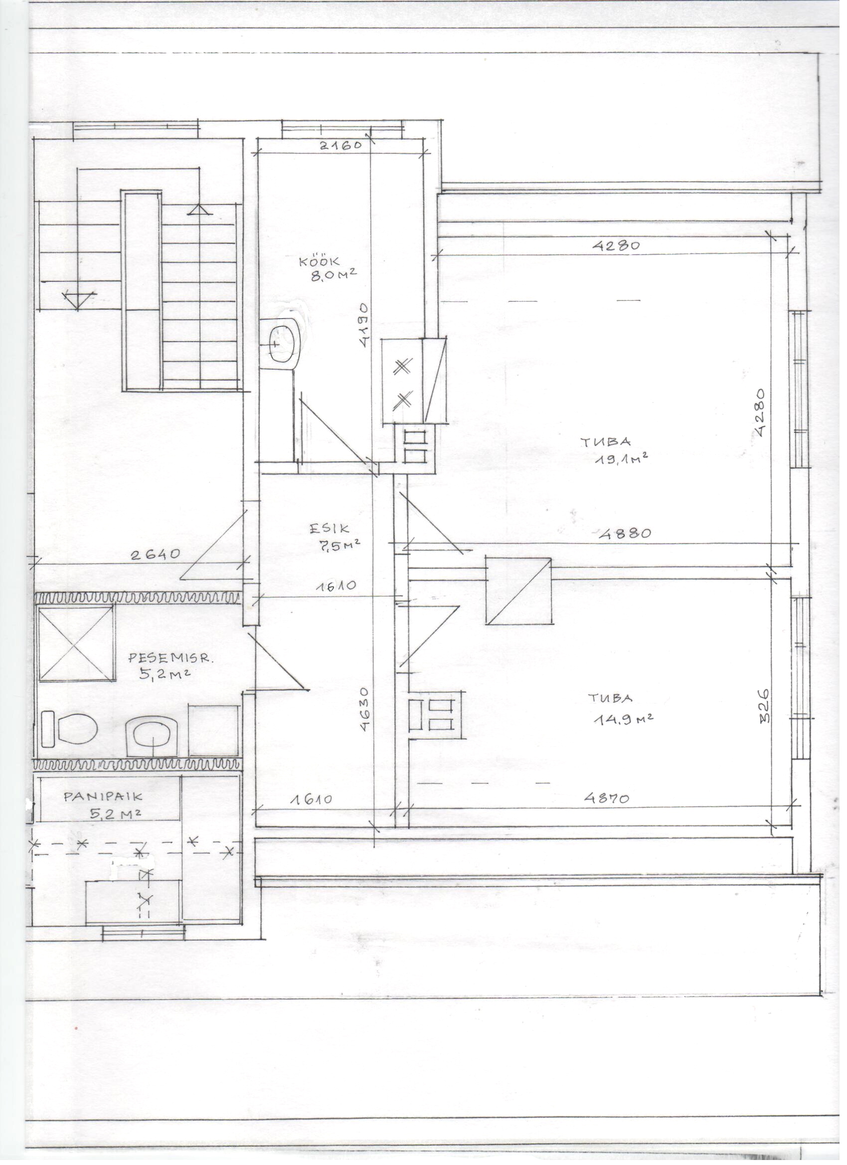
Puit hoone teisele korrusele koridori on vaja välja ehitada 5,2 m2 vannituba ja vahetada ära korterisse sisse tulev torustik köögis. Tulevane vannituba asub kaheks jaotatud koridori ühes osas(näha ka plaani pealt). Vannitoa ehituseks on vaja teha 2 uut seina. Ukse koht on olemas. Soojustada põrand, kuna koridori põrand on alt tühi(1 korruse koridor on seal). Kui võimalik siis võiks panna ka põranda kütte. Vannituppa on vaja panna kõik torud (wc, kraanikauss, dushinurk, pesumasina jne). Põrand plaatida ja lagi paika panna. Seinad võiks tulla veekindla värviga, mille värvimisega saaksin ise hakkama (kuulub arutamise alla kui on midagi soodsamat/paremat välja pakkuda). Vannitoa elektriline ventilatsioon.

Pildid, video ja failid

Hanke korraldaja: eraisik ID30347

Pakkumised

Pakkumisi kokku: 2

Ettevõte Summa Käibemaks Lisatud Vestlus
Kasutaja ikoon ID10532
Pakkuja profiil Väike nool paremale
2 900€ Ei sisalda Ei sisalda 17.09.2012 Vestlus (2)

Pakkumise kirjeldus:

täpsemad kokkulepped kohapeal .Lugupidamisega !

Kasutaja ikoon ID29494
Pakkuja profiil Väike nool paremale
2 640€ Sisaldab KM Sisaldab KM 17.09.2012 Vestlus (2)

Pakkumise kirjeldus:

Ettemaks ainult materjalide maksumusele. Töö kiire ja korralik. alustada võimalik kohe!

Küsimused hanke korraldajale

Hanke korraldajale ei ole veel küsimusi esitatud.

Lisa küsimus

Lisa küsimus

Minu pakkumine

Reeglid

Pakkumise kirjelduse väli on mõeldud pakkumise detailsemaks lahti kirjutamiseks. Pikema teksti mugavaks sisestamiseks klikkige kasti paremal ülaservas oleval ikoonil.
Pakkumist tehes on keelatud postitada enda kontaktandmeid (nimi, telefon, aadress jne). Me jälgime ja analüüsime pakkumisi, et vältida pettuseid ja reeglite rikkumisi.
Rikkumise puhul kasutajakonto blokeeritakse.

 

Teisi töid samas valdkonnas

Valdkonnas "Sanitaartehnilised tööd" on 2 aktiivset tööd

Wc poti vahetus, vajadusel viimistlus

Asukoht: Harjumaa, Tallinn
Aega jäänud: 8p 18h
Tehtud pakkumisi: 7

Paneelmaja vannitoa remont

Asukoht: Harjumaa, Tallinn
Aega jäänud: 2p 18h
Tehtud pakkumisi: 3

Vanemad teated:

Vaata kõiki

Sellel veebilehel kasutatakse küpsiseid. Kasutamist jätkates nõustute küpsiste kasutamisega.

Sulge
 
Minu pakkumine

Reeglid

Pakkumise kirjelduse väli on mõeldud pakkumise detailsemaks lahti kirjutamiseks. Pikema teksti mugavaks sisestamiseks klikkige kasti paremal ülaservas oleval ikoonil.
Pakkumist tehes on keelatud postitada enda kontaktandmeid (nimi, telefon, aadress jne). Me jälgime ja analüüsime pakkumisi, et vältida pettuseid ja reeglite rikkumisi.
Rikkumise puhul kasutajakonto blokeeritakse.