+ Lisa oma töö      

Otsid ehitajat "Põrandatööd" valdkonnast?

Parima pakkumise ja teostaja leidmiseks lisa oma töö.

Ülespöördega PVC paigaldus põrandale

ID 25947

3386 vaatamist

Prindi

  • check Pakkumiste tegemine
    kuni 24.09.2012
  • check Võitja valik kuni
    01.10.2012
  • 3 Töö teostamine
    ja hinnang
Hanke lõpp: E, 24. september, 2012
Maakond: Lääne-Virumaa
Linn: Rakvere
Tööde algus: N, 27. september, 2012 (Soovituslik)
Tööde lõpp: P, 30. september, 2012 (Soovituslik)
Ehitusmaterjalid: Töö tellija poolt

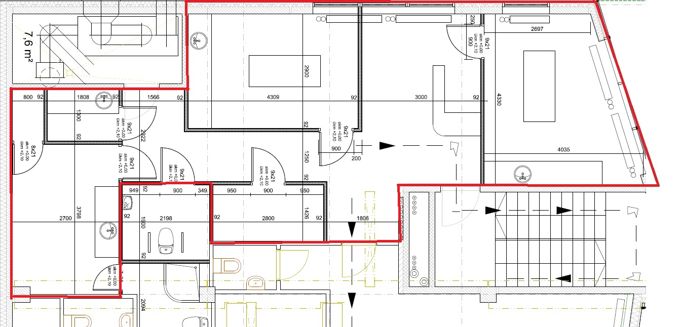
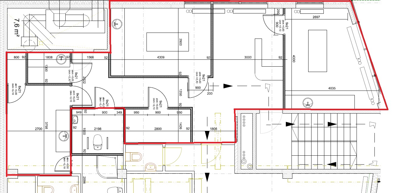
Töö sisu

On vaja paigaldada ülespöördega PVC põrandale. Pinda on kokku 6-s toas 70 m2. Äripind, kuhu PVC tuleb paigaldada on ehitatud 2006 aastal. Põrandale on tarvis teha eeltööd (lihvimine, krunt, pahteldus). Ülespöörde kõrgus 10cm. Materjalid (krunt, pahtel, liim, keevisnöör jms) on minu poolt. Objekti asukoht on Rakvere kesklinnas.

Pildid, video ja failid

Hanke korraldaja: eraisik ID30476

Pakkumised

Pakkumisi kokku: 2

Ettevõte Summa Käibemaks Lisatud Vestlus
Kasutaja ikoon ID30127
Pakkuja profiil Väike nool paremale
1 100€ Sisaldab KM Sisaldab KM 22.09.2012 Vestlus (0)
Kasutaja ikoon ID30162
Pakkuja profiil Väike nool paremale
1 450€ Sisaldab KM Sisaldab KM 23.09.2012 Vestlus (0)

Küsimused hanke korraldajale

Hanke korraldajale ei ole veel küsimusi esitatud.

Lisa küsimus

Lisa küsimus

Minu pakkumine

Reeglid

Pakkumise kirjelduse väli on mõeldud pakkumise detailsemaks lahti kirjutamiseks. Pikema teksti mugavaks sisestamiseks klikkige kasti paremal ülaservas oleval ikoonil.
Pakkumist tehes on keelatud postitada enda kontaktandmeid (nimi, telefon, aadress jne). Me jälgime ja analüüsime pakkumisi, et vältida pettuseid ja reeglite rikkumisi.
Rikkumise puhul kasutajakonto blokeeritakse.

 

Teisi töid samas valdkonnas

Valdkonnas "Põrandatööd" on 2 aktiivset tööd

Talumaja põrandate valamine/ehitus koos küttetorustiku paigaldusega

Asukoht: Raplamaa, Purila
Aega jäänud: 16p 9h
Tehtud pakkumisi: 2

Põrandakütte paigaldus ja põrandavalu (kips või betoon)

Asukoht: Saaremaa, Muhu vald
Aega jäänud: 9h 29 min
Tehtud pakkumisi: 1

Vanemad teated:

Vaata kõiki

Sellel veebilehel kasutatakse küpsiseid. Kasutamist jätkates nõustute küpsiste kasutamisega.

Sulge
 
Minu pakkumine

Reeglid

Pakkumise kirjelduse väli on mõeldud pakkumise detailsemaks lahti kirjutamiseks. Pikema teksti mugavaks sisestamiseks klikkige kasti paremal ülaservas oleval ikoonil.
Pakkumist tehes on keelatud postitada enda kontaktandmeid (nimi, telefon, aadress jne). Me jälgime ja analüüsime pakkumisi, et vältida pettuseid ja reeglite rikkumisi.
Rikkumise puhul kasutajakonto blokeeritakse.