+ Lisa oma töö      

Otsid ehitajat "Betoonitööd" valdkonnast?

Parima pakkumise ja teostaja leidmiseks lisa oma töö.

Majaesise panduse ehitamine

ID 26636

12288 vaatamist

Prindi

  • check Pakkumiste tegemine
    kuni 13.02.2013
  • check Võitja valik kuni
    20.02.2013
  • 3 Töö teostamine
    ja hinnang
Hanke lõpp: K, 13. veebruar, 2013
Maakond: Ida-Virumaa
Linn: Narva
Tööde algus: L, 01. juuni, 2013 (Soovituslik)
Tööde lõpp: L, 31. august, 2013 (Soovituslik)
Ehitusmaterjalid: Töö tegija poolt

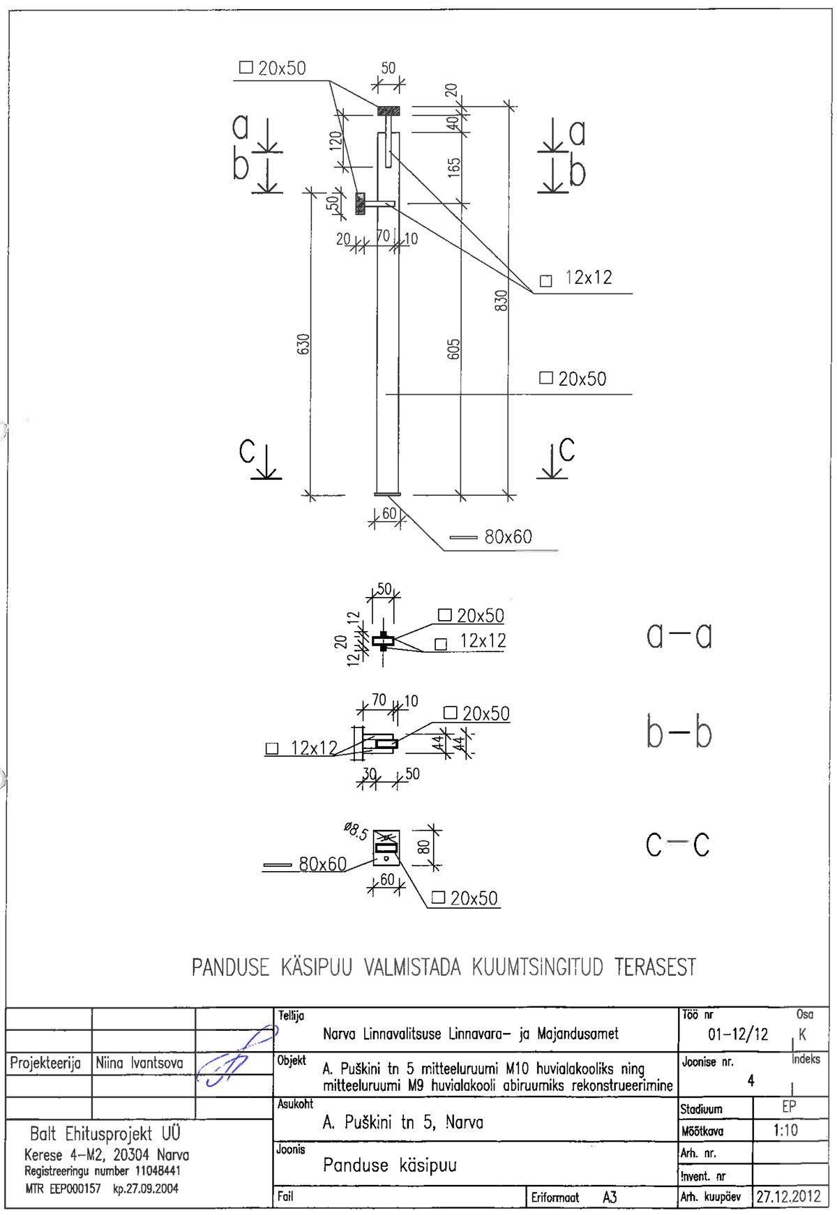
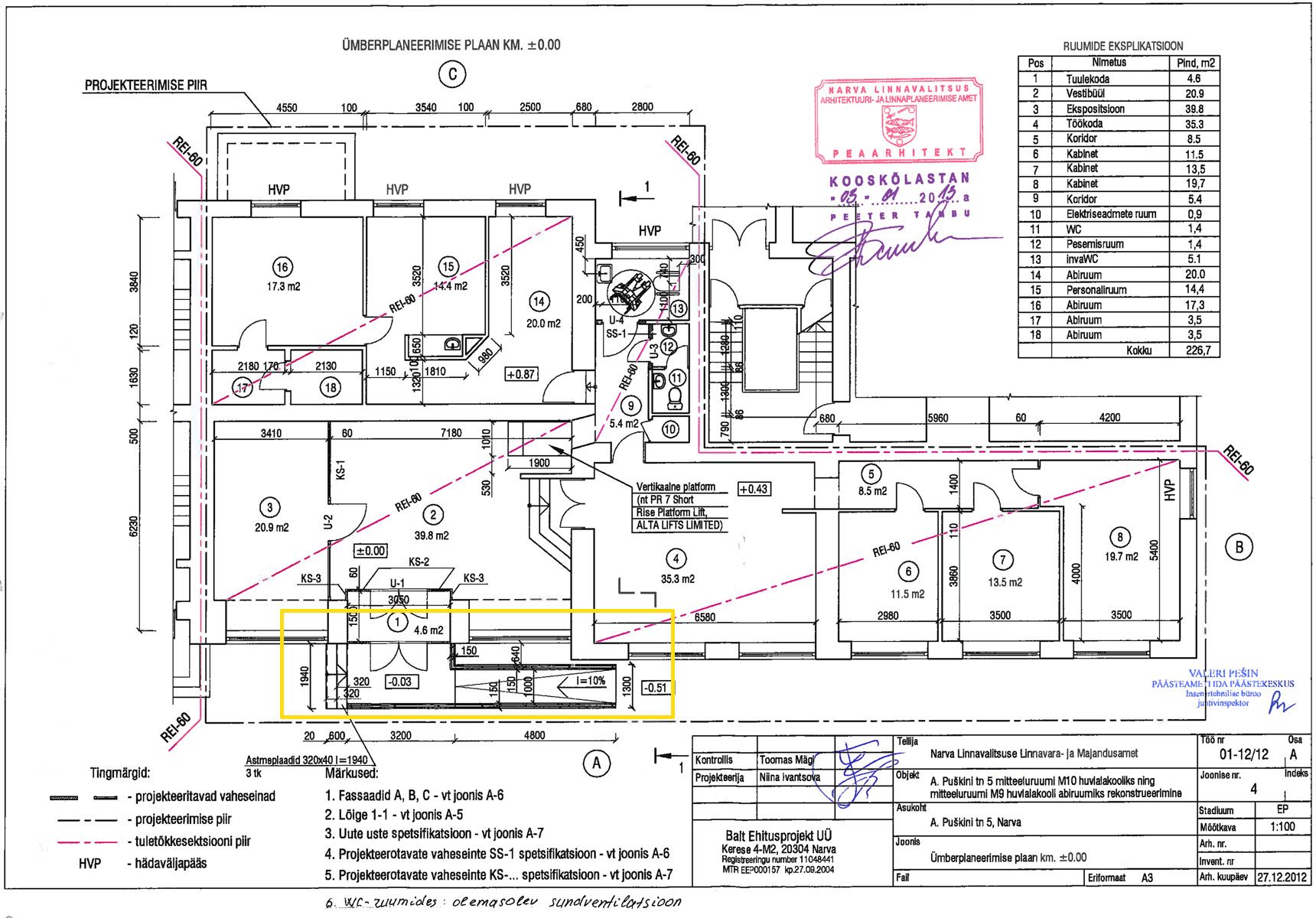
Töö sisu

Majaesise panduse ehitamine monoliitsest
raudbetoonist vastavalt projektile. Olemasoleva välistreppi demonteerimine.Raudbetoonist, krohvitud, värvitud.
Panduse pikikalle 10%, laius 1000mm.
Pandus kaetakse pesubetoonist astmeplaadidega paksusega 4 cm. Värv-analoogne 1.korruse seintele B 7 Chalix, Sadolin.

14 m2

Pildid, video ja failid

Hanke korraldaja: ettevõte ID31326

Pakkumised

Pakkumisi kokku: 2

Ettevõte Summa Käibemaks Lisatud Vestlus
Kasutaja ikoon ID30811
Pakkuja profiil Väike nool paremale
4 000€ Ei sisalda Ei sisalda 12.02.2013 Vestlus (0)
Kasutaja ikoon ID24241
Pakkuja profiil Väike nool paremale
8 300€ Sisaldab KM Sisaldab KM 13.02.2013 Vestlus (0)

Küsimused hanke korraldajale

Hanke korraldajale ei ole veel küsimusi esitatud.

Lisa küsimus

Lisa küsimus

Minu pakkumine

Reeglid

Pakkumise kirjelduse väli on mõeldud pakkumise detailsemaks lahti kirjutamiseks. Pikema teksti mugavaks sisestamiseks klikkige kasti paremal ülaservas oleval ikoonil.
Pakkumist tehes on keelatud postitada enda kontaktandmeid (nimi, telefon, aadress jne). Me jälgime ja analüüsime pakkumisi, et vältida pettuseid ja reeglite rikkumisi.
Rikkumise puhul kasutajakonto blokeeritakse.

 

Teisi töid samas valdkonnas

Valdkonnas "Betoonitööd" on 6 aktiivset tööd

Betoonist platsi valamine väljas.

Asukoht: Harjumaa, Luige
Aega jäänud: 8h 32 min
Tehtud pakkumisi: 4

Betoonpõranda valu

Asukoht: Harjumaa, Jõelähtme
Aega jäänud: 2p 8h
Tehtud pakkumisi: 3

Vanemad teated:

Vaata kõiki

Sellel veebilehel kasutatakse küpsiseid. Kasutamist jätkates nõustute küpsiste kasutamisega.

Sulge
 
Minu pakkumine

Reeglid

Pakkumise kirjelduse väli on mõeldud pakkumise detailsemaks lahti kirjutamiseks. Pikema teksti mugavaks sisestamiseks klikkige kasti paremal ülaservas oleval ikoonil.
Pakkumist tehes on keelatud postitada enda kontaktandmeid (nimi, telefon, aadress jne). Me jälgime ja analüüsime pakkumisi, et vältida pettuseid ja reeglite rikkumisi.
Rikkumise puhul kasutajakonto blokeeritakse.