+ Lisa oma töö      

Otsid ehitajat "Eramu ehitus" valdkonnast?

Parima pakkumise ja teostaja leidmiseks lisa oma töö.

Eramaja ehitus Harjumaal

ID 26650

4596 vaatamist

Prindi

  • check Pakkumiste tegemine
    kuni 22.02.2013
  • check Võitja valik kuni
    01.03.2013
  • 3 Töö teostamine
    ja hinnang
Hanke lõpp: R, 22. veebruar, 2013
Maakond: Harjumaa
Tööde algus: K, 01. mai, 2013 (Soovituslik)
Tööde lõpp: E, 02. september, 2013 (Soovituslik)
Ehitusmaterjalid: Töö tegija poolt

Töö sisu

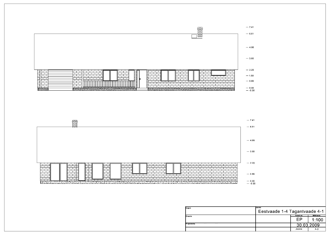
Eramaja ehitus kuni võtmed kätte. Vundament valmis kungi tagasitäiteni. Lisatud projekt, joonised ja seletuskiri.

Pildid, video ja failid

Hanke korraldaja: eraisik ID19836

Pakkumised

Pakkumisi kokku: 12

Ettevõte Summa Käibemaks Lisatud Vestlus
Kasutaja ikoon ID23207
Pakkuja profiil Väike nool paremale
61 000€ Sisaldab KM Sisaldab KM 09.02.2013 Vestlus (0)

Pakkumise kirjeldus:

Teraskatuse roov antud sarikavahega peaks olema 32x100 minimaalselt.
Täpne pakkumine hanke võidu korral ja kui on tellijaga kõik läbi räägitud.Edu

Kasutaja ikoon ID31003
Pakkuja profiil Väike nool paremale
87 421€ Ei sisalda Ei sisalda 10.02.2013 Vestlus (2)

Pakkumise kirjeldus:

Tere, minu pakkumine sisaldab vundamenti seinu, katust, sisetöid, torutoid, elektritöid, üldiselt kõike v.a küttelahendus( küttemehhanism ) ja aknaid ja uksi. Töö kiire ja 3a garantii.

Kasutaja ikoon ID27673
Pakkuja profiil Väike nool paremale
120 000€ Ei sisalda Ei sisalda 10.02.2013 Vestlus (0)

Pakkumise kirjeldus:

lisandub km
vajadusel saadan fotosid nii Soomes kui Eestis tehtud töödest

Kasutaja ikoon ID31418
Pakkuja profiil Väike nool paremale
86 210€ Ei sisalda Ei sisalda 13.02.2013 Vestlus (0)

Pakkumise kirjeldus:

Ettemaks töödealustuseks.

Kasutaja ikoon ID23416
Pakkuja profiil Väike nool paremale
106 016,2€ Ei sisalda Ei sisalda 20.02.2013 Vestlus (0)

Pakkumise kirjeldus:

Pakkumine manuses,küsimustele vastame meeleldi.

Kasutaja ikoon ID19643
Pakkuja profiil Väike nool paremale
201 200€ Ei sisalda Ei sisalda 21.02.2013 Vestlus (0)

Pakkumise kirjeldus:

Võtmed kätte koos kaevu ja imbväljakuga.

Kasutaja ikoon ID31483
Pakkuja profiil Väike nool paremale
138 700€ Sisaldab KM Sisaldab KM 21.02.2013 Vestlus (0)
Kasutaja ikoon ID25263
Pakkuja profiil Väike nool paremale
172 800€ Ei sisalda Ei sisalda 21.02.2013 Vestlus (0)

Pakkumise kirjeldus:

Pakkumine hõlmab kõiki töid, sealhulgas sanitaartehnikat "Duravit Starck3 ", saun koos kerisega, kamin. Soovi korral ja võimalusel maaküttesüsteem.

Kasutaja ikoon ID8633
Pakkuja profiil Väike nool paremale
108 400€ Ei sisalda Ei sisalda 21.02.2013 Vestlus (0)
Kasutaja ikoon ID23896
Pakkuja profiil Väike nool paremale
105 000€ Ei sisalda Ei sisalda 22.02.2013 Vestlus (0)

Pakkumise kirjeldus:

Tere,

Hind ei ole kiviss raiutud,

Kasutaja ikoon ID26037
Pakkuja profiil Väike nool paremale
107 830€ Ei sisalda Ei sisalda 22.02.2013 Vestlus (0)

Pakkumise kirjeldus:

tere.Pakkumises siis võtmed kätte variant.Vundament lõpuni, seinad püsti,vahelagi, katus, soojustatud, klombitud kivi, pvc aknad, vajalikud uksed, seest valmidus värvitud seinteni.Korsten.Terrass. Vajadusel eraldi kokkuleppel siis drenaaz kui seda pole ja on siiski vaja.

Kasutaja ikoon ID31491
Pakkuja profiil Väike nool paremale
100 000€ Ei sisalda Ei sisalda 22.02.2013 Vestlus (0)

Küsimused hanke korraldajale

Küsimus: private ID8633   08.02.2013 11:44
Tere dwg joonised teil on olemas?

Teavita reeglite rikkumisest

Korraldaja vastus: 08.02.2013 12:28

Et dwg faili ei saa jagada, kuna seal on sees on kontkatid ja pole lubatud hange.ee keskkonna nõutega ning kahjuks puudub endal võimalus muuta faili.

Teavita reeglite rikkumisest

Küsimus: private ID8633   08.02.2013 16:31
Minu andmet on naha teile saatke sinna,siis saan täpsem hind teha

Teavita reeglite rikkumisest

Korraldaja vastus: 11.02.2013 10:09

Siiski ei ole huvitatud dwg faili saatmisest, kuna seal on kontaktid sees ja kolm pakkujat on teinud hinnapakkumise piltide järgi.

Teavita reeglite rikkumisest

Küsimus: private ID26037   22.02.2013 09:28
tere.Küsiksin kas vesi ja elekter on kohapeal olemas? Kas vundamendile on ligipääs kõigist neljast küljest?Kas vundamendi tagsitäide on piisav või tuleks arvestada ka lisaga?

Teavita reeglite rikkumisest

Korraldaja vastus:
Hanke korraldaja ei ole küsimusele veel vastanud

Lisa küsimus

Lisa küsimus

Minu pakkumine

Reeglid

Pakkumise kirjelduse väli on mõeldud pakkumise detailsemaks lahti kirjutamiseks. Pikema teksti mugavaks sisestamiseks klikkige kasti paremal ülaservas oleval ikoonil.
Pakkumist tehes on keelatud postitada enda kontaktandmeid (nimi, telefon, aadress jne). Me jälgime ja analüüsime pakkumisi, et vältida pettuseid ja reeglite rikkumisi.
Rikkumise puhul kasutajakonto blokeeritakse.

 

Teisi töid samas valdkonnas

Valdkonnas "Eramu ehitus" on 2 aktiivset tööd

Eramu ehitus

Asukoht: Viljandimaa, Viljandi
Aega jäänud: 5p 12h
Tehtud pakkumisi: 1

no-img Pilt puudub

Eramu ehitus. Karp kinni.

Asukoht: Lääne-Virumaa
Aega jäänud: 3p 12h
Tehtud pakkumisi: 0

Vanemad teated:

Vaata kõiki

Sellel veebilehel kasutatakse küpsiseid. Kasutamist jätkates nõustute küpsiste kasutamisega.

Sulge
 
Minu pakkumine

Reeglid

Pakkumise kirjelduse väli on mõeldud pakkumise detailsemaks lahti kirjutamiseks. Pikema teksti mugavaks sisestamiseks klikkige kasti paremal ülaservas oleval ikoonil.
Pakkumist tehes on keelatud postitada enda kontaktandmeid (nimi, telefon, aadress jne). Me jälgime ja analüüsime pakkumisi, et vältida pettuseid ja reeglite rikkumisi.
Rikkumise puhul kasutajakonto blokeeritakse.